🔥 CYBER MONDAY 24H: -60% su tutti i prezzi del sito! Solo fino a mezzanotte. Usa il codice CYBERMONDAY25 👉🏼
home / concorsi / ampliación de casa familiar
img

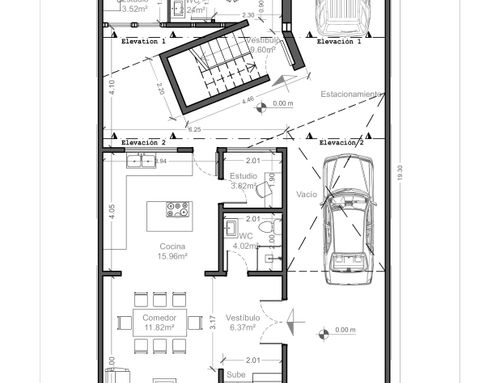
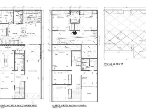
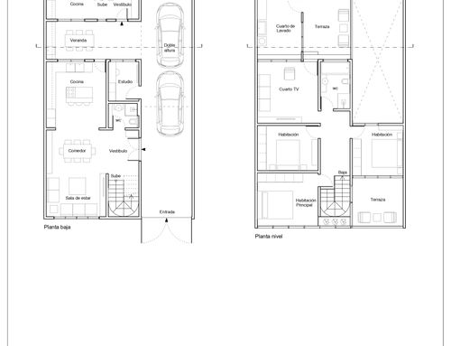
ampliación de casa familiar

Mexico City, CDMX, Mexico

Residenziale - Casa

  • 1° Posto € 624
  • 2° Posto € 208
  • 3° Posto € 104
  • 4° Posto € 52
  • 5° Posto € 52