
17025 Loano, Province of Savona, Italy
Residenziale - Appartamento
Descrizione
ENG:
I am a real estate investor with a passion for renovate properties to give them a new soul and new owners.
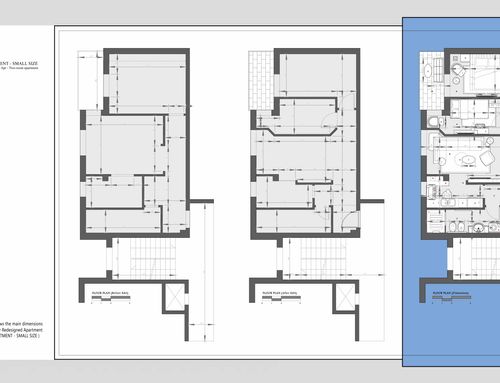
I have just acquired at auction a two-room apartment in an excellent context (a residence with park and swimming pool, a few steps from the sea, in western Liguria, in Loano) which was rented for eight years by a family with 3 children who did not make any of maintenance.
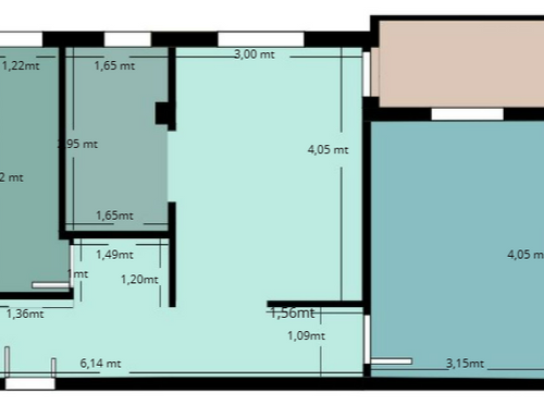
The apartment, on the first floor with lift, faces north but is still very bright.
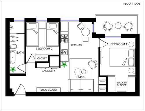
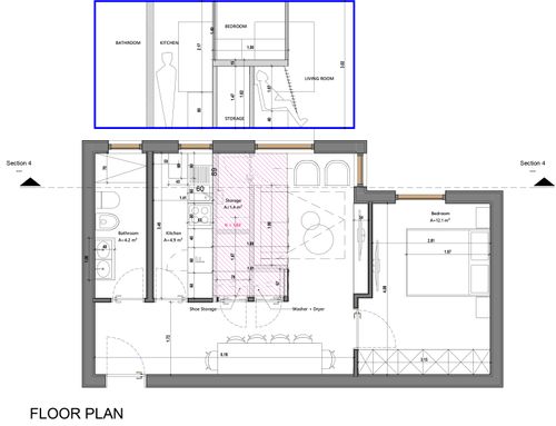
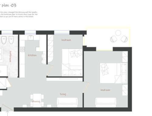
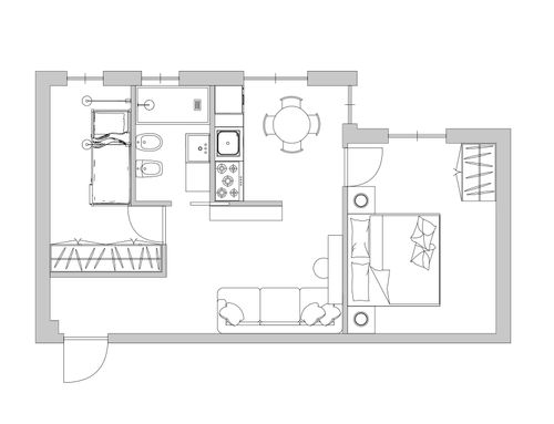
Since this is a speculative operation, the apartment will have to be renovated with a limited budget in order to be resold as soon as possible. The goal of the renovation is to redistribute the spaces by optimizing the number of beds available (ideally 6 sleeps: 2 double beds and 2 single beds).
The reference target is the classic Milanese family with children looking for a second home for the summer or looking for an investment solution to make income with short-term rentals.
The taste must be minimal, with neutral colors that evoke fresh air and the sea.
The apartment will be completed with furnishings (8.000 euro value) for a "turnkey" sale.
The floor can be glued over the existing one and the electrical systems can be passed through the ceiling. The complete renovation of the electrical, water and heating systems and the replacement of the windows with motorized monobloc shutters are foreseen.
The bathroom must have a shower, toilet and bidet and a double sink (or a single sink with double tap type IKEA series GODMORGON / BRÅVIKEN sku n. 292.925.07, 993.385.02, 592.925.01, 492.924.79, 992.924.86, 893.211.25, 193.385.01 measure 100x48x68 cm).
Studying an anteroom that allows for the placement of a washing machine and dryer.
It is essential to provide a space for storing shoes (not in sight, but closed) and bags.
A CIVAS type "ready-bed" double sofa bed by FAMILY BEDDING can be inserted in the living area (see https://familybedding.it/wp-content/uploads/2020/01/Civas.pdf).
Particular attention to the lights (spotlights / LED strips, as well as floor lamps and chandeliers that "decorate") and plasterboards.
I invite you to present solutions with a view to containing restructuring costs and functionality.
The projects must comply with the reference legislation.
Projects exceeding the renovation budget (30,000 euros) will not be taken into consideration.
Here a video of the state of the art : https://www.dropbox.com/s/gu0ux2qv2y600jj/wetransfer_video-per-contst-acqua-verde-apt-two-room-apartment-with-swimming-pool-a-few-steps-from-the-sea_2023-04-24_1311.zip?dl=0
For any further details, please contact me.
-------2023.4.27 update:
If possible, I'd like to include in the project a corner kitchen with a peninsula whose long side measures just 295 cm (exactly as long as the current kitchen wall) that I have just removed from another apartment. The composition is in a light cord color with aluminum handles and door profiles. I attach some pictures and details of the measures. Obviously the "recycling in a modern key" of this kitchen must not be a constraint on the design but a resource to be considered in order to optimize the budget allocated for this redevelopment.
-------2023.5.23 update:
The DWG file with the real measurements is available, as you requested in the "questions and answers" section.
SPA:
Soy un inversor inmobiliario apasionado por la rehabilitación de inmuebles para darles una nueva alma y nuevos propietarios.
Acabo de adquirir en subasta un apartamento de un dormitorio en un contexto excelente (una residencia con parque y piscina, a dos pasos del mar, en Liguria occidental, en Loano) que ha estado alquilado durante ocho años por una familia con tres hijos que no ha hecho ningún mantenimiento.
El piso, en una primera planta con ascensor, está orientado al norte pero es muy luminoso.
Al tratarse de una operación especulativa, el piso deberá renovarse con un presupuesto ajustado para poder revenderlo lo antes posible. El objetivo de la renovación es redistribuir el espacio optimizando el número de camas disponibles (idealmente para 6 personas: 2 camas dobles y 2 camas individuales).
El público objetivo es la clásica familia milanesa con hijos que busca una segunda residencia para el verano or una solución de inversión para generar ingresos con alquileres a corto plazo.
El gusto debe ser minimalista, con colores neutros que evoquen el aire fresco y el mar.
El piso se completará con muebles para una venta llave en mano (coste máximo 8.000 euros)
El suelo se puede encolar sobre el existente y los sistemas eléctricos se pueden pasar por el techo. Está prevista la renovación completa de los sistemas eléctrico, de agua y calefacción y la sustitución de las ventanas por persianas monobloque motorizadas.
En el cuarto de baño debe haber una ducha, inodoro y bidé y un lavabo doble (or lavabo individual con grifo doble tipo IKEA GODMORGON / BRÅVIKEN codigo 292.925.07, 993.385.02, 592.925.01, 492.924.79, 992.924.86, 893.211.25, 193.385.01, dimensiones 100x48x68 cm).
Estudiar una antesala que permita colocar una lavadora y una secadora.
Es imprescindible prever un espacio para guardar los zapatos (no a la vista, sino cerrados) y los bolsos.
En la zona de estar, se podría insertar un sofá cama doble "listo para dormir" tipo CIVAS de FAMILY BEDDING (véase https://familybedding.it/wp-content/uploads/2020/01/Civas.pdf).
Especial atención a las luces (focos/tiras de LED, así como lámparas de pie y candelabros que “decoran”) y las placas de yeso.
Los invito a presentar soluciones con miras a contener los costos de reestructuración y la funcionalidad.
Los diseños deben cumplir la normativa pertinente.
No se tendrán en cuenta los proyectos que superen el presupuesto de rehabilitación (30.000 euros).
Aquí un video del estado de cosas: https://www.dropbox.com/s/gu0ux2qv2y600jj/wetransfer_video-per-contst-acqua-verde-apt-two-room-apartment-with-swimming-pool-a-few-steps-from-the-sea_2023-04-24_1311.zip?dl=0
Para más detalles, por favor póngase en contacto conmigo.
-----Actualización del 27.4.2023:
Si es posible, me gustaría incluir en el proyecto una cocina rinconera con península cuyo lado largo mide apenas 295 cm (exactamente la longitud de la pared de la cocina actual) que acabo de retirar de otro apartamento. La composición es en color cordón claro con tiradores y perfiles de puerta de aluminio. Adjunto algunas fotos y detalle de las medidas. Evidentemente el “reciclado en clave moderna” de esta cocina no debe ser un condicionante de diseño sino un recurso a tener en cuenta para optimizar el presupuesto destinado a esta remodelación.
-----Actualización del 25.5.2023:
El archivo DWG con las medidas reales está disponible, tal como lo solicitaste en la sección de "preguntas y respuestas".
ITA:
Sono un investitore immobiliare con la passione di riqualificare gli immobili per donare loro una nuova anima e dei nuovi proprietari.
Ho appena acquisito in asta un bilocale in ottimo contesto (un residence con parco e piscina, a pochi passi dal mare, nel ponente ligure, a Loano) che è stato affittato per otto anni da una famiglia con 3 figli che non ha fatto alcun tipo di manutenzione.
L'appartamento, al primo piano con ascensore, è esposto a nord ma è comunque molto luminoso.
Trattandosi di un'operazione speculativa, l'appartamento dovrà essere ristrutturato con un budget contenuto per essere rivenduto nel più breve tempo possibile. L'obiettivo della ristrutturazione è ridistribuire gli spazi ottimizzando il numero di posti letto disponibili (idealmente 6 posti letto: 2 letti matrimoniali e 2 letti singoli).
Il target di riferimento è la classica famiglia milanese con figli che cerca una seconda casa per l'estate o che cerca una soluzione di investimento da mettere a reddito con gli affitti brevi.
Ideale riuscire a ricavare una stanza da letto in più, o comunque creare un po' di privacy per la notte.
Il gusto dovrà essere minimale, con colori neutri che rievochino l'aria fresca e il mare.
L'appartamento sarà completato degli arredi per una vendita "chiavi in mano" (costo totale 8.000 euro).
Il pavimento potrà essere incollato sopra all'esistente e gli impianti elettrici potranno essere fatti passare nel soffitto. Si prevedere il rifacimento completo degli impianti elettrico, idrico e di riscaldamento e la sostituzione dei serramenti con tapparelle monoblocco motorizzate.
Nel bagno dovranno essere presenti la doccia, il wc e il bidet e il doppio lavabo (o lavandino singolo con doppio rubinetto tipo IKEA serie GODMORGON / BRÅVIKEN codici 292.925.07, 993.385.02, 592.925.01, 492.924.79, 992.924.86, 893.211.25, 193.385.01 misure100x48x68 cm).
Studiare un antibagno che consenta il posizionamento di lavatrice e asciugatrice.
Indispensabile prevedere uno spazio per riporre le scarpe (non in vista, ma chiuso) e le borse.
Nella zona giorno potrà essere inserito un divano letto matrimoniale "pronto letto" tipo CIVAS di FAMILY BEDDING (vedi https://familybedding.it/wp-content/uploads/2020/01/Civas.pdf).
Attenzione particolare alle luci (faretti /strip led, oltre che a piantane e lampadari che "arredano") e ai cartongessi.
Vi invito a presentare soluzioni nell'ottica del contenimento dei costi di ristrutturazione e della funzionalità.
I progetti dovranno essere conformi con la normativa di riferimento.
Non verranno presi in considerazione progetti che sforano il budget di ristrutturazione (30.000 euro).
Qui un video dello stato di fatto: https://www.dropbox.com/s/gu0ux2qv2y600jj/wetransfer_video-per-contst-acqua-verde-apt-two-room-apartment-with-swimming-pool-a-few-steps-from-the-sea_2023-04-24_1311.zip?dl=0
Per qualsiasi ulteriore dettaglio, contattatemi.
-------aggiornamento del 27.4.2023:
Se possibile mi piacerebbe inserire nel progetto una cucina ad angolo con penisola il cui lato lungo misura proprio 295 cm (esattamente quanto l'attuale parete della cucina) che ho appena smontato da un altro alloggio. La composizione è color corda chiaro con maniglie e profili delle ante in alluminio. Allego qualche immagine e dettagli delle misure. Ovviamente il "riciclo in chiave moderna" di questa cucina non deve essere un vincolo alla progettazione ma una risorsa da considerare per ottimizzare il budget destinato a questa riqualificazione.
-------aggiornamento del 23.5.2023:
Disponibile il file DWG con le misure reali, come da voi richiesto nella sezione "domande e risposte".