
33170 Pordenone, Province of Pordenone, Italy
Residenziale - Appartamento
Descrizione
Hi, I have a 180 sqm apartment. The location of the apartment is in the historic center at the beginning of the central pedestrian street, in a condominium on the ninth and top floor. The internal distribution has already been determined. I need the interior design. It must have a modern style, with the use of modern-style boiserie with light and natural colors. Direct and indirect lighting obtained in the plasterboard false ceiling to be created.
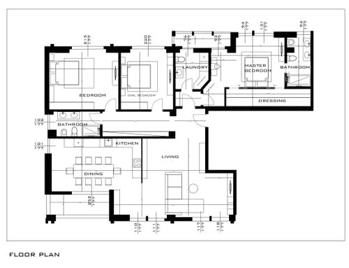
The requirement is for a family consisting of a couple with a 12-year-old daughter, so there is a master bedroom with walk-in closet and bathroom with shower, a second bedroom for the daughter that can have a double bed or possibly 2 beds (for a possible guest friend) and a third guest room / multipurpose office room, etc. Laundry room with bathroom service for the living area which leads to a small terrace where the gas boiler is located. The sleeping area is completed with a bathroom with shower, double sink, toilet and bidet. The corridor equipped with floor-to-ceiling wardrobe.
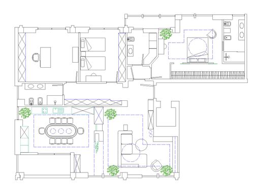
The living area is divided into two areas: the kitchen with dining table from which you access the terrace and the living area that can be divided by a sliding packing wall (on a disappearing wardrobe) that serves to separate the two areas. In the attachments the plan of the project and the current state before the renovation, any small movements of the walls or interesting solutions are accepted.
---
Salve a tutti, ho un appartamento di 180 mq. L’ubicazione dell’appartamento è in centro storico all’inizio del corso centrale pedonabile, in condominio al nono e ultimo piano. La distribuzione interna è già stata determinata. Ho bisogno della progettazione degli interni. Deve avere uno stile moderno, con uso di boiserie in chiave moderna con colori chiari e naturali. Illuminazione diretta ed indiretta ricavata nel controsoffitto in cartongesso da realizzare.
L’esigenza è per una famiglia composta da una coppia con una figlia di 12 anni, quindi ci sono una camera padronale con cabina armadio e bagno con doccia di pertinenza, una seconda camera per la figlia che può avere un letto matrimoniale o eventuale 2 letti (per eventuale ospite amica) e una terza camera per ospiti/stanza multiuso ufficio, etc. Lavanderia con servizio bagno per la zona giorno dalla quale si accede ad un piccolo terrazzo dove è ubicata la caldaia a gas. La zona notte si completa con bagno con doccia, doppio lavabo, wc e bidet. Il corridoio attrezzato con armadiatura pavimento-soffitto.
La zona giorno è distinta in due aeree: la cucina con tavolo pranzo dalla quale si accede al terrazzo e la zona living che può essere divisa una parete scorrevole a impacchettamento (su armadio a scomparsa) che serve a separare le due zone.
Negli allegati la pianta del progetto e lo stato attuale prima della ristrutturazione, sono accettati eventuali piccoli spostamenti delle pareti o soluzioni interessanti.
---
Hola a todos, tengo un piso de 180 m2. La ubicación del apartamento es en el centro histórico al inicio de la calle peatonal central, en un condominio en el noveno y último piso. La distribución interna ya ha sido determinada. Necesito diseño de interiores. Debe tener un estilo moderno, con el uso de paneles de madera modernos en colores claros y naturales. Iluminación directa e indirecta creada en el falso techo de pladur a crear.
La necesidad es para una familia compuesta por una pareja con una hija de 12 años, por lo tanto hay un dormitorio principal con vestidor y baño con ducha, un segundo dormitorio para la hija que puede tener una cama doble o posiblemente 2 camas. (para cualquier huésped amigable) y una tercera habitación de invitados/oficina de usos múltiples, etc. Cuarto de lavado con baño de servicio para el salón que da acceso a una pequeña terraza donde se encuentra la caldera de gas. La zona de noche se completa con un baño con ducha, doble lavabo, inodoro y bidé. El pasillo equipado con armarios de suelo a techo.
La zona de estar se divide en dos zonas: la cocina con mesa de comedor que conduce a la terraza y la zona de estar que se puede dividir mediante una pared corredera plegable (sobre un armario plegable) que sirve para separar las dos zonas.
En los anexos se acepta el plano del proyecto y el estado actual antes de la reforma, pequeños movimientos de las paredes o soluciones interesantes.