
33170 Pordenone, Province of Pordenone, Italy
Residenziale - Appartamento
Descrizione
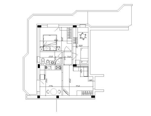
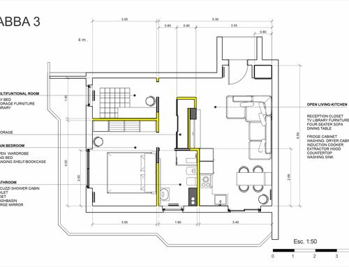
Hi, I have a 53 m2 apartment to renovate internally, mainly only one person lives there, the condominium has been renovated externally with thermal insulation and replacement of white PVC windows.
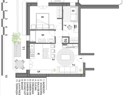
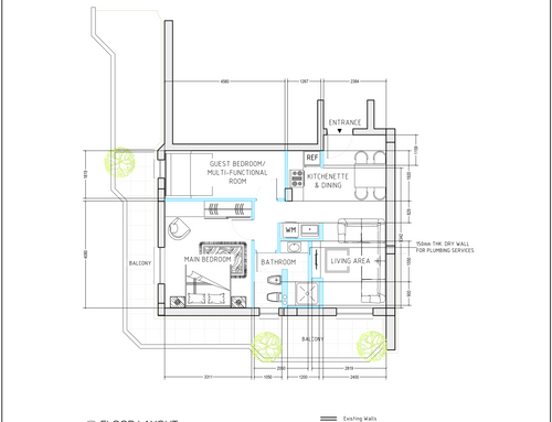
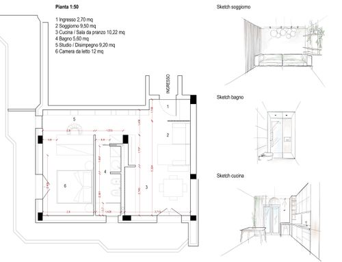
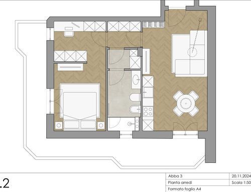
My need is to enlarge the bathroom (about 20%) with shower, toilet, bidet and sink cabinet. Living area with kitchenette, possible new layout, insertion of washing machine. Double bedroom, bedroom for any guests/use of multifunctional room.
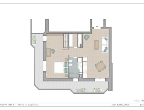
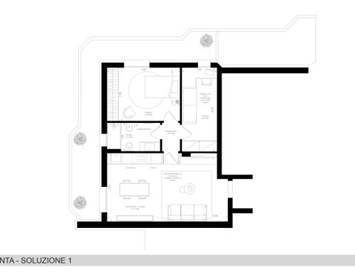
I would like to redistribute the internal spaces, enlarging the bathroom, a bedroom and a storage space, improving the living area spaces, with modern furniture.
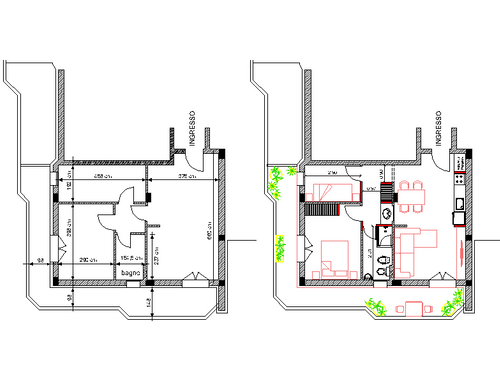
The structural constraints are the column, the CLS, the position of the bathroom drain column and the external fixtures.
I am looking for maximum optimization of the spaces that are limited. The apartment is equipped on the two external walls with a continuous balcony of little depth (98 cm on the narrow part and 150 cm in the widest part).
---
Salve a tutti, ho un appartamento di 53 mq da ristrutturare internamente, principalmente vive una sola persona, il condominio è stato ristrutturato esternamente con il cappotto termico e sostituzione serramenti in PVC colore bianco.
La mia esigenza è ingrandire il bagno (20% circa) con doccia, wc, bidet e armadio lavabo. Zona giorno con angolo cottura eventuale nuova disposizione inserimento lavatrice. Camera matrimoniale, cameretta per eventuali ospiti/uso stanza multifunzione.
Vorrei ridistribuire gli spazi interni, ampliando il bagno, una camera e uno spazio storage, migliorando gli spazi zona giorno, con arredamento moderno.
I vincoli strutturali sono la colonna il CLS, la posizione della colonna degli scarichi bagno e gli infissi esterni.
Cerco la massima ottimizzazione degli spazi che sono ridotti. L’appartamento e dotato nelle due pareti esterne da balcone continuo di poca profondità (98 cm sulla parte stretta e 150 cm nella parte più larga).
---
Hola a todos, tengo un departamento de 53m2 para remodelar internamente, en él principalmente vive una sola persona, el condominio ha sido remodelado externamente con abrigo térmico y reemplazo de ventanas de PVC blanco.
Mi necesidad es ampliar el baño (aproximadamente un 20%) con mueble de ducha, inodoro, bidé y lavabo. Salón con cocina americana, posible nueva disposición para la inserción de una lavadora. Dormitorio doble, dormitorio para posibles invitados/uso de sala multifunción.
Me gustaría redistribuir los espacios internos, ampliando el baño, un dormitorio y un espacio de almacenamiento, mejorando los espacios del salón, con muebles modernos.
Las limitaciones estructurales son la columna, el hormigón, la posición de la columna de drenaje del baño y los accesorios externos.
Busco la máxima optimización de los espacios que son limitados. El apartamento tiene un balcón corrido de poca profundidad en las dos paredes exteriores (98 cm en la parte estrecha y 150 cm en la parte más ancha).