
28100 Novara, Province of Novara, Italy
Residenziale - Appartamento
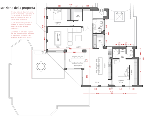
Descrizione
I love modern, hi-tech, industrial style. I also like Nordic style, but mainly for lamps and (arm)chairs. I'd like to use natural colors and materials, as you can see in the palettes attached.
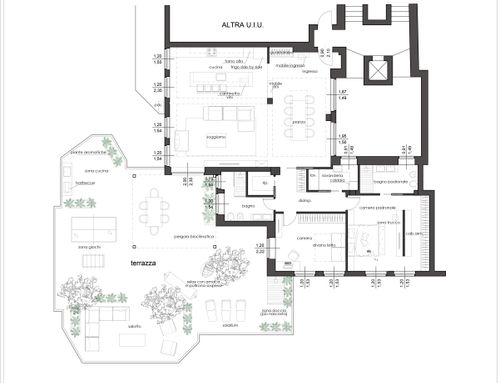
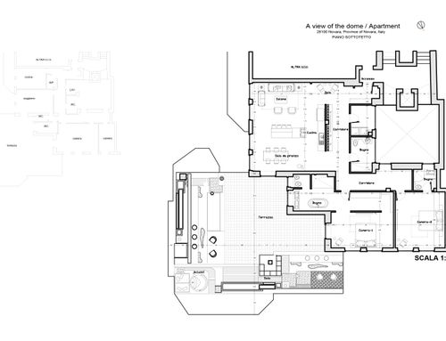
The project is composed by an apartment with the terrace on the floor.
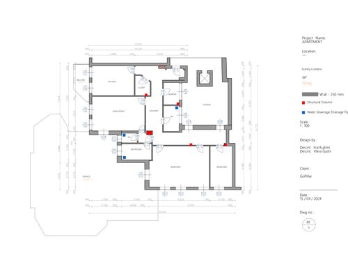
Attached you can find a 1:100 scale PDF plan, with structural in red and water sewerage drainage pipes in blue, and a DWG.
Walls height: 2920 mm
NB #1: in my opinion, the critical point of the apartment is the number of windows and the positioning of the radiators in the rooms. Currently the radiators are under (almost) every window, and we can move them, if necessary. The new plan, however, must safeguard the heating needs of each room, and provide for the correct positioning (and sizing) of the heaters.
NB #2: I don't want steps of any kind or architectural barriers.
NB #3: Looking at the attached photos, you can see the terrible condition of the walls overlooking the terrace. I can try to clean them, since they cannot be replaced, but I would also like to consider covering them with removable soft stone or WPC panels, as represented in an attached image. Does this make sense?
NB #4: There are 2 door windows and a double window toward the terrace. If required, I can transform the double window into a large (sliding) door window, and/or increase the width of the existing door windows up to 2000mm, for an easier access to the terrace.
APARTMENT requirements
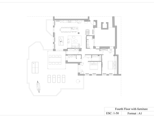
The layout must be completely rethought, keeping in mind that I love open spaces (loft style) and I do not like the hallways and too many doors. I like both the flush-with-the-wall and sliding (internally or externally) doors. Internal doors must be 2400 mm high.
Below what I need/want:
- a kitchen and a living room in a unique open space. The kitchen, possibly, should have an island, and must include a side by side fridge (https://www.amazon.it/gp/product/B09FQ77PXZ) plus a free standing wine cellar (https://www.amazon.it/gp/product/B09VXYSYTK). I'd like also to have somewhere a metal wine bottles holder (size W 310 x L 1080 x H 2500mm) that I already own (see photo attached). In the living room there must be a 3000 mm table (in any case not smaller then 2400 mm), a sofa, armchairs?, a coffee table and the TV wall. A nice to have is the pool table (size 2250 x 1250 mm)
- a main bedroom, with a double bed, a consolle table with a chair to use both as an office desk and a make up table, plus a private bathroom (with a large shower, no bathtub) and a spacious walk-in closet. The walk-in closet does not necessarily exclude an (optional) additional wardrobe in the bedroom
- an additional bedroom, with at least a queen bed (or better a double bed), a wardrobe and a desk
- an additional bathroom (always with a shower, no bathtub) for all. Both bathrooms must have the WC and the bidet
- a (small) laundry where to put a water heater (size is around W 506 x L 535 x H 1398 mm), a washer-dryer, a sink and a cabinet (for detergents, brooms, etc ...)
- a false ceiling, that must cover partially the ceilings, only where "strategically" is needed, to hide the ducted air conditioner pipes from the external unit (placed on the side balcony) to all rooms, to hide the mechanical ventilation system unit (placed under the false ceiling), and for lights.
TERRACE requirements
The terrace should be a fun space, where to have parties, games, dinners, sun baths and BBQs with friends.
Therefore, I want a (bio-climatic?) pergola, that I imagine as an extension of the internal living room (size of approximately 4.5/5m per side), with mosquito net walls, where to put a table with chairs, etc ... I attach an image of what it could be like.
I want an electric barbecue (https://www.amazon.it/gp/product/B00IILN5SW/) to place on a stainless steel kitchen cabinet like the one shown in a attached image, a table football, a (folding, so that can be moved easily when not used) ping pong table, an outdoor shower (https://www.amazon.it/Gre-AR1009-Doccia-Solare-PVC/dp/B01CGKBQOU), beach beds, deckchairs?, hammock?, etc ...
I do not want any vegetation that requires maintenance, although I like the idea of having pots with aromatic herbs and/or an olive tree. I do not want pots with plants and/or flowers running along the terrace perimeter.
---------------------------------------- - ---------------------------------------- - ---------------------------------------- - ----------------------------------------
Adoro lo stile moderno, hi-tech, industriale. Mi piace anche lo stile nordico, ma soprattutto per lampade e sedie. Vorrei usare colori e materiali naturali: ho allegato una palette per colori e pietre.
Il progetto è composto da un appartamento e relativo terrazzo al piano.
Allego una planimetria in PDF in scala 1:100, con le colonne portanti in rosso e gli scarichi WC in blu, ed un DWG.
Altezza delle pareti: 2920 mm
NB #1: secondo me, il punto critico dell'appartamento è il numero di finestre e il posizionamento dei termosifoni nelle stanze. Attualmente i termosifoni sono sotto (quasi) ogni finestra, ed è possibile spostarli, se necessario. Il nuovo progetto, però, dovrà salvaguardare il fabbisogno termico di ogni stanza, e prevedere il corretto posizionamento (e dimensionamento) dei caloriferi.
NB #2: non voglio gradini di nessun genere o barriere architettoniche.
NB #3: guardando le foto allegate, si nota il pessimo stato delle pareti che si affacciano sul terrazzo. Posso provare a ripulirle, visto che non si possono sostituire, ma vorrei anche considerare di coprirle con pannelli rimovibili di soft stone o WPC, come rappresentato in un immagine allegata. Ha senso?
NB #4: l'appartamento ha 2 porte finestre e una doppia finestra che danno sul terrazzo. Se necessario, posso trasformare la doppia finestra in una grande porta finestra scorrevole, e/o aumentare la larghezza delle porte finestre esistenti, fino a circa 2000 mm, per un più facile accesso al terrazzo.
Requisiti dell'APPARTAMENTO
La disposizione è da ripensare completamente, tenendo presente che amo gli spazi aperti (stile loft) e non amo i corridoi o vedere troppe porte. Mi piacciono le porte filo muro o scorrevoli (internamente o esternamente). Le porte interne devono essere alte 2400 mm.
Di seguito ciò di cui ho bisogno/voglio:
- una cucina e il soggiorno in un unico open space. La cucina, possibilmente con isola, deve includere un frigorifero side by side (https://www.amazon.it/gp/product/B09FQ77PXZ) e una cantinetta free standing (https://www.amazon.it/gp/product/B09VXYSYTK). Il soggiorno deve essere dotato di un tavolo di 3000 mm (comunque non inferiore a 2400 mm), un divano, poltrone?, un tavolino e la parete TV. Mi piacerebbe avere anche un tavolo da biliardo (opzionale) di dimensioni 2250 x 1250 mm. In questo locale dovrei mettere anche un portabottiglie di vini in metallo (dimensioni L 310 x L 1080 x H 2500mm) che già possiedo (vedi foto allegata)
- una camera da letto principale, con un letto matrimoniale, una consolle con sedia da utilizzare o come scrivania o tavolo da trucco, oltre a un bagno privato (con ampia doccia, senza vasca) e una spaziosa cabina armadio. La cabina armadio non esclude necessariamente la presenza di un armadio aggiuntivo in camera da letto (opzionale)
- una camera da letto aggiuntiva, con un letto a 1 piazza e 1/2 (o meglio un letto matrimoniale), un armadio e una scrivania
- un ulteriore bagno (sempre con doccia, senza vasca) per tutti. Entrambi i bagni devono essere dotati di WC e bidet
- una (piccola) lavanderia, dove mettere lo scaldabagno (L 506 x H 1398 x L 535 mm), una lavasciuga, un armadio (per detersivi, scope, ecc...) e un lavatoio
- un controsoffitto, che non deve coprire tutti i soffitti, ma solo dove serve, per nascondere i tubi che vanno dall'unità esterna di condizionamento canalizzato (posizionata sul balcone laterale), dall'unità del sistema di ventilazione meccanica (posizionata nel controsoffitto), che collegano tutte le stanze, e per le luci.
Requisiti della TERRAZZA
La terrazza deve essere uno spazio divertente, dove trascorrere giochi, cene, bagni di sole e barbecue con gli amici.
Vorrei quindi una pergola (bioclimatica?), che immagino come un prolungamento del soggiorno interno (dimensione di circa 4.5/5m per lato), con pareti a zanzariera, dove mettere un tavolo con sedie, ecc ... allego immagine di come potrebbe essere.
Voglio un barbecue elettrico (https://www.amazon.it/gp/product/B00IILN5SW/) da appoggiare su una cucina inox tipo quella rappresentata in un immagine allegata, un calcio balilla, un tavolo da ping pong (pieghevole, per poterlo spostare facilmente quando non viene utilizzato), una doccia esterna (https://www.amazon.it/Gre-AR1009-Doccia- Solare-PVC/dp/B01CGKBQOU), lettini da spiaggia, sdraio?, amaca?, etc ...
Non voglio vegetazione che richieda manutenzione, anche se mi piace l'idea di avere un vaso con erbe aromatiche o un ulivo, ma non voglio vasi con piante e/o fiori che corrono lungo il perimetro del terrazzo.
---------------------------------------- - ---------------------------------------- - ---------------------------------------- - ----------------------------------------
Me encanta el estilo industrial, moderno y de alta tecnología. También me gusta el estilo nórdico, pero sobre todo por las lámparas y sillas. Me gustaría utilizar colores y materiales naturales: he adjuntado una paleta de colores y piedras.
El contexto consta de un apartamento y su terraza en el piso.
Adjunto plano de planta en PDF, a escala 1:100 con las columnas de soporte en rojo y los desagües del inodoro en azul, y un DWG.
Altura de las paredes: 2920 mm
NB #1: en mi opinión el punto crítico del apartamento es el número de ventanas y la posición de los radiadores en las habitaciones. Actualmente, los radiadores se encuentran debajo de (casi) todas las ventanas y se pueden mover si es necesario. El nuevo proyecto, sin embargo, deberá salvaguardar las necesidades de calefacción de cada habitación y prever la correcta ubicación (y tamaño) de los radiadores.
NB #2: No quiero escalones de ningún tipo ni barreras arquitectónicas.
NB #3: Viendo las fotos adjuntas se puede comprobar el pésimo estado de las paredes que dan a la terraza. Puedo intentar limpiarlos, ya que no se pueden reemplazar, pero también me gustaría considerar cubrirlos con piedra blanda removible o paneles de WPC, como se representa en la imagen adjunta. ¿Esto tiene sentido?
NB #4: el apartamento tiene 2 ventanas francesas y una ventana doble que da a la terraza. Si es necesario puedo transformar la ventana doble en una gran puerta francesa corredera y/o aumentar el ancho de las ventanas francesas existentes para facilitar el acceso a la terraza.
Requisitos del APARTAMENTO
Hay que repensar completamente la distribución, teniendo en cuenta que me encantan los espacios abiertos (estilo loft) y no me gustan los pasillos ni ver demasiadas puertas. Me gustan las puertas a ras de pared o correderas (internas o exteriores). Las puertas interiores deben tener una altura de 2400 mm.
A continuación se muestra lo que necesito/quiero:
- cocina y salón en un solo espacio diáfano. La cocina tiene una isla (posiblemente) y debe incluir un refrigerador de dos puertas (https://www.amazon.it/gp/product/B09FQ77PXZ) y una bodega separada (https://www.amazon.it/gp/product/B09VXYSYTK). El salón debe estar equipado con una mesa de 3000 mm (en cualquier caso no menos de 2400 mm), un sofá, sillones, una mesa de café y un rincón para ver la televisión. También me gustaría tener una mesa de billar (opcional) de 2250 x 1250 mm. En esta habitación también me gustaría colocar un portabotellas de metal (dimensiones L 310 x P 1080 x H 2500 mm) que ya tengo (ver foto adjunta)
- un dormitorio principal, con cama matrimonial, consola con silla para usar como escritorio o espejo, además de baño privado (con ducha grande, sin tina) y un espacioso walk-in closet. El vestidor no excluye necesariamente la presencia de un armario adicional en el dormitorio (opcional)
- otro dormitorio con cama doble (o más bien cama doble), armario y escritorio
- un baño adicional (siempre con ducha, sin bañera) para todos. Ambos baños deben estar equipados con inodoro y bidé.
- un lavadero (pequeño), donde colocar el calentador de agua (L 506 x H 1398 x L 535 mm), una lavadora secadora, un armario (para detergentes, escobas, etc...) y un fregadero.
- un falso techo, que no tiene que cubrir todo el techo, sino sólo donde sea necesario, para ocultar los conductos que salen de la unidad de aire acondicionado exterior por conductos (situada en el balcón lateral) y de la unidad del sistema de ventilación mecánica (situada en el techo falso ), que conectan todas las habitaciones, y por las luces.
Requisitos TERRAZA
La terraza debe ser un espacio divertido, donde pasar juegos, cenas, baños de sol y barbacoas en compañía.
Me gustaría entonces una pérgola (bioclimática), que me imagino como una extensión del salón interior (tamaño de 4,5/5m por lado aproximadamente), con paredes mosquiteras, donde poner mesa con sillas, etc... Adjunto imagen de cómo podría quedar.
Quiero una barbacoa eléctrica (https://www.amazon.it/gp/product/B00IILN5SW/) para colocar sobre un mueble de cocina de acero inoxidable como el que se muestra en la imagen adjunta, un futbolín, una mesa de ping pong (plegable para poder moverla fácilmente cuando no esté en uso), una ducha exterior (https://www.amazon.it/Gre-AR1009-Doccia-Solare-PVC/dp/B01CGKBQOU), tumbonas de playa, ¿tumbonas?, ¿hamaca?, etc...
No quiero vegetación que requiera mantenimiento, aunque me gusta la idea de tener un jarrón con hierbas aromáticas o un olivo, y no quiero macetas con plantas y/o flores recorriendo el perímetro de la terraza.