
04016 Sabaudia, Province of Latina, Italy
Residenziale - Zona Giorno/Notte
Descrizione
ENGLISH
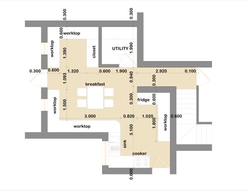
The Kitchen has been re-done roughly 30years ago, as you can see from the old map I attached in the resources.
I also attached a more modern one, sorry for the poor quality, I have indicated measurements, the walls with alphabetical letters plus arrows to indicate the compass points.
It has served its purpose excellently over the years but we feel like it’s time for a make over. Our aim is to make our kitchen a bigger, more spacious room using up some spaces around it (bathroom, utility, entrance to secondary door, hall, and their doors) that we reckon we don’t use as much. There’s a small porch outside the secondary entrance door.
We love cooking and we would love more working stations, when there are the 5 of us cooking all together: at the same time we wish to keep some breakfast/bar space for socialising when we have friends over or having a meal when there are the 2 of us only.
Ideally we don’t want to change the entire layout but incorporate the adjoining spaces seamlessly into the old one. We don’t want to face heavy renovation works if possible (but we are not adamant about that either) and we’d love to keep some Utility space for a laundry/ironing corner. We are happy with the built in style of the cabinets (and I mean bricks and concrete), and we love the glass doors more that the green wooden ones.
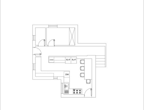
We are very happy with our appliances, we wish to keep them, we don’t like clutter and we tend to use everything we have; although you might see some decorations in the current kitchen we don’t mind giving them up. We are happy with the storage space that we have, we use all the cabinet spaces you see in the pics (even the big white closet in the utility room) and we love our old pantry cabinet with sliding doors, we love our free standing dishwasher, fridge and freezer.
I would love to change the sink into something more modern and good looking but the faucet is there to stay….
Our tastes are modern and minimal, a little like scandi style with a touch of mediterranean soul. We love white and all off whites, which also enhance the natural light from the windows.
Light is not abundant but maybe just because of the position of the openings, the entire space feels cool in summer, even without air con. A good source of light is the window on wall N, but doesn’t really benefit the kitchen area.
It would be good to have a modern more efficient way to use the existing lights/electric sockets.
Budget wise we want to be very mindful without compromise on quality: we don’t want eccentricity, we don’t want to go for luxury, rather smart solutions: elegant, timeless, sustainable, easy to clean colours and materials, especially tiles and floors.
There are some restraints to consider: the 2 big covered panels of the power and alarm system meters on wall E and the radiators box on wall Q. Plus the big S-T-U wall: bearing wall.
Please feel free to ask questions.
----------------------
ESPAÑOL
La cocina se volvió a hacer hace aproximadamente 30 años, como puedes ver en el mapa antiguo que adjunté en los recursos.
También adjunté uno más moderno, perdón por la mala calidad, he indicado medidas, las paredes con letras alfabéticas más flechas para indicar los puntos de la brújula.
Ha cumplido su propósito de manera excelente a lo largo de los años, pero sentimos que es hora de una renovación.
Nuestro objetivo es hacer de nuestra cocina una habitación más grande y espaciosa, utilizando algunos espacios a su alrededor (baño, utilidad, entrada a la puerta secundaria, hall y sus puertas) que consideramos que no usamos tanto. Hay un pequeño porche afuera de la puerta de entrada secundaria.
Nos encanta cocinar y nos encantaría tener más estaciones de trabajo, cuando hay cinco de nosotros cocinando todos juntos: Al mismo tiempo, deseamos mantener un espacio de desayuno/bar para socializar cuando tenemos amigos o cuando solo somos nosotros dos cenando.
Idealmente, no queremos cambiar todo el diseño, sino incorporar los espacios contiguos sin problemas en el anterior. Si es posible, no queremos enfrentar grandes trabajos de renovación (pero tampoco estamos firmes al respecto) y nos encantaría mantener un poco de espacio de utilidad para un rincón de lavandería/planchado. Estamos contentos con el estilo incorporado de los gabinetes (y quiero decir ladrillos y hormigón), y nos gustan más las puertas de vidrio que las de madera verde.
Estamos muy contentos con nuestros electrodomésticos, deseamos conservarlos, no nos gusta el desorden y tendemos a usar todo lo que tenemos; aunque puedes ver algunas decoraciones en la cocina actual, a las que no nos importaría renunciar. Estamos contentos con el espacio de almacenamiento que tenemos, utilizamos todos los espacios de gabinetes que ves en las fotos (incluso el gran armario blanco en el cuarto de servicio) y amamos nuestro gabinete viejo de despensa con puertas correderas, amamos nuestro lavaplatos, refrigerador y congelador independientes. Me encantaría cambiar el fregadero por algo más moderno y atractivo, pero el grifo está ahí para quedarse...
Nuestros gustos son modernos y minimalistas, un poco como el estilo scandi con un toque de alma mediterránea. Nos encantan los blancos y sus variantes, que también mejoran la luz natural de las ventanas. La luz no es abundante, pero quizás solo por la posición de las aberturas, todo el espacio se siente fresco en verano, incluso sin aire acondicionado.
Una buena fuente de luz es la ventana ubicada en la pared N, pero realmente no beneficia el área de la cocina. Sería bueno tener una forma moderna y más eficiente de usar las luces/enchufes eléctricos existentes.
En cuanto al presupuesto, queremos ser muy conscientes sin comprometer la calidad: no queremos excentricidad, no queremos buscar soluciones de lujo, más bien inteligentes: elegantes, atemporales, sostenibles, colores y materiales fáciles de limpiar, especialmente azulejos y pisos.
Hay algunas restricciones a tener en cuenta: los 2 grandes paneles cubiertos de los medidores del sistema de alimentación y alarma en la pared E y la caja de radiadores en la pared Q. Además, la gran pared S-T-U: muro de apoyo. Por favor, siéntase libre de hacer preguntas.
----------------------
ITALIANO
Una vecchia signora cucina in cerca di un nuovo spazio.
La nostra cucina ha 30 anni: dalla vecchia piantina nella sezione resources si puo’ vedere che era già stata rifatta dal primo impianto ; nella seconda piantina su carta millimetrata si possono indovinare le misure e i punti cardinali, più ho nominato ogni parete con lettere dell’alfabeto, per rintracciarle meglio nelle foto.
Il nostro desiderio e’ rendere la cucina uno spazio piu grande e piu vivibile, utilizzando i vani accanto come ingresso/corridoio (che da sulla porta dell’ingresso di servizio e un piccolo portico), bagnetto di servizio, stanza dello stiro e relative pareti/porte, spazi che non vengono molto usati.
Trascorriamo molto tempo in cucina anche quando siamo tutti e 5, quindi ci piacerebbe avere piu’ superfici per preparare anche se non vogliamo rinunciare ad un bancone per fare colazione quando siamo in 2 o per appoggio drinks/aperitivo quando abbiamo amici a cena. Vorremmo tenere anche uno spazio per lo stiro, attualmente nella stanzetta di servizio.
La cosa ideale sarebbe non cambiare totalmente l’impianto della cucina ma incorporare gli spazi circostanti nella maniera piu tranquilla possibile; se fosse possibile non vorremmo buttare giu tutto ma siamo comunque aperti a tutte le soluzioni. Vorremmo tenere lo stile “cucina in muratura” piu’ con le porte dei contenitori in vetro (come la dispensa a porte scorrevoli) che con le porte in legno verde. Usiamo tutto lo spazio interno dei mobili che si vedono nelle foto, anche quello del grande armadio a muro bianco.
Vogliamo tenere gli elettrodomestici che abbiamo, dal frigo ai forni al congelatore al piano cottura, anche la dispensa con le porte scorrevoli e siamo disposti a dar via lo spazio degli oggetti ornamentali. Ci piacerebbe cambiare il lavabo ma vorremmo tenere il rubinetto.
Siamo amanti dello stile scandinavo con tutto il bianco e i toni del bianco, magari con un tocco mediterraneo. Il bianco ci piace perché aiuterebbe la luce che non e’ abbondante. Allo stesso tempo la esposizione della cucina fa si che anche in estate rimanga fresca senza bisogno dell’aria condizionata. Sarebbe bene avere un modo piu efficiente e moderno di utilizzare la luce artificiale.
Riguardo il budget vorremmo contenere i costi senza pero’ compromettere la qualita’ delle scelte: non ci piacciono cose estreme, eccentriche, lusso a tutti i costi. Siamo piu per soluzioni eleganti, senza tempo ed efficienti, soprattutto per materiali, qualcosa che sia facile da pulire, resistente e sostenibile.
Ci sono degli ostacoli tecnici da considerare/superare: i due grandi pannelli del contatore e sistema di allarme nella parete E e la scatola dei tubi dei radiatori del piano coperta da un pannello di legno nella parete Q. La parete S-T-U e’ parete portante.
Chiedete pure se avete domande. Buona fortuna!
Update: I have been asked for more measurements so I'm going to upload a picture with the measurements on the floorpan, the general height of the room is 3 mt, except for the landing underneath the staircase which is slanting down to 1.90.
The sliding door pantry we'd like to keep is 120cm wide, the appliances are standard measurements and the glass door we like so much is custom made 60cm.
Update: Just uploaded a new file with more correct measurements: someone noticed that the previously uploaded were a little off. My mistake in writing, I deeply apologise for the inconvenience. Hope the new set makes more sense.