
91017 Pantelleria, Free municipal consortium of Trapani, Italy
Esterni - Terrazzo
Descrizione
ITA:
Il progetto riguarda la realizzazione di un esclusivo Lounge Bar sull'isola di Pantelleria.
Il progetto verrà realizzato intorno alla piscina (già presente) di un piccolo boutique hotel di lusso e copre un'area totale di quasi 1.000 m².
L'accesso al Lounge avverrà tramite sentieri circondati da piante direttamente dal parcheggio.
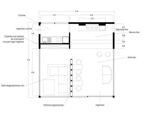
Elemento principale della progettazione in questione riguarda la terrazza, che per motivi tecnici e sanitari dovrà diventare un locale al "chiuso". La terrazza, oltre al bancone bar già presente dovrà contenere una piccola cucina nascosta per la somministrazione di piatti caldi e freddi, ed un angolo "reception - negozio".
In allegato alcune idee iniziali della nostra visione per lo stile, nonché la planimetria e le condizioni attuali.
In allegato ancora una volta brevemente i fatti concreti:
- Progetto di costruzione: Luxury lounge bar
- Area di progetto: 50 mq
- Locali: 1 Bar centrale con piccola cucina e banco reception
Visione generale:
Il lounge bar del nostro boutique hotel deve diventare uno spazio iconico, pensato per una clientela internazionale raffinata e abituata agli standard del lusso. Il pubblico target comprende ospiti legati al mondo della moda, dell'arte, del design e dei brand di lusso come Dior, che apprezzano ambienti ricercati, eleganti e dall'atmosfera esclusiva. L’obiettivo è creare un’esperienza unica, che unisca il fascino naturale e autentico di Pantelleria a un'estetica contemporanea e sofisticata, in linea con le aspettative di un pubblico esigente e glamour.
Concept:
Il design dovrà ispirarsi a un’eleganza senza tempo, reinterpretando in chiave moderna l’artigianalità e la bellezza del contesto mediterraneo. L’ambiente dovrà essere capace di sorprendere e coccolare, integrando armoniosamente lusso, comfort e bellezza. I dettagli saranno fondamentali per creare un’atmosfera che rifletta l’essenza del lusso discreto ma iconico, con uno stile che sia al contempo accogliente e perfettamente “Instagrammabile”.
Obiettivi principali:
Fusione tra natura e lusso contemporaneo: Il design deve enfatizzare l'ambiente naturale unico di Pantelleria, utilizzando materiali locali come la pietra lavica e legni pregiati, in combinazione con elementi di design moderni e lussuosi. Questa combinazione creerà un equilibrio tra autenticità locale e glamour internazionale.
Ambiente esclusivo ma accogliente: Il lounge bar deve trasmettere un senso di esclusività senza risultare freddo o eccessivamente formale. Gli ospiti devono sentirsi immersi in un contesto raffinato, dove ogni dettaglio – dall’arredo all’illuminazione – è pensato per offrire un’esperienza memorabile, perfetta per momenti di relax, socializzazione e divertimento sofisticato.
Design iconico e fotografabile: L’obiettivo è creare un luogo che sia visivamente straordinario, con punti focali accattivanti e un’estetica unica. Gli ospiti devono sentirsi ispirati a fotografare lo spazio, che sarà inevitabilmente condiviso sui social media, aumentando la visibilità del bar e del nostro hotel.
Caratteristiche principali del design:
Materiali e texture:
Materiali naturali e locali: Utilizza materiali che raccontino la storia dell’isola, come la pietra lavica di Pantelleria, abbinata a superfici eleganti in marmo lucido o quarzite, per creare contrasti tattili e visivi. Il legno di alta qualità e trattato per uso esterno dovrà essere utilizzato per sedute, tavoli e dettagli decorativi, evocando calore e naturalezza.
Tessuti pregiati: I tessuti devono essere di altissima qualità, resistenti ma piacevoli al tatto. Preferiamo materiali naturali come lino e cotone per il giorno, mentre la sera possono emergere velluti e pelle di lusso, arricchiti da dettagli metallici dorati o ramati.
Palette di colori: La palette deve essere sofisticata e legata alla natura dell’isola. Colori neutri e tenui come bianco avorio, beige sabbia e grigio pietra, arricchiti da accenti di blu cobalto e verde oliva, in grado di evocare il paesaggio circostante.
Arredo e layout:
Arredi di design esclusivi: Ogni pezzo di arredamento deve essere un capolavoro di design, preferibilmente firmato o custom-made, per riflettere la qualità e il gusto impeccabile dei brand di lusso come Dior. Divanetti bassi e lounge chair in stile contemporaneo, con linee pulite e morbide, dovranno essere disposti in modo da favorire la socializzazione ma anche offrire spazi intimi per conversazioni private.
Zona bar centrale: Il bar deve essere una dichiarazione di stile, con un bancone realizzato in materiali pregiati come marmo o onice retroilluminato, che diventa il cuore dello spazio. I dettagli metallici su sgabelli e rifiniture completeranno un’estetica chic e sofisticata.
Spazi modulari: Il design del layout dovrà consentire di adattare lo spazio per vari eventi o esigenze, come piccoli party privati o eventi di moda. Tavoli e sedute dovranno essere facilmente riposizionabili per creare ambienti più intimi o aperti a seconda delle necessità.
Illuminazione:
Di giorno: Utilizzare la luce naturale come elemento principale, con ampie vetrate o pergolati che filtrino la luce solare per creare un effetto rilassante. Prevedere tende leggere o sistemi di schermatura per ombreggiare le aree quando necessario.
Di sera: L’illuminazione dovrà essere più soffusa e scenografica. Preferiamo un mix di faretti incassati e lampade da terra o sospese in stile contemporaneo, che creino giochi di luce e ombra per un’atmosfera intima e suggestiva. L'uso di candele o lanterne aggiungerà un tocco romantico e di lusso discreto.
Esperienza sensoriale:
Elementi decorativi: Ogni dettaglio deve essere curato per offrire un’esperienza che coinvolga tutti i sensi. Considera l’utilizzo di fragranze personalizzate (come diffusori con profumi naturali ispirati alla macchia mediterranea) e la scelta di musica ambientale sofisticata, che si adatti all'atmosfera diurna e serale.
Accessori di lusso: I dettagli faranno la differenza. Posacenere di design, cuscini in tessuti pregiati, vassoi personalizzati e bicchieri di cristallo raffinati devono essere parte integrante dell’esperienza, offrendo agli ospiti quel tocco di esclusività che ricercano.
Tecnologia e innovazione:
Integra tecnologie moderne in modo discreto, come punti di ricarica USB nascosti, illuminazione regolabile e un sistema audio di alta qualità per musica ambientale e DJ set. Ogni elemento tecnologico deve essere integrato nel design in modo da non compromettere l’estetica del lusso, ma offrire al tempo stesso comfort e funzionalità.
Conclusione: L’ambiente del lounge bar dovrà parlare di lusso in ogni suo aspetto, richiamando l’attenzione di una clientela sofisticata e internazionale, come quella che frequenta i brand più esclusivi come Dior. Ogni dettaglio – dal design degli arredi all’illuminazione, dai materiali scelti all’esperienza sensoriale – deve essere studiato per offrire un’esperienza memorabile, ricca di stile e in perfetta armonia con il contesto naturale di Pantelleria.
ENG:
Project Outline - Exclusive Lounge Bar in Pantelleria
Project Overview: This project involves the creation of an exclusive lounge bar on the island of Pantelleria. It will be located around the existing pool area of a small luxury boutique hotel, covering a total area of nearly 1,000 m².
Access to the lounge will be via pathways surrounded by greenery, leading directly from the parking area.
Main Design Elements: The principal element of this design is the terrace, which, due to technical and health reasons, must be transformed into an enclosed space. The terrace, in addition to the existing bar counter, will need to include a small hidden kitchen for serving hot and cold dishes, as well as a “reception-shop” area.
Enclosed are some initial ideas illustrating our vision for the style, as well as the floor plan and current conditions.
Brief project facts:
Construction project: Luxury lounge bar
Project area: 50 m²
Spaces: 1 Central bar with a small kitchen and reception desk
Overall Vision: Our boutique hotel’s lounge bar should become an iconic space tailored to a refined international clientele accustomed to the highest standards of luxury. Our target audience includes guests with ties to the worlds of fashion, art, design, and luxury brands like Dior, who appreciate curated, elegant spaces with an exclusive atmosphere. Our goal is to create a unique experience that blends the natural, authentic charm of Pantelleria with a contemporary, sophisticated aesthetic that meets the expectations of a demanding and glamorous audience.
Concept: The design should be inspired by timeless elegance, with a modern reinterpretation of the Mediterranean’s craftsmanship and beauty. The environment should surprise and indulge, seamlessly integrating luxury, comfort, and beauty. Attention to detail will be essential in creating an ambiance that reflects the essence of discreet yet iconic luxury, combining a welcoming feel with an aesthetic that’s perfectly “Instagrammable.”
Key Objectives:
Fusion of Nature and Contemporary Luxury: The design should emphasize the unique natural setting of Pantelleria, using local materials like lava stone and high-quality woods, combined with modern, luxurious design elements. This blend will create a balance between local authenticity and international glamour.
Exclusive yet Welcoming Atmosphere: The lounge bar should exude exclusivity without feeling cold or overly formal. Guests should feel immersed in a refined setting, where every detail – from furnishings to lighting – is designed to offer a memorable experience, ideal for relaxation, socializing, and sophisticated entertainment.
Iconic and Photogenic Design: The goal is to create a visually stunning location with captivating focal points and a unique aesthetic. Guests should feel inspired to photograph the space, which will inevitably be shared on social media, increasing visibility for the bar and our hotel.
Main Design Characteristics:
Materials and Textures:
Natural and Local Materials: Use materials that tell the story of the island, such as Pantelleria’s lava stone, paired with elegant surfaces like polished marble or quartzite, to create tactile and visual contrasts. High-quality wood, treated for outdoor use, should be used for seating, tables, and decorative details, evoking warmth and natural beauty.
Luxury Fabrics: Fabrics should be of the highest quality, durable yet pleasant to the touch. We prefer natural materials like linen and cotton for daytime use, while the evening can feature velvets and luxury leathers enriched with metallic gold or copper accents.
Color Palette: The palette should be sophisticated and connected to the island’s nature. Neutral, soft colors like ivory white, sandy beige, and stone gray, accented with cobalt blue and olive green, should evoke the surrounding landscape. Subtle metallic details like brushed gold, copper, and brass will add a touch of glamour without being excessive.
Furnishings and Layout:
Exclusive Designer Furniture: Each piece of furniture should be a design masterpiece, preferably signed or custom-made, reflecting the quality and impeccable taste of luxury brands like Dior. Low sofas and contemporary lounge chairs with clean, soft lines should be arranged to encourage socializing while also offering intimate spaces for private conversations.
Central Bar Area: The bar should be a statement piece, with a counter made of high-end materials like backlit marble or onyx, forming the heart of the space. Metallic details on stools and finishes will complete a chic, sophisticated aesthetic.
Modular Spaces: The layout design should allow the space to be adapted for various events or purposes, such as private parties or fashion events. Tables and seating should be easily rearranged to create more intimate or open spaces as needed.
Lighting:
Daytime: Use natural light as the main element, with large windows or pergolas that filter sunlight to create a relaxing effect. Provide light curtains or shading systems to shade areas when necessary.
Evening: Lighting should be softer and more theatrical. We prefer a mix of recessed spotlights and contemporary-style floor or hanging lamps, creating light and shadow play for an intimate and suggestive ambiance. Candles or lanterns will add a romantic, subtly luxurious touch.
Sensory Experience:
Decorative Elements: Every detail should be curated to offer an experience that engages all the senses. Consider using personalized fragrances (such as diffusers with natural scents inspired by the Mediterranean) and a selection of sophisticated ambient music that adapts to both day and night atmospheres.
Luxury Accessories: The details will make the difference. Designer ashtrays, high-quality cushions, customized trays, and refined crystal glasses should be an integral part of the experience, offering guests that touch of exclusivity they seek.
Technology and Innovation:
Discreetly integrate modern technologies, such as hidden USB charging points, adjustable lighting, and a high-quality audio system for ambient music and DJ sets. Every technological element should be incorporated into the design so as not to compromise the aesthetic of luxury but still provide comfort and functionality.
Conclusion: The lounge bar environment should speak of luxury in every aspect, capturing the attention of a sophisticated international clientele, akin to those who frequent the most exclusive brands like Dior. Every detail – from the furniture design to the lighting, from the choice of materials to the sensory experience – should be carefully considered to offer a memorable, stylish experience in perfect harmony with Pantelleria's natural setting.
This brief should guide the designer to create a luxurious, elegant space that attracts an exclusive clientele while preserving the authentic, refined soul of your hotel in Pantelleria.
ESP:
Esquema del Proyecto - Lounge Bar Exclusivo en Pantelleria
Descripción del Proyecto: Este proyecto consiste en la creación de un lounge bar exclusivo en la isla de Pantelleria. Estará ubicado alrededor de la zona de piscina ya existente de un pequeño hotel boutique de lujo, cubriendo un área total de casi 1,000 m².
El acceso al lounge será a través de senderos rodeados de vegetación, que conducen directamente desde el área de estacionamiento.
Elementos Principales del Diseño: El elemento principal de este diseño es la terraza, que, por razones técnicas y sanitarias, deberá transformarse en un espacio cerrado. La terraza, además del mostrador de bar ya existente, deberá incluir una pequeña cocina oculta para servir platos fríos y calientes, así como un área de "recepción-tienda."
Adjunto algunas ideas iniciales que ilustran nuestra visión del estilo, junto con el plano y las condiciones actuales.
Resumen del proyecto:
Proyecto de construcción: Lounge bar de lujo
Área del proyecto: 50 m²
Espacios: 1 Bar central con pequeña cocina y mostrador de recepción
Visión General: El lounge bar de nuestro hotel boutique debe convertirse en un espacio icónico, diseñado para una clientela internacional refinada y acostumbrada a los más altos estándares de lujo. Nuestro público objetivo incluye huéspedes vinculados a los mundos de la moda, el arte, el diseño y marcas de lujo como Dior, que aprecian espacios cuidadosamente diseñados, elegantes y con una atmósfera exclusiva. Nuestro objetivo es crear una experiencia única que combine el encanto natural y auténtico de Pantelleria con una estética contemporánea y sofisticada, acorde con las expectativas de un público exigente y glamuroso.
Concepto: El diseño debe estar inspirado en una elegancia atemporal, con una reinterpretación moderna de la artesanía y belleza del Mediterráneo. El ambiente debe sorprender y deleitar, integrando lujo, confort y belleza de manera armoniosa. La atención al detalle será esencial para crear una atmósfera que refleje la esencia de un lujo discreto pero icónico, combinando una sensación acogedora con una estética perfectamente “Instagrammeable”.
Objetivos Clave:
Fusión de Naturaleza y Lujo Contemporáneo: El diseño debe enfatizar el entorno natural único de Pantelleria, utilizando materiales locales como la piedra volcánica y maderas de alta calidad, en combinación con elementos de diseño modernos y lujosos. Esta combinación creará un equilibrio entre la autenticidad local y el glamour internacional.
Ambiente Exclusivo pero Acogedor: El lounge bar debe irradiar exclusividad sin resultar frío o excesivamente formal. Los huéspedes deben sentirse inmersos en un entorno refinado, donde cada detalle – desde el mobiliario hasta la iluminación – esté pensado para ofrecer una experiencia memorable, ideal para la relajación, la socialización y el entretenimiento sofisticado.
Diseño Icónico y Fotogénico: El objetivo es crear un lugar visualmente impactante con puntos focales cautivadores y una estética única. Los huéspedes deben sentirse inspirados a fotografiar el espacio, que inevitablemente será compartido en redes sociales, aumentando la visibilidad del bar y de nuestro hotel.
Características Principales del Diseño:
Materiales y Texturas:
Materiales Naturales y Locales: Utiliza materiales que cuenten la historia de la isla, como la piedra volcánica de Pantelleria, combinada con superficies elegantes como mármol pulido o cuarzo, para crear contrastes táctiles y visuales. La madera de alta calidad, tratada para uso exterior, se usará en asientos, mesas y detalles decorativos, evocando calidez y belleza natural.
Tejidos de Lujo: Los tejidos deben ser de la más alta calidad, duraderos y agradables al tacto. Preferimos materiales naturales como lino y algodón para el día, mientras que por la noche pueden aparecer terciopelos y cueros de lujo enriquecidos con detalles metálicos dorados o cobrizos.
Paleta de Colores: La paleta debe ser sofisticada y conectada a la naturaleza de la isla. Colores neutros y suaves como blanco marfil, beige arena y gris piedra, acentuados con azul cobalto y verde oliva, evocarán el paisaje circundante. Detalles metálicos sutiles como dorado cepillado, cobre y latón añadirán un toque de glamour sin ser excesivos.
Mobiliario y Distribución:
Mobiliario de Diseño Exclusivo: Cada pieza de mobiliario debe ser una obra maestra de diseño, preferiblemente firmada o hecha a medida, reflejando la calidad y el gusto impecable de marcas de lujo como Dior. Sofás bajos y sillones lounge de estilo contemporáneo, con líneas limpias y suaves, deben disponerse de manera que fomenten la socialización pero también ofrezcan espacios íntimos para conversaciones privadas.
Área Central del Bar: El bar debe ser una declaración de estilo, con un mostrador de materiales de alta gama como mármol retroiluminado o ónix, formando el corazón del espacio. Los detalles metálicos en taburetes y acabados completarán una estética chic y sofisticada.
Espacios Modulares: El diseño de la distribución debe permitir adaptar el espacio para varios eventos o propósitos, como fiestas privadas o eventos de moda. Las mesas y asientos deben poder reconfigurarse fácilmente para crear ambientes más íntimos o abiertos según se requiera.
Iluminación:
Día: Utiliza la luz natural como elemento principal, con grandes ventanas o pérgolas que filtren la luz solar para crear un efecto relajante. Proporcione cortinas ligeras o sistemas de sombreado para oscurecer las áreas cuando sea necesario.
Noche: La iluminación debe ser más suave y teatral. Preferimos una mezcla de focos empotrados y lámparas de pie o suspendidas de estilo contemporáneo, que creen juegos de luces y sombras para una atmósfera íntima y sugerente. Las velas o linternas añadirán un toque romántico y sutilmente lujoso.
Experiencia Sensorial:
Elementos Decorativos: Cada detalle debe estar cuidado para ofrecer una experiencia que involucre todos los sentidos. Considere el uso de fragancias personalizadas (como difusores con aromas naturales inspirados en la vegetación mediterránea) y una selección de música ambiental sofisticada, que se adapte a las atmósferas diurnas y nocturnas.
Accesorios de Lujo: Los detalles marcarán la diferencia. Ceniceros de diseño, cojines de tejidos de alta calidad, bandejas personalizadas y vasos de cristal refinado deben ser una parte integral de la experiencia, ofreciendo a los huéspedes ese toque de exclusividad que buscan.
Tecnología e Innovación: Integra discretamente tecnologías modernas, como puntos de carga USB ocultos, iluminación ajustable y un sistema de audio de alta calidad para música ambiental y sets de DJ. Cada elemento tecnológico debe incorporarse en el diseño de manera que no comprometa la estética del lujo, pero que aún ofrezca comodidad y funcionalidad.
Conclusión: El ambiente del lounge bar debe hablar de lujo en todos sus aspectos, capturando la atención de una clientela internacional sofisticada, como aquellos que frecuentan las marcas más exclusivas como Dior. Cada detalle – desde el diseño del mobiliario hasta la iluminación, desde la elección de materiales hasta la experiencia sensorial – debe estar cuidadosamente considerado para ofrecer una experiencia memorable y con estilo en perfecta armonía con el entorno natural de Pantelleria.
Este resumen debe guiar al diseñador para crear un espacio lujoso y elegante que atraiga a una clientela exclusiva, manteniendo al mismo tiempo el alma auténtica y refinada de su hotel en Pantelleria.