
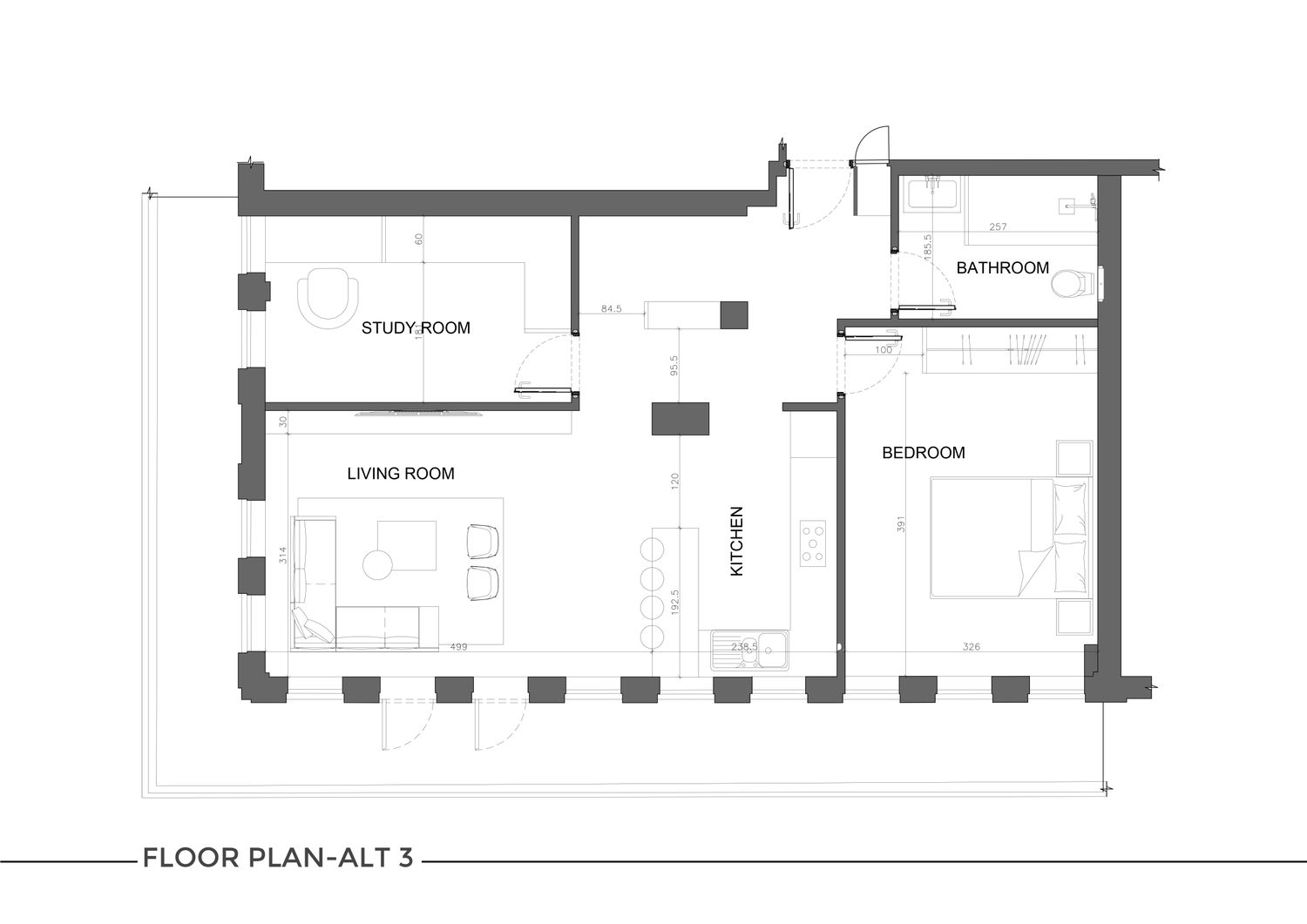
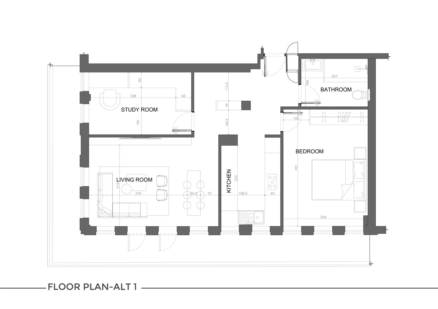
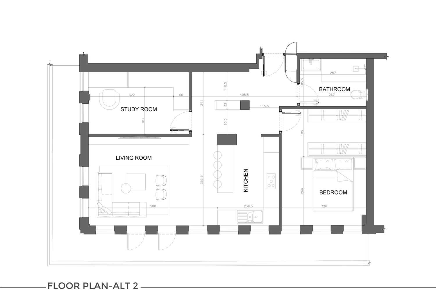
London, UK
Residenziale - Appartamento
Dear client, thank you for your interesting project.
As per your request, I used dark royal green and black tones for the bedrooms, while keeping the ceiling white to avoid making the space feel heavy.
For the flooring, I chose a light wood tone to create a more open and airy atmosphere.
In the kitchen design, I used black combined with green stone. Since the file size was quite large, I have included the download link in the description.
https://www.mediafire.com/file/kjtwmzscuj3nhjc/k.max/file
Gentile cliente, grazie per il suo progetto interessante.
Come da sua richiesta, ho utilizzato il verde reale scuro e il nero per le camere da letto, mantenendo però il soffitto bianco per evitare che l’ambiente risulti troppo chiuso.
Per il pavimento ho scelto un parquet chiaro, così da rendere lo spazio più luminoso e accogliente.
Nella cucina ho utilizzato il colore nero abbinato alla pietra verde. Poiché il file era piuttosto pesante, ho inserito il link per il download nella descrizione.