
London, UK
Residenziale - Appartamento
Descrizione
ENGLISH:
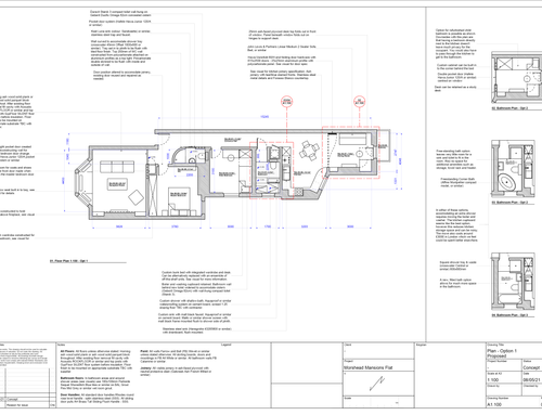
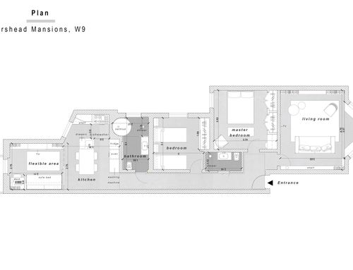
Our flat is a classic victorian 3bed mansion block flat, situated in the heart of Maida Vale (West London).
Despite being originally structured as a 3bed, the flat was renovated in the 90s and the room at the back was open up into a dining-kitchen area. We will be using the flat as a family of four and need to use the space at the back dynamically and flexibly.
A videotour of the apartment, in its current state, is available at this link https://youtu.be/7l471-gC42Y .
There are three major things that we need done in the flat:
1- We need to fit hardwood floor throughout (keeping in mind that this needs to be sound insulated). One important thing concerning the floor is that we would like the hardwood to run through the kitchen, all the way to the back of the flat.
2- We need to renovate Kitchen and main Bathroom entirely. In particular, we need to increase and maximize the space in the bathroom, where we need both a shower and a (small if not regular) baththub for the kids.
3- We need to think about a clever way to enable flexible use of the space at the back of the flat. For the first five to seven years we are planning to have the children share the secondary bedroom and keep the space at the back as a family area. The room at the back, where the dining table is currently situated, will have three uses: i) family space, when we are all together; ii) office space, when one of us is working from home; and iii) guest room, when we have people over. So the room will be furnished with a sofa bed and a desk, and will have as much space in the middle as possible (for kids to play and relax). This means we need to find a clever way to close the opening between the kitchen and the backroom (maybe a seamless or a sliding door), without sacrificing too much the open plan feel we have at the moment. In later years, when our children grow up a bit, they might want to use separate rooms, at which point the back room will be converted into a child room.
What follows is a detailed list of all the things we would like done, room by room.
*** FULL FLAT:
- Hardwood Floor --> We would like this to be as homogenous as possible and to go throughout the whole flat (including kitchen and back room)
- Paint --> Paint all rooms and repaint all doors
- Corridor --> Increase the number of light points. We would also like to do something to reduce the sense of narrow dark corridor, like for example put some panelling decoration on the left side of the corridor.
*** LIVING ROOM
- Fireplace --> We would like to keep the fireplace feature, but have it emptied and clean
- TV Cables --> We would like to think about a clever (but inexpensive) way to hide the TV cables. We would like the TV on top of the fireplace.
*** MASTER BEDROOM
- Fitted wardrobe --> We would like this fresh painted and maybe we will consider having some shelves done. Also maybe it might be worth swapping the door opening on the opposite side of how it is now, so that we can extend the wardrobe.
*** ENTRANCE CABINET
- Extra Toilet --> We would like an extra toilet, ideally with WC, shower and small basin. We are also willing to consider expanding the wall, perhaps using a round shape.
*** BATHROOM & Cylinder Cabinet
- Entire Renovation --> We would like to maximize the space here. We need a shower/bath and loads of space to move around with the children. Ideally, we would get rid of the cabinet where the water cylinder and washing machine are at the moment. If that is too complicated or costly (structural wall removal), then an alternative would be to get rid of the cylinder and washing machine, close the corridor door of the cabinet, then use that space for a shower. Possibly place a small freestanding thub for the children (we like the idea of a corner one).
*** KITCHEN
- Entire Renovation --> New fitted kitchen, inclusive of following appliances: oven, fridge/freezer, dishwasher, washing/dryer.
- Boiler --> Fit new boiler (modern unit that does not require cylinder)
*** BACK ROOM
- Kitchen Opening --> Our plan is to use the back room in a "flexible" way. What we mean by this is that for the first 5 years we would like to keep the room in the back as a family space, with a small sofa bed and a desk. So we would like to have the option of keeping the open flow between kitchen and back room. Yet, we would like to have a door that can separate the space in case we have guests (during these 5 years) and in case we decide to use the back room as a third bedroom. One option could be to reduce the size of the opening to fit a sliding door or to design/engineer a seamless pivot door. Either way, we would like the opening to keep being centred with respect to the window of the back room.
*** Other things
- Doors --> Repaint and check handles to ensure they are all consistent throughout
- Windows --> Repaint frame
ITALIAN:
Il nostro appartamento è un classico appartamento vittoriano con 3 stanze da letto, salone, cucina e bagno, situato nel cuore di Maida Vale (West London). Nonostante fosse originariamente strutturato come trilocale, l'appartamento è stato ristrutturato negli anni '90 e la stanza sul retro è stata aperta su una zona pranzo-cucina. Useremo l'appartamento come una famiglia di quattro persone e dovremo usare lo spazio sul retro in modo dinamico e flessibile.
Vi lascio il link del videotour dell'appartamento: https://youtu.be/7l471-gC42Y
Ci sono tre cose principali che dobbiamo fare nell'appartamento:
1- Dobbiamo rifare il pavimento dappertutto e per questo vorremmo installare il parquet (tenendo presente che questo deve essere isolato acusticamente). Una cosa importante riguardo al pavimento è che vorremmo che il legno attraversasse la cucina, fino al fondo dell'appartamento.
2- Dobbiamo rinnovare completamente la cucina e il bagno principale. In particolare, dobbiamo aumentare e massimizzare lo spazio nel bagno, dove abbiamo bisogno sia di una doccia che di una (piccola se non angolare) vasca da bagno per i bambini.
3- Dobbiamo pensare ad un modo intelligente per consentire un uso flessibile dello spazio sul retro dell'appartamento. Per i primi cinque o sette anni abbiamo in programma di far condividere ai bambini la camera da letto secondaria e di mantenere lo spazio sul retro come area familiare. La stanza sul retro, dove attualmente si trova il tavolo da pranzo, avrà tre usi: 1) spazio familiare, quando siamo tutti insieme; 2) spazio ufficio, quando uno di noi lavora da casa; 3) camera per gli ospiti, quando abbiamo persone a casa.
Quindi la stanza sarà arredata con un divano letto e una scrivania, avrà spazio libero al centro (per far giocare e rilassare i bambini). Dobbiamo trovare un modo intelligente per chiudere l'apertura tra la cucina e la stanza sul retro (magari una porta invisibile o scorrevole), senza sacrificare troppo l'effetto di open space che abbiamo al momento. Negli anni successivi, quando i nostri figli cresceranno un po ', potrebbero voler usare stanze separate, a quel punto la stanza sul retro verrà trasformata in una stanza per bambini.
Di seguito un elenco dettagliato di tutte le cose che vorremmo fare, stanza per stanza.
*** APPARTAMENTO:
- Pavimento in legno -> Vorremmo che fosse il più omogeneo possibile e coprisse l'intero appartamento (compresa la cucina e il retro)
- Pitturare -> Pitturare tutte le stanze e ridipingere tutte le porte
- Corridoio -> Aumentare il numero di punti luce. Vorremmo anche fare qualcosa per ridurre il senso di stretto corridoio buio, come ad esempio mettere qualche decorazione a pannelli sul lato sinistro del corridoio.
*** SOGGIORNO
- Camino -> Vorremmo mantenere il caminetto, ma svuotarlo e pulirlo
- Cavi TV -> Vorremmo pensare a un modo intelligente (ma poco costoso) per nascondere i cavi TV. Vorremmo la TV sopra il caminetto.
*** CAMERA MATRIMONIALE
- Armadio a muro -> Vorremmo arricchire l'armadio esistente (costruito su misura) con ulteriori ripiani interni, e forse aggiungere degli scaffali. Inoltre potrebbe valere la pena scambiare l'apertura della porta sul lato opposto di com'è ora, in modo da poter estendere l'armadio.
*** ARMADIO D'INGRESSO
- Piccolo Bagno -> Vorremmo una toilette extra, idealmente con WC, doccia e piccolo lavabo. Siamo anche disponibili a prendere in considerazione l'ampliamento del muro, magari utilizzando una forma tonda.
*** BAGNO e armadietto
- Intero restauro -> Vorremmo massimizzare lo spazio qui. Abbiamo bisogno di una doccia / vasca da bagno e di molto spazio per muoverci con i bambini. Idealmente, dovremmo sbarazzarci dell'armadio in cui si trovano il cilindro dell'acqua e la lavatrice. Se ciò è troppo complicato o costoso (rimozione della parete strutturale), un'alternativa sarebbe quella di sbarazzarsi del cilindro e della lavatrice, chiudere la porta del corridoio dell'armadio, quindi utilizzare quello spazio per una doccia. Eventualmente posizionare una piccola vasca indipendente per i bambini (ci piace l'idea di una vasca d'angolo).
*** CUCINA
- Intera Ristrutturazione -> Nuova cucina attrezzata, comprensiva dei seguenti elettrodomestici: forno, frigo / freezer, lavastoviglie, lavatrice / asciugatrice.
- Caldaia -> Montare una nuova caldaia (unità moderna che non necessita di bollitore)
*** STANZA SUL RETRO
- Apertura della cucina -> Il nostro progetto è quello di utilizzare la stanza sul retro in modo "flessibile". Ciò che intendiamo con questo è che per i primi 5 anni vorremmo mantenere la stanza sul retro come uno spazio familiare, con un piccolo divano letto e una scrivania. Quindi vorremmo avere la possibilità di mantenere il flusso aperto tra la cucina e la stanza sul retro. Tuttavia, vorremmo avere una porta che possa separare lo spazio nel caso in cui abbiamo ospiti (durante questi 5 anni) e nel caso decidessimo di utilizzare la stanza sul retro come terza camera da letto. Un'opzione potrebbe essere quella di ridurre le dimensioni dell'apertura per adattarsi a una porta scorrevole o progettare una porta a bilico senza soluzione di continuità. In ogni caso, vorremmo che l'apertura rimanesse centrata rispetto alla finestra della stanza sul retro.
*** Altre cose
- Porte -> Ridipingere e controllare le maniglie per garantire che siano tutte coerenti dappertutto
- Windows -> Ridipingere la cornice
SPANISH
Nuestro apartamento es una mansión victoriana clásica de 3 dormitorios ubicada en el corazón de Maida Vale (oeste de Londres).
Aunque originalmente estaba estructurado como un apartamento de tres habitaciones, el apartamento fue renovado en la década de 1990 y la habitación trasera se abría a un área de comedor-cocina. Usaremos el apartamento como una familia de cuatro y tendremos que usar el espacio trasero de manera dinámica y flexible.
Os dejo el enlace del video tour del apartamento: https://youtu.be/7l471-gC42Y
Hay tres cosas principales que debemos hacer en el apartamento:
1- Tenemos que adaptar el suelo de madera en todas partes (teniendo en cuenta que este debe estar aislado acústicamente). Una cosa importante sobre el piso es que nos gustaría que la madera pasara por la cocina, hasta la parte trasera del apartamento.
2- Tenemos que reformar por completo la cocina y el baño principal. En particular, necesitamos aumentar y maximizar el espacio en el baño, donde necesitamos una ducha y una bañera (pequeña si no regular) para los niños.
3- Necesitamos pensar en una forma inteligente de permitir un uso flexible del espacio en la parte trasera del apartamento. Durante los primeros cinco o siete años, planeamos que los niños compartan el dormitorio secundario y mantengan el espacio trasero como un área familiar. La trastienda, donde actualmente se ubica la mesa del comedor, tendrá tres usos: 1) espacio familiar, cuando estemos todos juntos; 2) espacio de oficina, cuando uno de nosotros trabaja desde casa; 3) habitación de invitados, cuando tenemos gente en casa. Por lo que la habitación estará amueblada con un sofá cama y un escritorio, tendrá el mayor espacio posible en el centro (para que los niños jueguen y se relajen). Necesitamos encontrar una manera inteligente de cerrar la abertura entre la cocina y la trastienda (tal vez una puerta sin costuras o corredera), sin sacrificar demasiado la sensación de planta abierta que tenemos en este momento. En años posteriores, a medida que nuestros hijos crezcan un poco, es posible que deseen usar habitaciones separadas, momento en el que la habitación trasera se transformará en una habitación para niños.
A continuación se muestra una lista detallada de todas las cosas que nos gustaría hacer, habitación por habitación.
*** DEPARTAMENTO:
- Suelo de parquet -> Nos gustaría que fuera lo más homogéneo posible y cubriera todo el apartamento (incluida la cocina y la espalda)
- Pintura -> Pintar todas las habitaciones y repintar todas las puertas
*** SALA DE ESTAR
- Chimenea -> Nos gustaría mantener la funcionalidad de la chimenea, pero vaciarla y limpiarla
- Cables de TV -> Nos gustaría pensar en una forma inteligente (pero económica) de ocultar los cables de TV. Quisiéramos la televisión sobre la chimenea.
*** DOBLE HABITACION
- Armario empotrado -> Tal vez consideremos hacer algunos estantes. También podría valer la pena cambiar la apertura de la puerta al lado opuesto de cómo está ahora, para que pueda extender el armario.
*** ARMARIO DE ENTRADA
- Inodoro adicional -> Nos gustaría un inodoro adicional, idealmente con inodoro, ducha y lavabo pequeño. También estamos disponibles para considerar ensanchar la pared, quizás usando una forma redonda.
*** BAÑO y taquilla
- Restauración completa -> Nos gustaría maximizar el espacio aquí. Necesitamos una ducha / bañera y mucho espacio para moverse con los niños. Lo ideal sería deshacernos del armario donde se encuentran el cilindro de agua y la lavadora. Si esto es demasiado complicado o costoso (remoción de la pared estructural), una alternativa sería deshacerse del cilindro y la lavadora, cerrar la puerta del pasillo del armario y luego usar ese espacio para una ducha. Finalmente, coloque un pequeño thub independiente para los niños (nos gusta la idea de un thub de esquina).
*** COCINA
- Renovación completa -> Cocina nueva equipada, que incluye los siguientes electrodomésticos: horno, frigorífico / congelador, lavadora / secadora.
- Caldera -> Montar una nueva caldera (unidad moderna que no requiere caldera)
*** HABITACIÓN TRASERA
- Abrir la cocina -> Nuestro plan es utilizar la trastienda de forma "flexible". Lo que queremos decir con esto es que durante los primeros 5 años nos gustaría mantener la habitación trasera como un espacio familiar, con un pequeño sofá cama y un escritorio. Así que nos gustaría tener la capacidad de mantener el flujo abierto entre la cocina y la trastienda. Sin embargo, nos gustaría tener una puerta que pueda separar el espacio en caso de que tengamos invitados (durante estos 5 años) y en caso de que decidamos usar la habitación trasera como un tercer dormitorio. Una opción sería reducir el tamaño de la abertura para que quepa en una puerta corredera o diseñar una puerta pivotante sin costuras. En cualquier caso, nos gustaría que la abertura se mantuviera centrada con respecto a la ventana de la trastienda.
*** Otras cosas
- Puertas -> Vuelva a pintar y revise las manijas para asegurarse de que todas sean consistentes en todas partes
- Windows -> Repintar el marco
- Pasillo -> Aumentar el número de puntos de luz. También nos gustaría hacer algo para reducir la sensación de pasillo oscuro y estrecho, como colocar una decoración con paneles en el lado izquierdo del pasillo.