
Baku, Azerbaijan
Residenziale - Zona Giorno/Notte
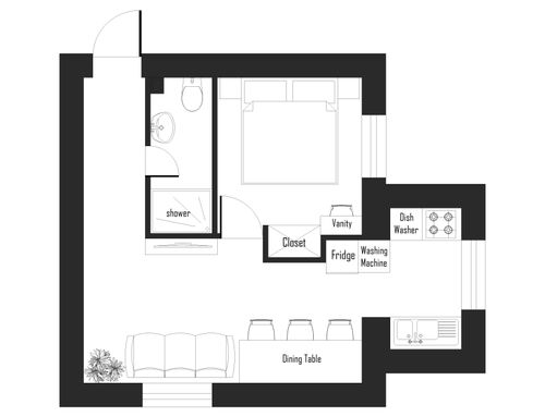
Descrizione
Functional, simple, on budget but tasteful! (if such a thing is possible:)
Some notes and explanations:
- The studio is located on the 2nd floor of an old/run-down Soviet-era 5-floor building, conveniently located next to the business downtown;
- The "porch" used to be an ordinary open-balcony, but has since been covered with walls all around;
- The kitchen has to be in the small corner next to the bathroom, that's where the sewage lines are
- The reason for a tight budget.. the whole building might be taken-down/demolished in ~5 years, and I don't want to invest too much into it
The initial plan for the apt is to be put on Airbnb, or potentially for myself. Either way, think of it as being done for a couple with no kids, early/mid 30's.
What I expect:
- The windows will be replaced with uPVC
- The metal security "grills" on the windows will be removed to improve the window views
- The parquet floor is non-recoverable; Wood or Laminate will be used in the living room area, kitchen & door entrance will probably be ceramics flooring
- Bed size - Queen (180cm), preferably a couch that can accommodate a 3rd person, washing machine plus the usual other appliances (fridge & stove, i guess a dishwasher won't fit?). I don't expect much cooking to be done there
The Hard part:
- To fit everything for a comfortable living.. no separate bedroom, but the sleeping area has to be visually separate from the rest
The Style:
- I am not too picky, and happy to consider various options. The simple option is modern minimalistic, but I have also lived in Italy and Europe in general before, quite miss those classic - cozy styles (especially the azulejos)!
Any questions? Ask, I will be quite responsive