
12037 Saluzzo, Province of Cuneo, Italy
Residenziale - Zona Giorno/Notte
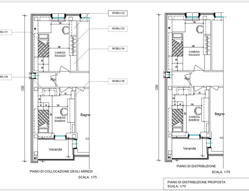
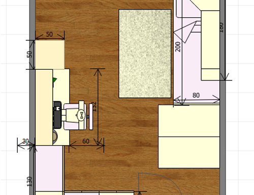
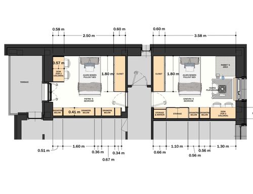
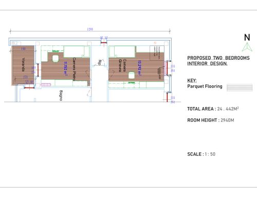
Descrizione
Hi all, I have 2 rooms for boys, a boy and a girl (10 and 13 years old) that I would like to refurbish in a modern style. A second bed for guest friends would be useful, as well as spaces for storing games and shelves for their legos, as well as wardrobe and space for school books. The desk is important, even retractable (preferably a little large). It would be nice to hang a hammock from the ceiling for moments of relaxation. We don't really like bridge or loft bedrooms. In the girl's room it is necessary to foresee the house of her bunny.
Hola a todos, tengo 2 habitaciones para niños, un niño y una niña (10 y 13 años) que me gustaría reformar con un estilo moderno. Sería útil una segunda cama para los amigos invitados, espacios de almacenamiento para juegos y estantes para sus legos, así como un armario y espacio para libros escolares. El escritorio es importante, incluso retráctil (preferiblemente un poco grande). Sería bueno colgar una hamaca del techo para momentos de relajación. Realmente no nos gustan las habitaciones tipo puente o tipo loft. En la habitación de la niña hay que prever la casa de su conejito.
Salve a tutti, ho 2 stanze per ragazzi, un maschio e una femmina (10 e 13 anni) che vorrei riarredare in stile moderno. Sarebbe utile un secondo letto per gli amici ospiti, spazi per sistemare i giochi e scaffali per i loro lego, oltre all'armadio e allo spazio per i libri di scuola. Importante la scrivania, anche a scomparsa (meglio se un pò ampia). Sarebbe bello appendere un'amaca al soffitto per i momenti di relax. Non amiamo molto le camerette a ponte o a soppalco. Nella camera della ragazza bisogna prevedere la casa del suo coniglietto.