
Rome, Metropolitan City of Rome, Italy
Residenziale - Altro
Sara Diamanti
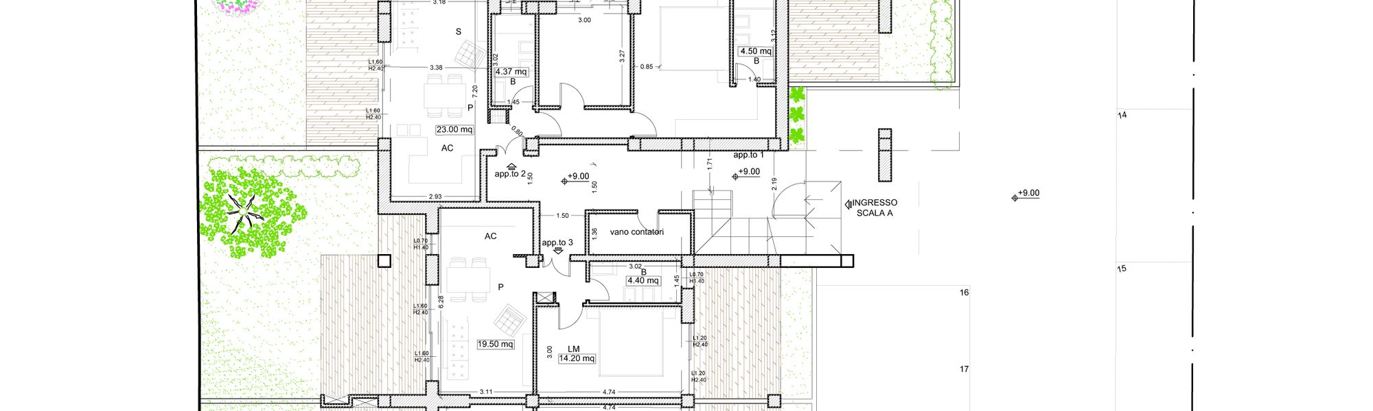
Demolizione e ricostruzione di una plurifamiliare su due livelli, composta da due corpi scala che servono 5 appartamenti ciascuno, 2 al piano terra, 3 al piano primo. Si richiedevano tagli piccoli pertanto si è puntato su grande vetrate su ampie terrazze per dare il più possibile il senso di spazio.