
36100 Vicenza, Province of Vicenza, Italy
Residenziale - Appartamento
Jose Perfetto
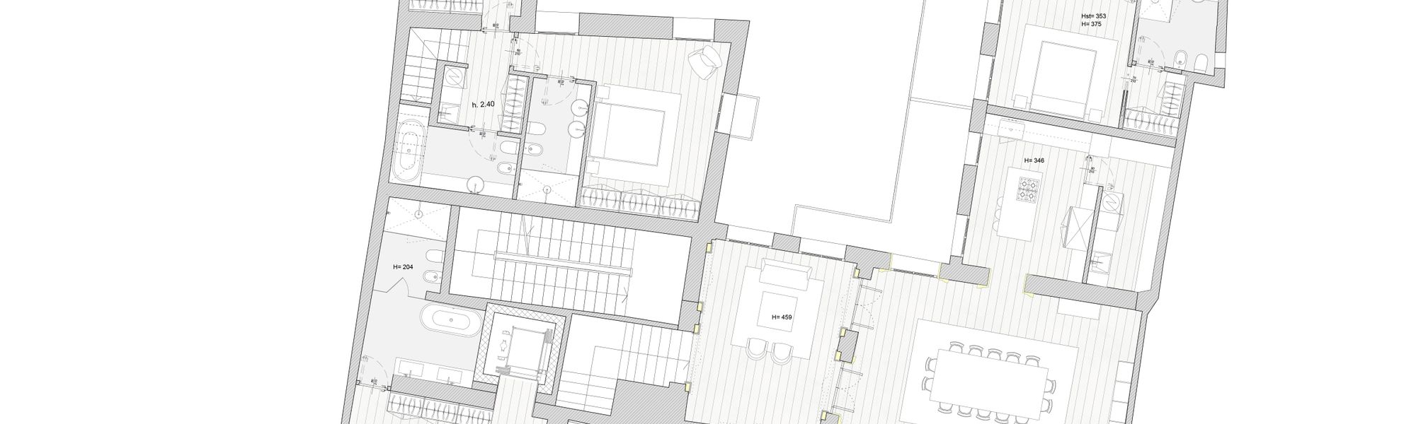
This is a collaboration with ASA Studio Albanese in Vicenza ( that own all the rights), where I worked for many years. We entirely re-design the interiors of one of the most beautiful historical buildings in the city centre in order to obtain a multi-functional complex, with offices on the ground floor and seven private residences. These are the plans for a first proposal in 2014. The project has since then been modified according to the buyers needs and is about to be built.