
47034 Forlimpopoli, Province of Forlì-Cesena, Italy
Commerciale - Retail
Jose Perfetto
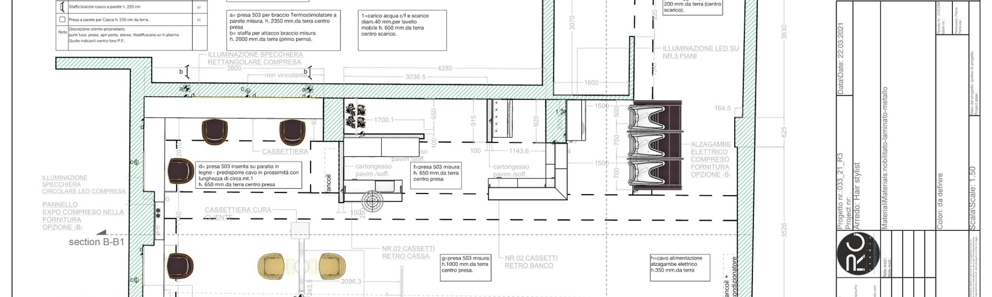
Progettazione e realizzazione degli interni e degli eredi arredi di un nuovo negozio di a parrucchiera unisex. Progettazione dei cartongessi e controsoffitti, impianto di illuminotecnica.