
Atlanta, GA, USA
Residenziale - Casa
Jose Perfetto
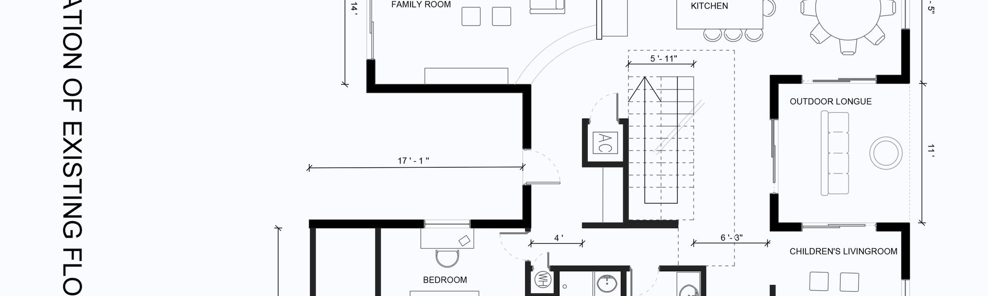
The client needed to expand his house by adding another floor, so he asked for the design of the new floor and a remodeling on the existing floor to locate the stairs and add a laundry room. The design was based on a floor plan made by the customer.