
Milan, Metropolitan City of Milan, Italy
Residenziale - Appartamento
Carlotta Minnielli
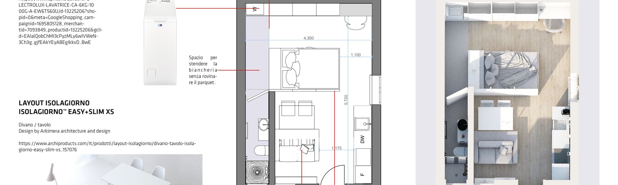
Mini appartamento caratterizzato da un unico ambiente diviso in due parti da un pannello che presenta una triplice funzione: separare la zona giorno dalla zona notte; fungere da libreria e spazio addizionale per riporre oggetti personali; nella sua parte terminale fungere da porta di accesso al bagno. un cambio di pavimentazione definisce una seconda zona, la fascia dei servizi, composta da bagno e angolo lavanderia. Dal parquet al gres porcellanato, tale cambio ha sia funzione distributiva che funzionale.