Chemnitz, Germany
architect
Work experiences
Architect
Tea.ve
Dec 2017 / May 2021
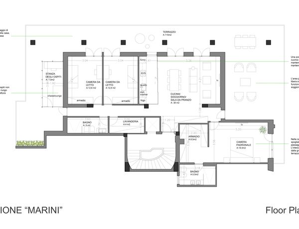
www.sitiotea.com Architectural projects. Design, Remodeling and Renovation.
Education
Arquitecto
Universidad Central de Venezuela
Pregrado
Skills