
00040 Rocca di Papa, Metropolitan City of Rome, Italy
Residential - Living/Sleeping Area
Briefing
Amo la luce, gli ambienti acccoglienti e caldi. La casa è immersa in un giardino. Ambiente al piano terra. Stile moderno ma non freddo. Note: PLEASE FILL FREE TO USE THE WHOLE AREA TO ACCOMMODATE THE 3 AMBIENTS: DINING, LIVING AND KITCHEN.
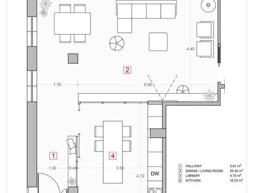
Please check the file Update 12.12.2020.pdf i just added: (ITA) Vorrei recuperare lo spazio di questa nicchia (1) (attualmente è un guardaroba) per rendere più regolare il perimetro della ex cucina e, se serve, spostare la porta scorrevole (2) per creare una zona ingresso di servizio (3) oppure utilizzando la nuova apertura per dare luce alla zona (3) che attualmente è buia.
(ENG) I would like to recover the space of this niche (1) (currently it is a wardrobe) to make the perimeter of the former kitchen more regular and, if necessary, move the sliding door (2) to create a service entrance area (3) or by using the new opening to give light to the area (3) which is currently dark. Or the door (2) can remain where it is now and, instead of the current wardrobe wall maybe a transparent or translucent solution might still give light to the corridor.
Note 15.12.2020: (ITA) Quella che attualmente è la finestra della cucina potrebbe diventare sia una vetrata da terra al soffitto che anche il nuovo ingresso all'appartamento. (ENG) What is currently the kitchen window could become both a floor-to-ceiling window and the new entrance to the apartment.
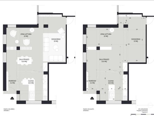
Nota 15.12.2020: (ITA) le altezze del soffitto sono: zona pranzo attuale 2.33 il controsoffitto si può demolire fino alla trave . cemento armato; zona living attuale mt 2.86, zona tra ingresso attuale e vetrata cielo terra attuale mt. 2,56. In cucina attuale 2,56 poi c'è una trave a metà soffitto poi ancora 2,56 - (ENG) the ceiling heights are: current dining area 2.33 the false ceiling can be demolished up to the reinforced concrete beam; current living area 2.86 m, area between the current entrance and the current ground floor window m. 2.56. In the current kitchen 2.56 then there is a mid-ceiling beam then again 2.56
Nota 17.12.2020: I have added a new pdf showing beans and columns