
00046 Grottaferrata, Metropolitan City of Rome Capital, Italy
Residential - House
Briefing
ENG:
Hi,
I'm Filippo I need your help for the interior design of my cottage in the countryside and its garden.
I will use this property as a "buen retiro" for weekends (both winter and summer) while living in Rome. I do not exclude a priori that in the next few years it could also become my main residence.
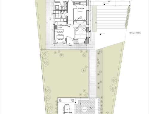
The floor plan already shows the distribution of the interior which cannot be changed, therefore the project must focus on the interior design and on the layout and design of the garden.
The floors of the dining area and the one with sofa and television and of the corridor will all be in 'Cotto leccese' while the 2 bedrooms in parquet but with a frame, all around that runs along the walls, in terracotta from Lecce in order to recall the floor of the rest of the house, about thirty cm wide.
The 'en suite' bathroom will have a 'walk in' shower along the entire wall of the window and will be a 'Turkish bath' shower. I let the designers' imagination run wild on the materials, but they must be of excellent quality
The second bathroom will also have a 'walk in' shower positioned in the same way as the first but will not have a Turkish bath, it will only be a shower.
I like the use of some elegant wood on some walls in the dining and living area and in my bedroom, in the 'wood up' genre; not necessarily that but similar to that, as an idea.
I would also appreciate suggestions on the type of kitchen, it being understood that the positioning must be that of the plan attached.
The wall of the living room will have the television and, below, a thermo fireplace and laterally some shelves for objects and books. A space for storing cut wood must be designed near the thermo fireplace. The television area will be divided from the dining-kitchen area by a bookcase open on 2 sides which starts from the wall of the entrance door and extends for 3.3 or 3.5 meters, to screen the view between the two areas.
The garden will have to have a structure to cover 3 machines on which the photovoltaic will be placed, all behind the wall on which the headboard of my bed pointing towards the south will rest.
In the area in front of the entrance to the house there must be:
1) a hydromassage tub with shower and a stone path that leads to the entrance door of the villa, a gazebo to cover the dining table which must hold 12/16 people and there must be a barbecue nearby. There will also be a small wooden house / warehouse
Furthermore, suggestions on the color of the external walls would be useful (we have specially added the color table)
SPA:
Hola a todos,
Soy Filippo y necesito su ayuda para el diseño de interiores de mi casa de campo y su jardín. Usaré esta propiedad como mi "retiro" de fin de semana (tanto en invierno como en verano) mientras vivo en Roma. No descarto la posibilidad de que en los próximos años pueda convertirse en mi residencia principal.
El plano ya muestra la distribución de los interiores que no se puede modificar, por lo tanto, el proyecto debe centrarse en el diseño de interiores y en la disposición y diseño del jardín.
Los pisos de la zona del comedor, la sala de estar con sofá y televisión, y el pasillo serán de 'Cotto leccese', mientras que los 2 dormitorios tendrán parquet con un borde alrededor de las paredes en 'Cotto leccese', para hacer eco del piso del resto de la casa, con un ancho de unos treinta centímetros.
El baño principal tendrá una ducha "walk-in" a lo largo de la pared de la ventana y será una ducha "baño turco". Dejo volar la imaginación de los diseñadores en cuanto a los materiales, pero deben ser de excelente calidad.
El segundo baño también tendrá una ducha "walk-in" ubicada de la misma manera que la primera, pero no tendrá baño turco, solo será una ducha.
Me gusta la idea de utilizar un poco de madera elegante en algunas paredes de la zona del comedor y la sala de estar, así como en mi dormitorio, algo similar a 'wood up'; no necesariamente ese diseño exacto, pero algo parecido.
También agradecería sugerencias sobre el tipo de cocina, teniendo en cuenta que la ubicación debe ser la misma que la indicada en el plano adjunto.
La pared de la sala de estar tendrá el televisor y, debajo, una estufa de leña, y a los lados estanterías para objetos y libros. Cerca de la estufa de leña se debe considerar un espacio para almacenar la leña cortada. La zona del televisor se separará de la zona de comedor-cocina con una librería abierta por ambos lados, que comienza desde la pared de la puerta de entrada y se extiende por 3,3 o 3,5 metros para ocultar la vista entre las dos zonas.
El jardín debe tener una estructura para cubrir 3 automóviles, donde se colocará el panel solar, todo detrás de la pared en la que se apoya la cabecera de mi cama, que mira hacia el sur.
En la zona frente a la entrada de la casa, debe haber:
- un jacuzzi con ducha y un camino de piedra que conduce hasta la puerta de entrada de la casa, un gazebo que cubra la mesa del comedor, con capacidad para 12/16 personas, y cerca de allí debe haber una barbacoa. También habrá una pequeña caseta o almacén de madera.
Además, agradecería sugerencias sobre el color de las paredes exteriores (hemos adjuntado una tabla de colores específicamente para esto).
ITA:
Salve a tutti,
Sono Filippo ho bisogno del vostro aiuto per la progettazione dell'interior design del mio villino in campagna e del suo giardino.
Userò quest'immobile come "buen retiro" per i fine settimana (sia invernali che estivi) vivendo a Roma. Non escludo a priori che nei prossimi anni possa poi diventare anche la mia abitazione principale.
La planimetria mostra già la distribuzione degli interni che non può essere modificata, dunque il progetto deve concentrarsi sull'interior design e sull'allestimento e la progettazione del giardino.
I pavimenti della zona pranzo e di quella con divano e televisore e del corridoio saranno tutti in 'Cotto leccese' mentre le 2 camere da letto in parquet ma con una cornice , tutt'intorno che costeggia le pareti, in cotto leccese in modo da richiamare il pavimento del resto della casa, della larghezza di una trentina di cm.
Il bagno 'en suite' avra' una doccia 'walk in' lungo tutta la parete della finestra e sarà una doccia 'bagno turco'. Sui materiali lascio sbizzarrire la fantasia dei progettisti ma dovranno essere di ottimo livello
Il secondo bagno avrà anch'esso una doccia con 'walk in' posizionata allo stesso modo della prima ma non avrà il bagno turco, sarà solo doccia.
Gradisco l'utilizzo di un pò di legno elegante in qualche parete della zona pranzo e soggiorno e nella mia camera da letto, sul genere 'wood up'; non necessariamente quello ma simile a quello, come idea.
Gradirei anche suggerimenti sul tipo di cucina, fermo restando che il posizionamento deve essere quello della planimetria in allegato.
La parete del soggiorno avrà il televisore e, sotto, un termo camino e lateralmente degli scaffali per oggetti e libri. Vicino al termo camino dovrà essere pensato uno spazio per lo stoccaggio della legna tagliata. La zona televisore andrà divisa dalla zona pranzo-cucina da una libreria aperta sui 2 lati che parte dalla parete della porta di ingresso e si estende per 3,3 o 3,5 metri, per schermare la vista tra le due zone.
Il giardino dovrà avere una struttura per coprire 3 macchine su cui verrà posizionato il fotovoltaico, il tutto dietro la parete su cui poggerà la testata del mio letto che punta verso sud.
Nella zona di fronte all'ingresso della villetta devono esserci:
1) una vasca idromassaggio con doccia e con un vialetto in pietra che porta fino alla porta di ingresso della villetta, un gazebo di copertura del tavolo da pranzo il quale dovrà contenere 12/16 persone e li vicino dovrà esserci il barbecue. Ci sarà anche una piccola casetta / magazzino in legno
Inoltre sarebbero utili dei suggerimenti sul colore delle mura esterne (abbiamo aggiunto appositamente la tavola colori)