
Milan, Metropolitan City of Milan, Italy
Residential - Apartment
Briefing
I like linear style that respects the contest where the apartment is located. The building is from the beginning of 1900 and it has been declared of historical interest. Therefore minor changes are allowed without a formal request that will take time to be accepted.
The apartment will be occupied by my wife and me, no kids. I would like a big area where to chill out. Thank you
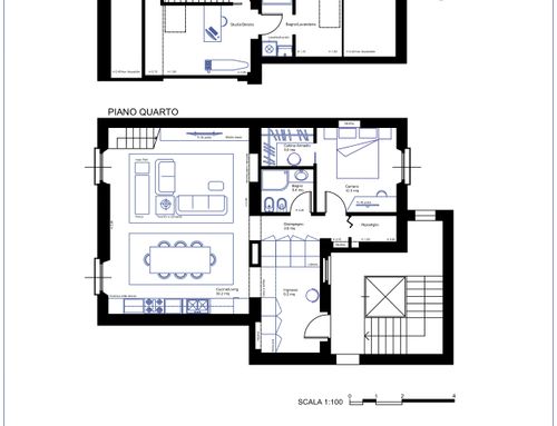
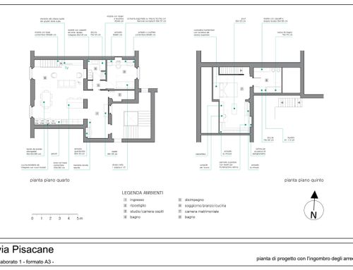
the apartment is on two floors 4th and 5th. the 5th is below the roof therefore the space needs to be well thought.
The restructuring budget is around 100k€ considering as well the tailored furniture to be made for the 5th floor.
ITA
Mi piace lo stile lineare e vorrei che lo stile scelto per l'appartamento fosse in linea con il contesto in cui si trova. Il palazzo in cui è situato è una struttura degli inizi del '900 ed è stata catalogata come edificio di interesse storico. Per questo motivo preferirei che non faceste grandi cambiamenti ma solo piccoli cambiamenti nella struttura in modo che io possa poi andare ad eseguirli senza inoltrare una richiesta formale al municipio che ci metterebbe sicuramente molto tempo prima di essere accettata.
Nell'appartamento vivremo io e mia moglie, non abbiamo figli. Ci piacerebbe avere una spaziosa area giorno/relax dove rilassarci e pasare il tempo.
Il budget per la ristruturazione e' intorno a 100.000€ considerando eventuali armadi su misura da realizzare per gli spazi al 5º piano.
Grazie
Da notare che all'ingresso il mobile bianco e' utilizzato come parete divisoria. Non esiste una parete reale, per cui e' eliminabile nel caso in cui si voglia congiungere la zono ingresso con il vano piu' piccolo al piano 4º.