
Milano, MI, Italia
Residential - Apartment
Gentile Cliente,
in base alle Sue richieste, ho sviluppato una proposta per il Suo progetto ispirata a uno stile classico contemporaneo, caratterizzato da linee pulite, toni caldi e dal mantenimento del bianco alle pareti dell’abitazione.
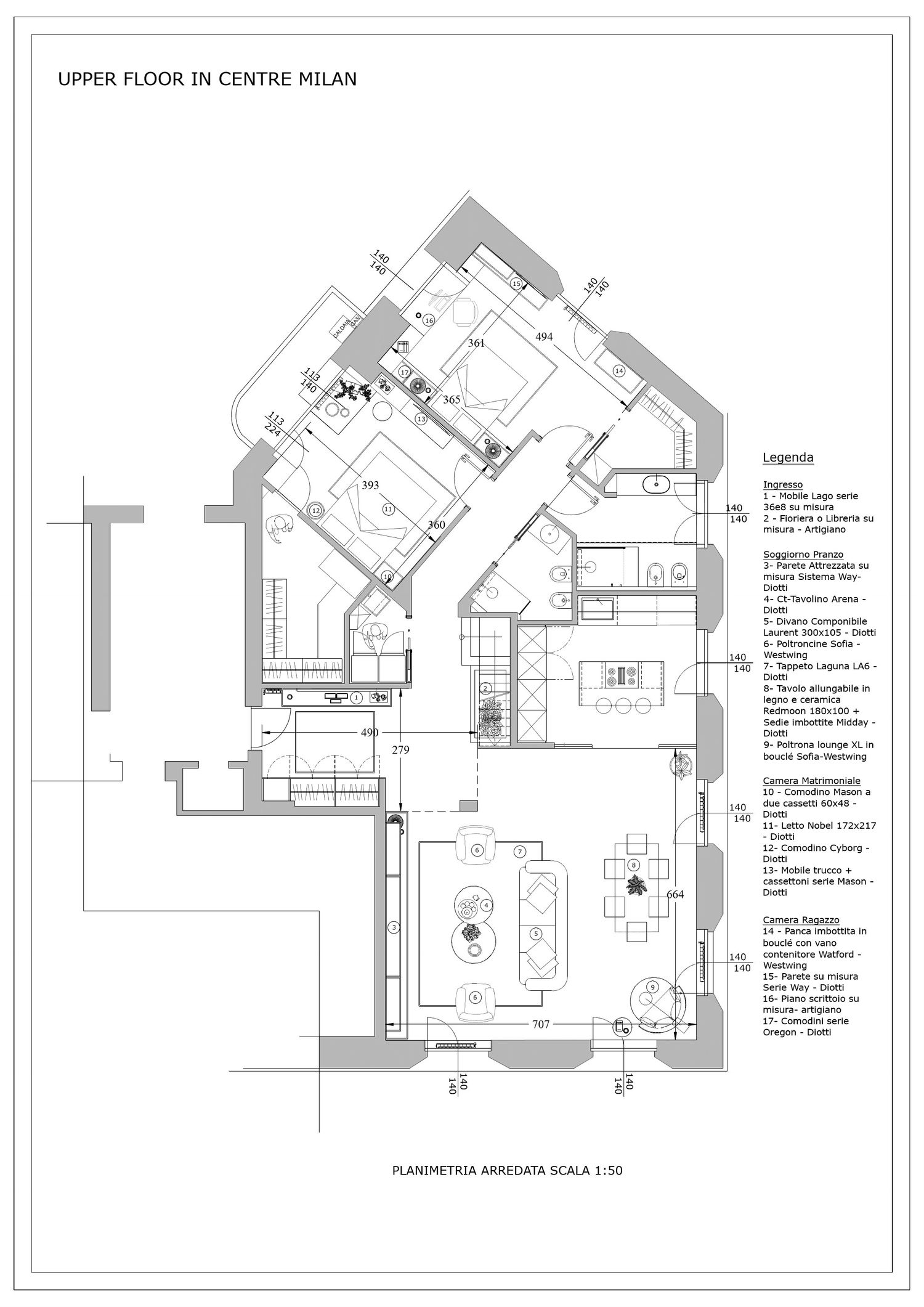
Ingresso
Per l’ingresso ho previsto un mobile della linea Lago, che si abbina armoniosamente allo specchio già presente.
Per il sottoscala ho elaborato due possibili soluzioni:
• la prima prevede una composizione di piante, da realizzare tenendo conto dell’illuminazione naturale e artificiale;
• la seconda, più tradizionale, consiste in una libreria con pannelli sagomati fissi e scorrevoli, da realizzare su misura da un artigiano.
Zona living
L’area giorno si articola in una zona conversazione e TV, con un divano color bianco panna dalle dimensioni generose e due poltroncine grigio chiaro. Nell’angolo tra divano e poltrona è prevista la lampada ad arco di Flos.
La parete attrezzata, realizzata su misura, comprende tre moduli affiancati, di cui quello centrale ospita la TV a scomparsa grazie a due pannelli scorrevoli che, in apertura, si sovrappongono alle librerie laterali. La base include un contenitore a ribalta.
Zona pranzo
Per la sala da pranzo ho previsto un tavolo allungabile, la cui struttura riprende il legno della parete attrezzata. Nell’angolo è collocata una poltrona extralarge dedicata alla lettura e al relax.
Non ho mantenuto il Suo tavolo attuale poiché, una volta esteso, risulta troppo ingombrante per lo spazio disponibile.
Cucina
La cucina è separata dalla zona living da una parete vetrata scorrevole. Potrà scegliere tra diversi marchi, come Garofoli, Rimadesio o Ferrero Legno; non ho indicato un produttore specifico per lasciarLe piena libertà di scelta.
Le pareti sono valorizzate da boiserie, mentre i quadri astratti selezionati provengono dallo studio Joise e sono disponibili su Etsy.
Camera matrimoniale
La camera padronale è caratterizzata da una parete del letto con boiserie e pannelli doghettati.
Sulla parete frontale è previsto un mobile con consolle trucco e cassetti.
Il quadro scelto, Mary del brand Styler, è disponibile sul sito Bonami.
Camera del ragazzo
La stanza del ragazzo presenta una testata del letto composta da due pannelli che delimitano la zona notte e una carta da parati effetto tessuto, sulla quale sono collocate mensole a U.
Una composizione ad elle integra la lunga scrivania con una libreria e un mobile sospeso.
I quadri proposti per questa stanza sono acquistabili sui principali siti di arredamento e decorazione.
Sperando di averLe fornito spunti e idee interessanti, porgo
cordiali saluti.