
09030 Elmas CA, Italy
Residential - Apartment
Briefing
Hello everyone, we're a young couple and our apartment is still under construction and for this, we are relying on this vast group of architects that we hope can help us. In principle, it's possible to change the arrangement of all the internal walls but not the external faces and windows.
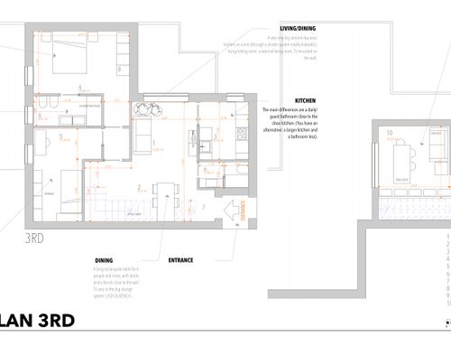
We would like your attention to be directed above all to the living area. The living area must be as comfortable as possible and we would like to be able to close at least part of the kitchen to "hide" any mess if needed.
We thought that with the use of removable walls and/or use of plasterboard walls one could find a right compromise. One of the two downstairs rooms can become a single room to recover space. We love wall niches (closed or open), we like the idea that they take advantage of otherwise unused spaces.
We believe that it's also possible to move the hydraulic system partly with some doubts about the "main" discharges.
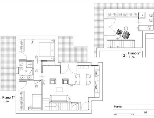
The bathrooms, if possible, must be complete with a double sink and a big shower in the one on the lower floor while the one on the upper floor should not be too "compressed" also because it is our intention to have the space for a washer and dryer.
In the upstairs room we would like to put a hybrid study / relaxation room as close as possible to the living area downstairs (it would be awesome if we could use it as a guest room if needed) and to the large adjoining terrace that we would like to make the most of summer with our friends and relatives.
We have already created an alternative plan (which better reflects our desires) but we're ready to receive any kind of suggestion that can even upset the whole apartment.
------ ITALIANO:
Ciao a tutti, siamo una giovane coppia e il nostro appartamento è ancora in costruzione e per questo ci stiamo affidando a questo vasto gruppo di architetti che spero ci possano aiutare. In linea di massima è possibile cambiare la disposizione di tutti i muri interni ma non gli affacci esterni e le finestre.
Vorremmo che la vostra attenzione si rivolgesse soprattutto alla zona giorno. La zona giorno dovrebbe essere il più confortevole possibile e ci piacerebbe poter chiudere almeno in parte la cucina per "nascondere" l'eventuale disordine se servisse.
Abbiamo pensato che con l'uso di pareti amovibili e/o utilizzo di pareti in cartongesso si potrebbe trovare un giusto compromesso. Una delle due camere al piano inferiore può diventare una singola per recuperare spazio. Adoriamo le nicchie a parete (chiuse o aperte), ci piace l'idea che sfruttino degli spazi altrimenti inutilizzati.
Crediamo che sia possibile spostare in parte anche l'impianto idraulico con qualche dubbio sugli scarichi "principali".
I bagni, se possibile, devono essere completi con un doppio lavabo e una grande doccia in quello al piano inferiore mentre quello al piano superiore non dovrebbe essere troppo "compresso" anche perchè è nostra intenzione avere lo spazio anche per una lavatrice e asciugatrice.
Nella stanza al piano superiore vorremmo mettere una stanza ibrida studio/relax quanto più possibile collegata alla zona giorno al piano inferiore (sarebbe il massimo poterla utilizzare come stanza degli ospiti nel caso ci sia bisogno) e alla grande terrazza attigua che vorremo sfruttare al meglio in estate con i nostri amici e parenti.
Abbiamo realizzato già una piantina alternativa (che ricalca meglio i nostri desideri) ma sono pronto a ricevere qualsiasi tipo di suggerimento che possa anche stravolgere tutto l'appartamento.