
Arsiero, VI, Italia
Residential - Apartment
Briefing
🇬🇧 ENGLISH VERSION
Subject: Interior Design Contest – IKEA-only Project for a 57 sqm Apartment in Italy
I’m looking for a complete interior design project for my 57 sqm apartment located in the province of Vicenza (Northern Italy, hilly area), using exclusively IKEA furniture and accessories.
Some elements are already in place: freshly painted walls, a nearly completed kitchen, wardrobe and dressers in the bedroom, a bathroom almost finished, and two IKEA wall cabinets that must be reused (highlighted in green on the floorplan). Lighting is entirely missing and should be fully included using IKEA-only solutions.
I’m aiming for a cohesive, stylish design in the spirit of a refined IKEA showroom — practical yet visually harmonious.
🔍 Main Objectives:
• Visually unify the apartment (currently disconnected spaces)
• Keep the budget low by using IKEA furniture only
• Maximize comfort, functionality, and aesthetics
• Reflect my personal taste: Japandi / warm natural style / forest green and light woods
📌 Areas to be Designed:
🟢 Kitchen + Living Room:
• Kitchen (matte green, 3m) is installed — I will provide a sketch with final appliance layout
• Needs:
• IKEA kitchen island with worktop space (I also use the kitchen for private cooking classes)
• IKEA dining table + chairs
• Sofa bed (IKEA or similar affordable option) for hosting family/guests
• Warm, consistent lighting (pendants, LED strips, floor/table lamps)
• Curtains, rugs, and wall decor (IKEA)
• Visual separation between kitchen and entrance (possibly wooden slatted “see-through” panels like McDonald’s style)
• Decorative touch for the narrow balcony (30–40 cm deep, no seating possible)
🟢 Entrance:
• Currently empty — I want it to feel welcoming, with IKEA elements and a visual connection to the living area (mirror, coat rack, lighting, small decor)
🟢 Bedroom:
• Already contains wardrobe, dresser, and two nightstands
• Needs:
• Elements that complete the IKEA style
• Curtains, rug(s), lamps, and wall art
🟢 Bathroom:
• Sink, cabinet, and toilet installed — tiles and mirror are in place
• Needs:
• IKEA towel rack, shelves, accessories in warm natural style
• Roll-up curtain to hide boiler and stacked washing machine
🖼️ Decor & Styling:
• I will provide photos of existing artworks
• I would love ideas for: art placement, real/fake plants, baskets, rugs, ambient lighting
📷 Available Files:
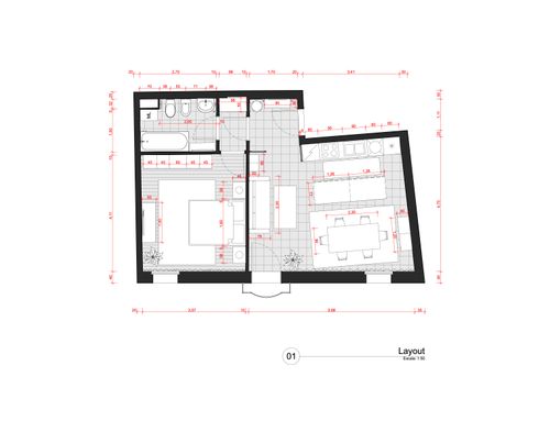
• Accurate floorplan
• Photos of the apartment
• Moodboard / inspirational images
• Photos of furniture and existing artworks
📦 What I’d Love to Receive (if possible):
• A furnished floorplan
• IKEA shopping list (name, code, quantity)
• Realistic 3D renderings are very welcome but not required
• Any layout suggestions for better visual flow
🎨 Preferred Style:
• Warm Japandi / Organic Modern
• Forest green, warm white, light wood, beige, earthy tones
• Natural fabrics, rattan, wood, matte ceramics
• Atmosphere: cozy, relaxing, tidy
💰 Budget Constraints:
IKEA, Leroy Merlin, and similar stores available in Vicenza area only. No custom furniture or suppliers.
That said, I’m aiming for a sophisticated result — like the best IKEA showroom displays.
🔔 Note: I purchased the Basic Package and I’m not expecting anything beyond what’s included. However, I deeply appreciate those who decide to include a furnished plan or a simple 3D render to help visualize the concept — this is absolutely optional. Thank you again!
⸻
🇮🇹 VERSIONE ITALIANA
Oggetto: Concorso di Interior Design – Progetto completo solo con arredi IKEA (57 mq – Vicenza)
Cerco un progetto completo di interior design per il mio appartamento da 57 mq in provincia di Vicenza (Nord Italia, zona collinare), basato esclusivamente su mobili e accessori IKEA.
Alcuni elementi sono già presenti: pareti appena tinteggiate, cucina quasi completata, armadio e cassettiera in camera da letto, bagno in fase finale e due pensili IKEA da riutilizzare obbligatoriamente (cerchiati in verde nella planimetria).
Manca totalmente l’illuminazione, che va progettata interamente con soluzioni IKEA.
Il mio obiettivo è ottenere un risultato coerente, accogliente e raffinato — nello stile di una bella esposizione IKEA.
🔍 Obiettivi principali:
• Uniformare visivamente gli spazi (ora scollegati tra loro)
• Mantenere il budget contenuto usando solo IKEA
• Ottenere una casa accogliente, funzionale e ben curata
• Integrare il mio gusto personale: Japandi caldo / naturale / verde bosco e legni chiari
📌 Ambienti da progettare:
🟢 Cucina + zona giorno:
• La cucina è già installata (verde opaco, 3 metri – fornirò uno schema con layout finale)
• Da completare con:
• Isola IKEA con piano di lavoro (uso anche per corsi di cucina privati)
• Tavolo + sedie IKEA
• Divano letto (IKEA o alternativa economica ben fatta)
• Illuminazione calda e coerente (pendenti, LED, lampade)
• Tende, tappeti, decorazioni IKEA
• Separazione visiva tra cucina e ingresso (pannelli grigliati in legno, stile McDonald)
• Dettaglio decorativo per il balconcino (molto stretto – circa 30/40 cm di profondità)
🟢 Ingresso:
• Ora vuoto — voglio che sia accogliente, con arredi IKEA e continuità visiva con la zona giorno (specchio, appendiabiti, luci calde, decorazioni)
🟢 Camera da letto:
• Sono già presenti armadio, cassettiera e comodini
• Va completata con:
• Elementi IKEA in armonia con il resto della casa
• Tende, tappeti, lampade, arte murale
🟢 Bagno:
• Lavabo, mobile e WC sono installati, piastrelle e specchio già presenti
• Va completato con:
• Porta asciugamani, mensole e accessori in stile caldo/naturale
• Tenda a rullo per nascondere la caldaia e la lavatrice (impilate)
🖼️ Decorazioni & Stile:
• Fornirò foto dei quadri esistenti
• Gradite idee per: disposizione quadri, piante (vere o finte), cesti, tappeti, luci d’atmosfera
📷 Materiali disponibili:
• Planimetria con misure esatte
• Foto dell’appartamento
• Moodboard ispirazionale
• Foto mobili e quadri già presenti
📦 Cosa mi piacerebbe ricevere (se possibile):
• Planimetria arredata
• Lista IKEA completa (nome, codice, quantità)
• Render 3D realistici (molto graditi, ma non obbligatori)
• Suggerimenti sulla disposizione per armonia e funzionalità
🎨 Stile richiesto:
• Japandi caldo / Organic Modern
• Colori: verde bosco, bianco caldo, legni chiari, beige, toni naturali
• Materiali: legno, tessuti naturali, rattan, ceramica opaca
• Atmosfera: ordinata, rilassante, accogliente
💰 Budget:
Solo IKEA, Leroy Merlin o negozi simili in zona Vicenza. No mobili su misura o fornitori esterni.
Voglio comunque un risultato curato e intelligente — come le migliori esposizioni IKEA.
🔔 Nota: Ho acquistato il pacchetto base e non chiedo nulla in più rispetto a quanto previsto.
Apprezzerò davvero molto chi vorrà aggiungere una planimetria arredata o un piccolo render 3D per rendere più visivo il progetto — ma non è assolutamente obbligatorio. Grazie di cuore!