
Padova, PD, Italia
Residential - Apartment
Briefing
🇮🇹 ITALIANO 🇮🇹
AGGIORNAMENTO IMPORTANTE (27/08/2025):
Impianto di Riscaldamento: I termosifoni attuali sono condominiali e andranno sostituiti. Prevedere termoarredi di design, alti e di grandi dimensioni. Se presenti sotto le finestre, andranno spostati in una parete vicina. Per il bagno, prevedere uno scaldasalviette con finitura dorata.
Impianto di Raffrescamento: Non prevedere split a parete. Il progetto dovrà tenere conto dell'installazione di un sistema di aria condizionata canalizzata.
1. Link di Ispirazione
Video Moodboard: https://drive.google.com/drive/folders/1FjHrZC24y3fbGwjuuWYMeiLSc_dAkcdb?usp=sharing
Tour Virtuale dell'Immobile (Matterport): https://my.matterport.com/show/?m=QfNyuNKTdHT&back=1
(Nota: Attivando la "Modalità Misura" dalle impostazioni in basso a sinistra nel tour, è possibile visualizzare le misure dello stato attuale).
L'unica stanza non visibile nel tour è il ripostiglio, che andrà comunque rimosso.
2. Visione del Progetto
Abbiamo acquistato un appartamento da ristrutturare completamente. Il nostro sogno è trasformarlo in uno spazio unico, che non sia solo funzionale ma che regali un'emozione ogni volta che si varca la soglia. Cerchiamo un progetto audace e di grande impatto estetico, un "effetto wow" che combini lusso, comfort e un design contemporaneo e caldo. Non poniamo limiti di budget su materiali, finiture e arredi di design per raggiungere il risultato desiderato.
3. Descrizione dell'Immobile (Stato di Fatto)
Tipologia: Appartamento residenziale
Località: Padova
Superficie: circa 150mq
Altezza interna: 2.80 metri
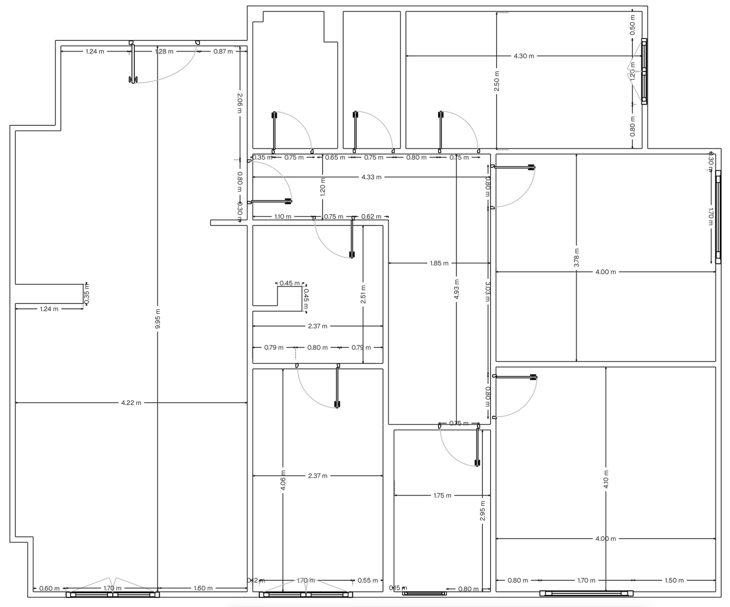
Layout attuale: L'appartamento è attualmente suddiviso come da planimetria allegata ("originale.png”). Si compone di un ingresso, ripostiglio, corridoi, cucina, soggiorno, N. 3 camere e N. 2 bagni.
Allegati: Planimetria dello stato di fatto, planimetria con prime ipotesi di demolizione con rimozione ripostiglio e realizzazione openspace, video di ispirazione stilistica.
4. Obiettivo Chiave: Massima Libertà Creativa per un "Effetto Wow"
L'obiettivo non è semplicemente ridistribuire gli spazi, ma creare la migliore esperienza abitativa possibile.
Carta Bianca sulla Distribuzione Interna: Abbiamo allegato una nostra ipotesi di modifica dei tramezzi ("modificato.jpg") per mostrare che siamo aperti a cambiamenti radicali. Tuttavia, questa è solo una suggestione e non un vincolo. Il progettista ha la più totale libertà di:
Ignorare completamente la nostra proposta.
Proporre una distribuzione degli spazi completamente nuova e diversa.
Rimuovere, spostare o aggiungere tramezzi (non portanti) nel modo che ritiene più efficace per valorizzare l'immobile e raggiungere gli obiettivi funzionali ed estetici.
La proposta migliore sarà quella che saprà reinterpretare lo spazio in modo intelligente e sorprendente.
5. Stile e Moodboard di Riferimento (Versione aggiornata)
Lo stile che amiamo è visibile nei video allegati, che fungono da moodboard visivo. Le parole chiave per descrivere l'atmosfera che ricerchiamo sono:
Lusso Contemporaneo e Caldo: Ambienti eleganti, puliti, ma estremamente accoglienti. La scelta delle finiture e degli arredi dovrà comunicare pregio e attenzione al dettaglio.
Illuminazione Architetturale: L'illuminazione è un elemento fondamentale del progetto. Prevediamo tagli di luce, gole luminose, illuminazione a LED integrata negli arredi ed eventuali controsoffitti per creare atmosfera e valorizzare i volumi.
Spazi Fluidi e Luce Naturale: Layout aperti, soluzioni a scomparsa e arredi su misura sono fondamentali. Apprezziamo molto l'idea di usare porte scorrevoli a vetro opaco per portare luce naturale in corridoi o zone cieche; il progettista ha la libertà di applicare questa soluzione dove lo ritiene più efficace (ad esempio, collegando una camera o un bagno finestrato a un corridoio).
Palette Colori e Materiali: I video mostrano una preferenza per toni neutri e caldi ispirati allo stile Japandi (es. pietra). Per la cucina, si desidera un utilizzo dell'effetto travertino.
Finiture: In caso di utilizzo di piastrelle, optare per formati molto grandi con fughe ridotte al minimo.
Dettagli Specifici:
Cucina: Prevedere obbligatoriamente un'isola, sulla quale sarebbe ideale posizionare il piano a induzione. Non inserire una cappa a vista, in quanto il piano cottura avrà un sistema di aspirazione integrato.
Bagno e Benessere: Il progetto dovrà includere sia una vasca freestanding che una doccia walk-in minimal (solo con lastra in vetro, senza porte). La doccia dovrà essere a filo pavimento, quindi senza piatto doccia di alcun tipo, e con la stessa pavimentazione del resto dell'ambiente. La loro collocazione è libera: non devono essere forzatamente nello stesso bagno. La vasca, in particolare, può essere pensata anche come elemento d'arredo in camera da letto (es. in una soluzione en-suite). La rubinetteria sarà a parete con effetto dorato e, nella doccia, con gruppo miscelatore incassato.
Arredi: Prevedere armadi con illuminazione interna senza ante o con ante in vetro. Le sedute, in particolare le sedie, dovranno essere imbottite e rivestite, non in legno "scoperto" (come da ispirazioni video).
6. Elaborati Richiesti per il Concorso
Chiediamo ai partecipanti di presentare i seguenti elaborati per poter valutare la loro proposta:
Planimetria del progetto con la nuova distribuzione degli spazi e layout degli arredi.
Render fotorealistici (è obbligatorio almeno uno per ogni stanza).
Breve relazione descrittiva che illustri le scelte progettuali e il concept alla base della proposta.
🇬🇧 ENGLISH 🇬🇧
IMPORTANT UPDATE (27/08/2025):
Heating System: The current radiators are part of the building's central system and must be replaced. The design should include tall, large design radiators. If currently located under windows, they must be moved to a nearby wall. For the bathroom, a heated towel rail with a gold finish should be planned.
Cooling System: Do not include wall-mounted split units. The project must accommodate the installation of a ducted air conditioning system.
1. Inspiration Links
Video Moodboard: https://drive.google.com/drive/folders/1FjHrZC24y3fbGwjuuWYMeiLSc_dAkcdb?usp=sharing
Virtual Property Tour (Matterport): https://my.matterport.com/show/?m=QfNyuNKTdHT&back=1
(Note: By activating "Measurement Mode" from the settings in the bottom-left of the tour, you can view the dimensions of the current layout).
The only room not visible in the tour is the storage room, which should be removed anyway.
2. Project Vision
We have purchased an apartment that requires a complete renovation. Our dream is to transform it into a unique space that is not only functional but also evokes emotion every time you cross the threshold. We are looking for a bold and high-impact aesthetic project, a "wow effect" that combines luxury, comfort, and a contemporary yet warm design. We have no budget limitations on materials, finishes, and designer furniture to achieve the desired result.
3. Property Description (Current State)
Type: Residential apartment
Location: Padua
Area: approximately 150sqm
Internal height: 2.80 meters
Current layout: The apartment is currently divided as shown in the attached floor plan ("originale.png"). It consists of an entrance, a storage room, corridors, a kitchen, a living room, 3 bedrooms, and 2 bathrooms.
Attachments: Floor plan of the current state, a floor plan with initial demolition hypotheses including the removal of the storage room and creation of an open space, and stylistic inspiration videos.
4. Key Objective: Maximum Creative Freedom for a "Wow Effect"
The goal is not simply to redistribute the spaces, but to create the best possible living experience.
Complete Freedom on Internal Distribution: We have attached our own hypothesis for modifying the partition walls ("modificato.jpg") to show that we are open to radical changes. However, this is just a suggestion and not a constraint. The designer has complete freedom to:
Completely ignore our proposal.
Propose a completely new and different spatial distribution.
Remove, move, or add partition walls (non-load-bearing) in the way they deem most effective to enhance the property and achieve the functional and aesthetic goals.
The best proposal will be the one that can reinterpret the space in an intelligent and surprising way.
5. Reference Style and Moodboard (Updated Version)
The style we love is visible in the attached videos, which serve as a visual moodboard. The keywords to describe the atmosphere we are looking for are:
Contemporary and Warm Luxury: Elegant, clean, but extremely welcoming environments. The choice of finishes and furnishings should communicate quality and attention to detail.
Architectural Lighting: Lighting is a fundamental element of the project. We envision light cuts, light coves, LED lighting integrated into the furniture, and possible false ceilings to create atmosphere and enhance the volumes.
Fluid Spaces and Natural Light: Open layouts, concealed solutions, and custom-made furniture are key. We highly appreciate the idea of using opaque glass sliding doors to bring natural light into hallways or windowless areas; the designer is free to apply this solution wherever they deem it most effective (for instance, connecting a windowed room or bathroom to a hallway).
Color Palette and Materials: The videos show a preference for neutral and warm tones inspired by the Japandi style (e.g., stone). For the kitchen, a travertine effect is desired.
Finishes: If tiles are used, opt for very large formats with minimal grout lines.
Specific Details:
Kitchen: An island is mandatory, which would be the ideal placement for the induction hob. Do not include a visible extractor hood, as the hob will have an integrated downdraft system.
Bathroom and Wellness: The project must include both a freestanding bathtub and a minimal walk-in shower (with only a glass panel, no doors). The shower must be completely flush with the floor, meaning absolutely no shower tray, and use the same flooring as the rest of the room. Their placement is flexible: they do not have to be in the same bathroom. The bathtub, in particular, can also be envisioned as a design feature within a bedroom (e.g., in an en-suite concept). Faucets should be wall-mounted with a gold effect, and the shower mixer must be built into the wall.
Furnishings: Plan for wardrobes with internal lighting either without doors or with glass doors. Seating, especially chairs, must be upholstered, not "bare" wood without upholstery (as per video inspiration).
6. Deliverables Required for the Competition
We ask participants to submit the following deliverables to evaluate their proposal:
Project floor plan with the new spatial distribution and furniture layout.
Photorealistic renderings (at least one per room is mandatory).
A brief descriptive report illustrating the design choices and the concept behind the proposal.
🇪🇸 ESPAÑOL 🇪🇸
ACTUALIZACIÓN IMPORTANTE (27/08/2025):
Sistema de Calefacción: Los radiadores actuales son comunitarios y deben ser reemplazados. Se deben prever radiadores de diseño, altos y de gran tamaño. Si están ubicados debajo de las ventanas, deberán moverse a una pared cercana. Para el baño, se debe prever un toallero calefactor con acabado dorado.
Sistema de Refrigeración: No incluir unidades de aire acondicionado de tipo split de pared. El proyecto debe tener en cuenta la instalación de un sistema de aire acondicionado por conductos.
1. Enlaces de Inspiración
Video Moodboard: https://drive.google.com/drive/folders/1FjHrZC24y3fbGwjuuWYMeiLSc_dAkcdb?usp=sharing
Tour Virtual de la Propiedad (Matterport): https://my.matterport.com/show/?m=QfNyuNKTdHT&back=1
(Nota: Activando el "Modo de Medición" en los ajustes de la parte inferior izquierda del tour, es posible ver las medidas del estado actual).
La única estancia que no es visible en el tour es el trastero, el cual deberá ser eliminado de todos modos.
2. Visión del Proyecto
Hemos comprado un apartamento para renovar por completo. Nuestro sueño es transformarlo en un espacio único, che non solo sea funcional sino que también regale una emoción cada vez que se cruza el umbral. Buscamos un proyecto audaz y de gran impacto estético, un "efecto wow" que combine lujo, confort y un diseño contemporáneo y cálido. No ponemos límites de presupuesto en materiales, acabados y muebles de diseño para alcanzar el resultado deseado.
3. Descripción de la Propiedad (Estado Actual)
Tipo: Apartamento residencial
Ubicación: Padua
Superficie: aproximadamente 150m²
Altura interior: 2.80 metros
Distribución actual: El apartamento está actualmente dividido como se muestra en el plano adjunto ("originale.png"). Consta de una entrada, un trastero, pasillos, una cocina, una sala de estar, 3 dormitorios y 2 baños.
Adjuntos: Plano del estado actual, un plano con las primeras hipótesis de demolición que incluyen la eliminación del trastero y la creación de un espacio abierto, y videos de inspiración estilística.
4. Objetivo Clave: Máxima Libertad Creativa para un "Efecto Wow"
El objetivo no es simplemente redistribuir los espacios, sino crear la mejor experiencia de vida posible.
Total Libertad en la Distribución Interna: Hemos adjuntado nuestra propia hipótesis de modificación de los tabiques ("modificato.jpg") para mostrar que estamos abiertos a cambios radicales. Sin embargo, esto es solo una sugerencia y no una restricción. El diseñador tiene total libertad para:
Ignorar completamente nuestra propuesta.
Proponer una distribución de espacios completamente nueva y diferente.
Eliminar, mover o agregar tabiques (no de carga) de la manera que considere más efectiva para realzar la propiedad y alcanzar los objetivos funcionales y estéticos.
La mejor propuesta será aquella que sepa reinterpretar el espacio de una manera inteligente y sorprendente.
5. Estilo y Moodboard de Referencia (Versión Actualizada)
El estilo que amamos es visible en los videos adjuntos, que sirven como un moodboard visual. Las palabras clave para describir la atmósfera que buscamos son:
Lujo Contemporáneo y Cálido: Ambientes elegantes, limpios, pero extremadamente acogedores. La elección de acabados y mobiliario debe comunicar calidad y atención al detalle.
Iluminación Arquitectónica: La iluminación es un elemento fundamental del proyecto. Prevemos cortes de luz, gargantas de luz, iluminación LED integrada en los muebles y posibles falsos techos para crear atmósfera y realzar los volúmenes.
Espacios Fluidos y Luz Natural: Diseños abiertos, soluciones ocultas y muebles a medida son fundamentales. Apreciamos mucho la idea de usar puertas correderas de cristal opaco para llevar luz natural a pasillos o zonas ciegas; el diseñador tiene la libertad de aplicar esta solución donde lo considere más eficaz (por ejemplo, conectando una habitación o un baño con ventana a un pasillo).
Paleta de Colores y Materiales: Los videos muestran una preferencia por tonos neutros y cálidos inspirados en el estilo Japandi (ej. piedra). Para la cocina, se desea un uso del efecto travertino.
Acabados: En caso de utilizar baldosas, optar por formatos muy grandes con juntas reducidas al mínimo.
Detalles Específicos:
Cocina: Es obligatorio incluir una isla, sobre la cual sería ideal colocar la placa de inducción. No instalar una campana extractora visible, ya que la placa de cocción tendrá un sistema de aspiración integrado.
Baño y Bienestar: El proyecto deberá incluir tanto una bañera exenta como una ducha walk-in minimalista (solo con un panel de cristal, sin puertas). La ducha deberá estar totalmente a ras de suelo, es decir, sin ningún tipo de plato de ducha, y con el mismo pavimento que el resto del espacio. Su ubicación es libre: no tienen que estar forzosamente en el mismo baño. La bañera, en particular, puede ser concebida también como un elemento de diseño dentro de un dormitorio (ej. en una solución en-suite). La grifería será de pared con efecto dorado y, en la ducha, con el monomando empotrado.
Mobiliario: Planificar armarios con iluminación interior, sin puertas o con puertas de cristal. Los asientos, especialmente las sillas, deberán estar tapizados, no de madera "vista" sin tapicería (según la inspiración de los videos).
6. Entregables Requeridos para el Concurso
Pedimos a los participantes que presenten los siguientes entregables para poder evaluar su propuesta:
Plano del proyecto con la nueva distribución de espacios y diseño de mobiliario.
Renders fotorrealistas (es obligatorio al menos uno por cada estancia).
Un breve informe descriptivo que ilustre las elecciones de diseño y el concepto detrás de la propuesta.