Milan, Metropolitan City of Milan, Italy
Residential - Apartment
Briefing
ENG
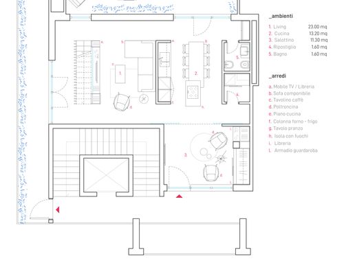
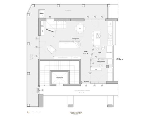
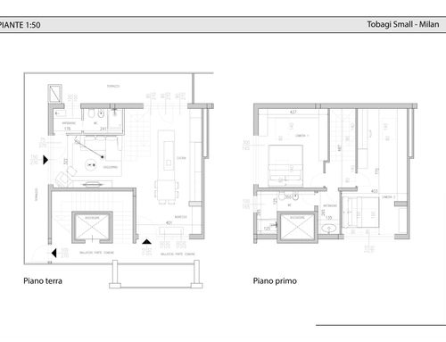
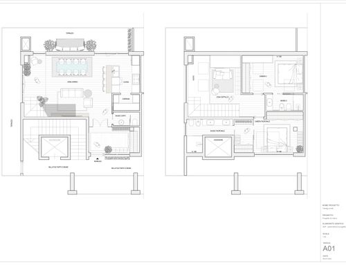
The apartment is located on the top floor of a building of 5 floor and has an attic which is already partially realized with mezzanine,
it is therefore formed on the first level of about 60 m2 + terrace of about 30 m2, while on the upper level of about 70 m2.
The mezzanine must be accessible by an internal staircase to be built and it can be totally or partially closed.
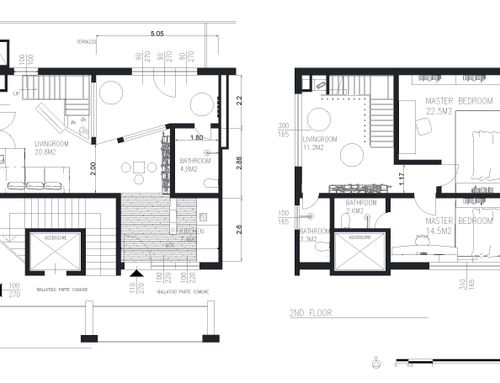
I would like to create in addition to the living room + kitchen , two double-room and two bathroom,all in modern style.
The existent walls at first level can be removed
ITA
L'appartamento si trova all'ultimo piano di un condominio di 5 piani ed ha annesso il sottotetto già' parzialmente soppalcato,
e' quindi formato al primo livello da circa 60 m2 + terrazzo di circa 30 m2, mentre al livello superiore da circa 70 m2.
Il soppalco deve essere raggiungibile da scala interna da realizzare e puo' essere chiuso totalmente o parzialmente.
Mi piacerebbe realizzare oltre alla sala e cucina, due camere matrimoniali e due bagni,il tutto in stile moderno.
I muri interni esistenti al primo livello possono essere rimossi.