🔥 CYBER MONDAY 24H: 60% off all prices on the site! Only until midnight. Use code CYBERMONDAY25 👉🏼
home / browse contests / studio apartment in guatemala
img

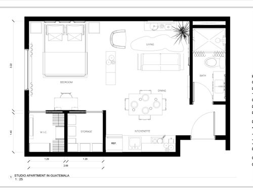
studio apartment in guatemala

Guatemala City, Guatemala

Residential - small-apt

  • 1° Place $ 324
  • 2° Place $ 108
  • 3° Place $ 54
  • 4° Place $ 27
  • 5° Place $ 27