
18100 Imperia, Province of Imperia, Italy
Residential - Apartment
Briefing
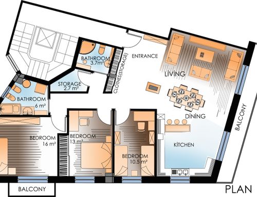
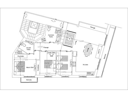
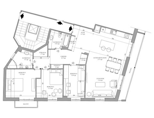
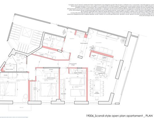
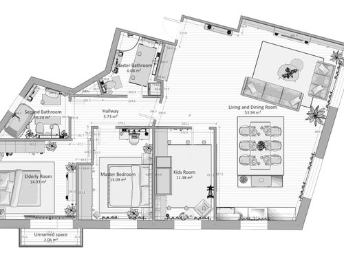
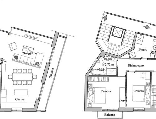
- Our project and style. 3rd floor apartment that needs full renovation (electricity, water, floors, windows, doors, etc). The apartment has plenty of light. We very much like modern minimal Scandi style with wood floor but tiles in the kitchen and bathrooms. Open spaces full of light, where whites meet different wood textures, and transform into a warm cozy environment. Apartment to host toddler, grandmother and couple.
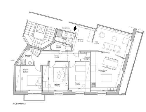
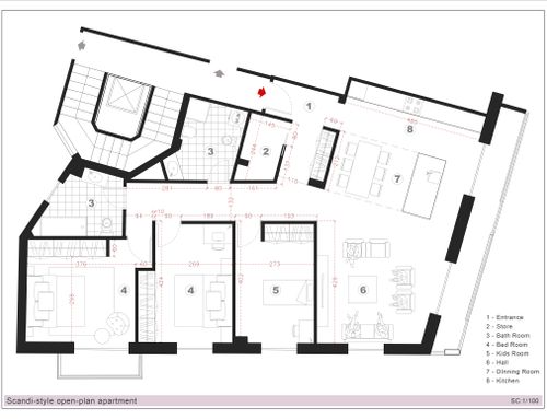
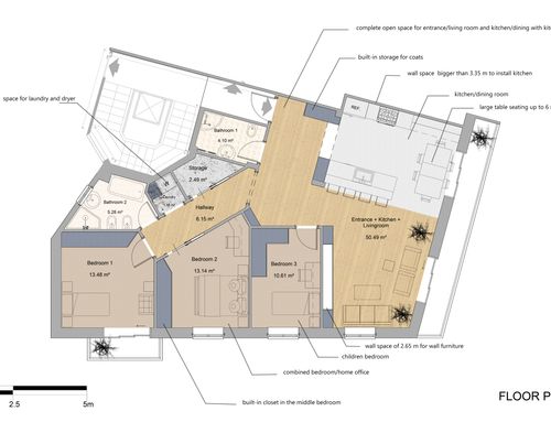
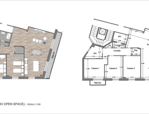
- Living room/kitchen: They should be located where now are the "soggiorno" and the "camera" next to the large balcony. The kitchen/dining room should have space for a large table seating up to 6 (and 10 with extension). We would also like to open up the “ingresso” and merge it with the living room to create a complete open space. We need to keep pillars as indicated on map but walls can be removed. We would like two options. Option 1: a complete open space for entrance/living room and kitchen/dining with kitchen island. Option 2: separate kitchen/dining (still retaining the kitchen island) from the living room/entrance but create as much as possible the feeling of open space (maybe via a large sliding door).
- Bedrooms: We would like three bedrooms. The current "cucina" in the plan we want to turn into the children bedroom. As indicated in the attached plan, we want a built-in closet in the middle bedroom by taking space from the largest bedroom with the small balcony. The middle bedroom is a combined bedroom/home office and needs space for a desk. The bedroom with small balcony would be the largest bedroom (for grandma).
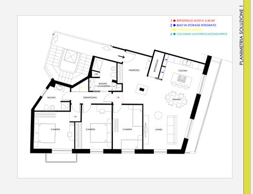
-Storage: We want a storage space for large items of approx 2-3 sqm (currently not on plan). Maybe best position is to either take space from bathroom adjacent to “ingresso” or directly from the "ingresso" but we need your help here. We are also happy to consider two smaller storage space if this is more space-efficient. In addition, where space allows, we would like to carve out built-in storage seamlessly integrated with walls (see pics of examples, sitting corner with built-in storage on the walls or bathroom with built-in storage above the bath).
-Entrance: we need built-in storage for coats
- Bathrooms: We want to use space efficiently and we don't need large bathrooms. One bathroom needs toilet, sink and shower. The second needs toilet, sink, half bath with shower, and bidet. Stacked laundry and dryer units should be placed in one of the two bathrooms.
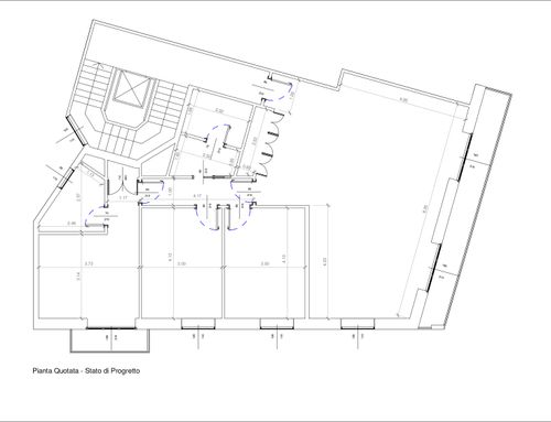
While retaining the current location of the bathrooms, we are happy to move the position of sinks, toilet, etc. Please note that the bathroom with the window has a step but we think it can be removed (to be checked during the demolition phase)
- Requirement for living room. Need wall space of 2.65 m for wall furniture.
- Requirements for kitchen. Need wall space of 3.35 m to install kitchen. Also with space for kitchen island, if possible.
- Lighting: we would like lots of spot lights and a pendant light only for living/dining table, where it would make sense
ITALIANO
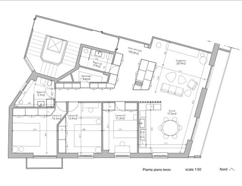
- Appartamento al terzo piano che necessita una ristrutturazione totale (incluso impianto elettrico, tubature, gas, serramenti). L'appartamento e' molto luminioso. Attualmente e' composto da tre camere, salotto, cucina e due bagni. Uno dei due bagni e' senza finestra. Il nostro stile si puo' definire scandi-minimal, atmosfera intima, dove i bianchi e grigi dominano, cosi' come pavimento in legno tranne nei bagni e cucina. L'appartamento ospitera' nonna, bimbi e coppia di adulti.
-salotto/cucina:Vorremmo trasformare il "soggiorno" e "la camera affacciata sul balcone lungo" nella planimetria attuale in salotto, cucina/sala da pranzo, con tavolo che puo' sedere 6 persone (fino a 10 con estensione). Vorremmo buttare giu' il muro che separa ingresso e nuovo salotto in mode da creare un open space. Vorremmo due opzioni. Opzione 1: open space cucina con isola/sala da pranzo/salotto/ingresso Opzione 2: separare cucina/sala da pranzo (con isola) dal salotto/entrata ma mantendo comunque il senso di open space (magari con ampie porta scorrevole).
-camere da letto: vorremmo tre camere da letto. L' attuale "cucina" diventera' camera bimbi. Come indicato nello sketch, vorremo a built-in armadio per la camera al centro prendendo spazio dalla camera nell'angolo (quella con il balcone piccolo) che e' comunque troppo grande. La camera al centro (destinata alla coppia di genitori) sara sia stanza da letto sia home-office e ha bisogno di spazio per scrivania. La stanza nell'angolo e' per la nonna e rimarra leggermente piu' grande delle altre.
-Storage: abbiamo bisogno di un ripostiglio di 2/3 metri quadri. Probabilmente la posizione migliore e' prendedo spazio dal bagno senza finestra e/o dall'ingresso. Alternativamente, possimo anche considerare due ripostigli separati ma piu' piccoli se lo spazio e' gestito piu' efficentemente. Per finire, dove lo spazio permette, vorremmo built-in storage "seemingless integrated" con i muri (si veda foto d'esempio di angolo salotto built-in storagee integrato nel muto, cosi' come il built-in storage vicino alla vasca da bagno).
-Ingresso: abbiamo bisogno di built-in storage per le giacche, etc.
-Bagni: Non abbiamo bisogno di bagni grandi. Un bagno deve avere doccia/vasca da bagno piccola, bidet, toilette e lavandino. Per il secondo bagno e' sufficiente lavandino, doccia e toilette. Inoltre, uno dei due bagni ha bisogno di spazio per la lavatrice e asciugatrice (una sopra l'altra). E' possibile spostare la posizione attuale di lavandino e toilette. Il bagno con finestra ha attualmente uno scalino ma pensiamo che possa essere rimosso (controlleremo durante la fase di demolizione).
-Abbiamo un mobile/libreria lungo 2.65m che dovra' essere posizionato in salotto.
-La parete cucina deve essere di almeno 3.35m.
-Luci: spot lights dappertutto, tranne sopra al tavolo da pranzo.