
Corato, BA, Italia
Residential - Apartment
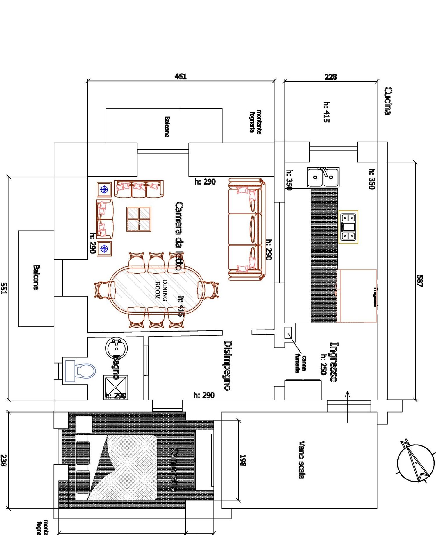
Interior design and 3D modeling of a residential apartment focused on spatial optimization, natural lighting, and a calm living atmosphere.
The project includes redesign of public and private areas, furniture layout, materials, and realistic lighting setup.