28100 Novara, Province of Novara, Italy
Residential - Apartment
Briefing
APPARTAMENTO SITO AL PRIMO PIANO
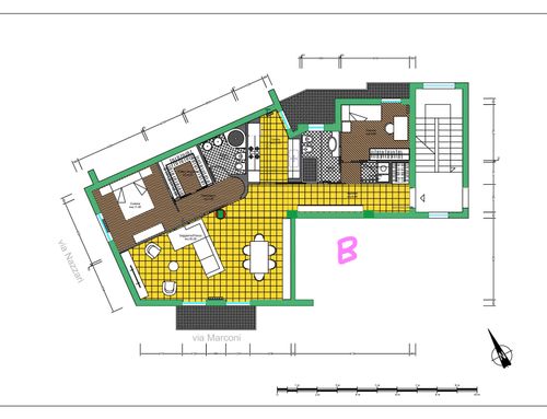
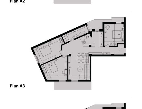
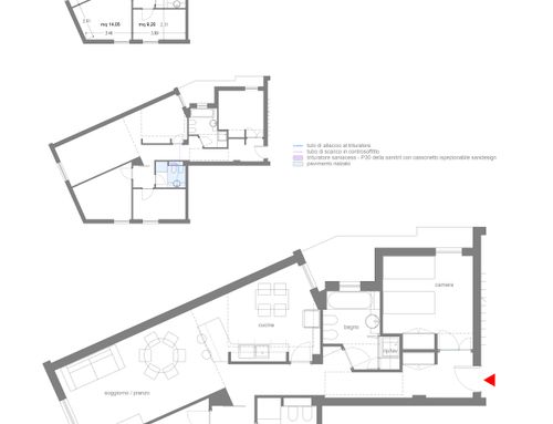
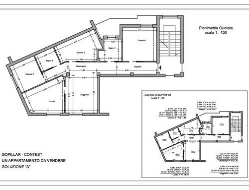
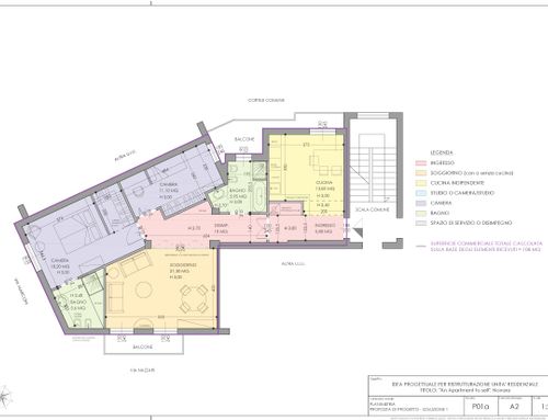
L'appartamento si trova in via Nazzari, angolo via Marconi. La zona più bella della casa sta sul lato di via marconi, dove potrebbe essere più bello avere il living. Purtroppo la zona sul retro non è così attraente, quindi non vorrei fare un corridoio lungo che arrivi fino al living attraversando tutta la casa ma non ho in mente altre soluzioni per arrivare al fondo della casa. Noi siamo una società che si occupa di investimenti immobiliari e quindi dobbiamo rivendere l'appartamento ad un valore che non superi i 165000. Quindi dobbiamo contentere i costi (30k) di ristrutturazione per non perdere margine. Il progetto che paga maggiormente in quella zona è il 3 locali + doppi servizi o il 4 locali con doppi servizi. La finestra su via Nazzari ha un balcone che non è segnato in planimetria. Allego video per rendere più chiaro.
https://youtu.be/S6EtZjIa_ws (Spiegazione Via Nazzari1)
https://youtu.be/l0sM1_iFIXs (Spiegazione Via Nazzari2)
https://www.youtube.com/watch?v=OTSfMYaxcU8 (Tipologia di Ristrutturazione Utilizzata Solitamente)
https://youtu.be/h-2x27xZtwg (Tipologia di Ristrutturazione Completa)
Posa Laminati, serramenti in linea con il condominio, colori tenui maggiormente rivendibili.
The apartment is located in via Nazzari, at the corner with via Marconi. The most beautiful area of the house is on the side of via marconi, where it could be nicer to have the living area. Unfortunately, the area at the back is not so attractive, so I wouldn't want to go on a long journey through the whole house but I don't have other solutions in mind to get to the bottom of the house. We are a company that deals with real estate investments and then resell the apartment at a value that is not more than 165,000. The project that pays in that area is the 3 rooms + two bathrooms or the 4 rooms with two bathrooms. The window on Via Nazzari has a balcony that is not marked in the plan. I enclose videos to make it clearer.
https://youtu.be/S6EtZjIa_ws (Spiegazione Via Nazzari1)
https://youtu.be/l0sM1_iFIXs (Spiegazione Via Nazzari2)
https://www.youtube.com/watch?v=OTSfMYaxcU8 (Tipologia di Ristrutturazione Utilizzata Solitamente)
https://youtu.be/h-2x27xZtwg (Tipologia di Ristrutturazione Completa)