
04012 Cisterna di Latina, Province of Latina, Italy
Residential - Apartment
Briefing
ENGLISH:
Welcome to our professional design contest on GoPillar, focused on a highly pragmatic design challenge! We are builders dedicated to creating a building in Italy, featuring 24 apartments and 4 commercial spaces. At the core of our attention is a specific space: the 80 sqm gross apartment.
When I discussed the idea of a contest with my partner, his belief was that the current interior layout was the best possible. However, I believe that with a professional and creative approach, we can optimize these spaces while maintaining the comfort and functionality that our future residents expect.
We're not looking for extravagance but rather projects that demonstrate ingenuity in space optimization. We want to maintain a comfortable and functional environment, but with a creative touch that makes it unique. In other words, we're seeking pragmatic solutions that meet daily needs without sacrificing style and innovation.
By participating in this contest, you have the opportunity to contribute to defining new standards of efficiency in small space design. You're called upon to demonstrate that comfort and creativity can coexist harmoniously.
We invite you to bring your professionalism and talent to this project, helping to create a space distribution that is comfortable, functional, and surprisingly innovative.
Thank you for participating in this professional design challenge. We look forward to your submissions and wish good luck to all participants.
Guide for Contest Participants: "Rethink Efficiency in the 80 sqm Apartment"
Welcome to our design contest, where we challenge you to take a fresh look at the spaces in our 80 sqm apartment. Our in-house architects have already crafted a layout that appears functional, but we believe in pushing boundaries and striving for excellence. This is where you come in.
Architectural Challenge: Surpass Our Best! While our architects have crafted a functional layout, we challenge you to surpass their efforts. Unleash your innovative spirit, prove that you can do better, and showcase designs that truly redefine modern living.
What You Can Do:
1. Space Optimization:
• Explore solutions that maximize space usage while ensuring comfort and functionality. Young couples, possibly newlyweds with a child, are our typical clients, and they appreciate spaces that facilitate everyday living.
2. Creativity with Substance:
• Integrate creative elements that make the apartment unique without compromising practicality. Define spaces through innovative furniture arrangements, pushing the boundaries of conventional design.
3. Maintain Comfort:
• Design solutions that meet the daily needs of the residents. Consider the specific requests for accessible bathrooms and the importance of lighting, ventilation, and other crucial aspects for a comfortable living environment.
What We Are Not Looking For:
1. Excessively Complex Solutions:
• Avoid overly complicated designs that may sacrifice functionality for aesthetics.
2. Pointless Extravagance:
• We're not seeking eccentric solutions without a practical reason. Creativity should enhance the living experience.
3. Ignoring the Context:
• Consider the context in which the apartment is located and adhere to any local architectural or regulatory constraints.
Allowed Modifications:
Feel free to explore innovative solutions, but consider the following information:
• Windows: Modify openings and positions while respecting the minimum of 1/8 of the useful area of the room. We prefer essential and proportionate windows. You cannot create balconies where there are none, for urban planning reasons.
• Doors: Modify freely, but hinged doors are preferable to sliding doors, both for cost considerations and functionality.
• Walls and Entrance Door: You are authorized to move walls and the entrance door, but comply with regulatory constraints and consider the overall floor plan.
Additional Instructions:
• Bedrooms:
• An apartment with two bedrooms must necessarily have at least one master bedroom with at least 14 sqm of useful space and a small bedroom with a minimum of 9 sqm of useful space. Propose solutions that consider the comfort of living, respecting the minimum values.
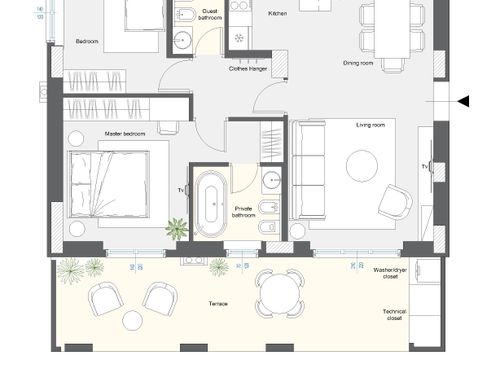
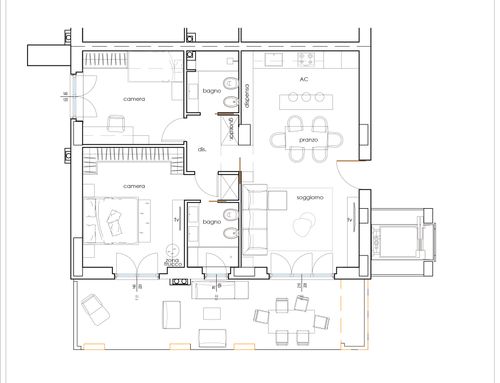
Technical Areas: Consider the creation of technical passages for kitchen and bathroom drains. The construction site is currently underway, so they can be moved as needed. Also, contemplate establishing a technical area on the balcony (orange dashed area). It should house the heat pump that will supply heating and cooling, but it can also accommodate a washing machine connection, etc., if spacious enough."
Client Profile: The typical resident for this apartment is a young couple, possibly newlyweds, who may have a child and do not want to immediately change apartments if a second child arrives. Modern couples adore functional spaces that cater to their lifestyle.
Materials: For flooring, use porcelain stoneware, avoiding parquet. Some walls can be created with 3D wall panels or wooden cladding panels.
Colors: In the render, use colors that highlight the modernity of the spaces—light colors and modern furnishings, youthful solutions. We challenge you to go above and beyond, demonstrating that truly remarkable designs can always be improved.
Participate actively in discussions on the GoPillar platform and feel free to share ideas and questions. Thank you for your participation, and good luck!
ITALIANO:
Benvenuti nel nostro professionale contest di design su GoPillar, incentrato su una sfida di design altamente pragmatica! Siamo costruttori dedicati alla creazione di un edificio in Italia, con 24 appartamenti e 4 spazi commerciali. Al centro della nostra attenzione c'è uno spazio specifico: l'appartamento lordo di 80 mq.
Quando ho discusso l'idea di un contest con il mio partner, la sua convinzione era che la disposizione interna attuale fosse la migliore possibile. Tuttavia, credo che con un approccio professionale e creativo possiamo ottimizzare questi spazi mantenendo il comfort e la funzionalità che si aspettano i nostri futuri residenti.
Non stiamo cercando l'eccesso, ma progetti che dimostrino ingegno nell'ottimizzazione degli spazi. Vogliamo mantenere un ambiente confortevole e funzionale, ma con un tocco creativo che lo renda unico. In altre parole, cerchiamo soluzioni pragmatiche che soddisfino le esigenze quotidiane senza sacrificare stile e innovazione.
Partecipando a questo contest, avete l'opportunità di contribuire a definire nuovi standard di efficienza nel design di spazi ridotti. Siete chiamati a dimostrare che comfort e creatività possono coesistere armoniosamente.
Vi invitiamo a portare la vostra professionalità e talento a questo progetto, contribuendo a creare una distribuzione degli spazi che sia confortevole, funzionale e sorprendentemente innovativa.
Grazie per la vostra partecipazione a questa sfida di design professionale. Non vediamo l'ora di vedere le vostre proposte e auguriamo buona fortuna a tutti i partecipanti.
Guida per i Partecipanti al Contest: "Ripensare l'Efficienza nell'Appartamento di 80 mq"
Benvenuti nel nostro contest di design, dove vi sfidiamo a guardare con occhi nuovi gli spazi del nostro appartamento di 80 mq. I nostri architetti interni hanno già creato una disposizione che sembra funzionale, ma crediamo nel superare i limiti e cercare l'eccellenza. Ecco dove entrate in gioco voi.
Sfida Architettonica: Superare il Nostro Migliore! Mentre i nostri architetti hanno creato una disposizione funzionale, vi sfidiamo a superare i loro sforzi. Liberate il vostro spirito innovativo, dimostrate di poter fare di meglio e presentate progetti che ridefiniscono veramente la vita moderna.
Cosa Potete Fare:
Ottimizzazione dello Spazio:
• Esplorate soluzioni che massimizzino l'uso dello spazio garantendo comfort e funzionalità. Le coppie giovani, possibilmente neo-sposati con un bambino, sono i nostri clienti tipici e apprezzano spazi che facilitano la vita quotidiana.
Creatività con Sostanza:
• Integrate elementi creativi che rendano l'appartamento unico senza compromettere la praticità. Definite gli spazi attraverso disposizioni innovative di mobili, spingendo i confini del design convenzionale.
Mantenere il Comfort:
• Progettate soluzioni che soddisfino le esigenze quotidiane degli abitanti. Considerate le richieste specifiche per bagni accessibili e l'importanza di illuminazione, ventilazione e altri aspetti cruciali per un ambiente di vita confortevole.
Cosa Non Stiamo Cercando:
Soluzioni Eccessivamente Complesse:
• Evitate progetti eccessivamente complicati che potrebbero sacrificare la funzionalità per l'estetica.
Eccessiva Eccessività:
• Non stiamo cercando soluzioni eccentriche senza una ragione pratica. La creatività dovrebbe migliorare l'esperienza di vita.
Ignorare il Contesto:
• Considerate il contesto in cui si trova l'appartamento e attenetevi a eventuali vincoli architettonici o normativi locali.
Modifiche Consentite:
Sentitevi liberi di esplorare soluzioni innovative, ma tenete presente le seguenti informazioni:
• Finestre: Modificate aperture e posizioni nel rispetto del minimo dell'1/8 della superficie utile della stanza. Preferiamo finestre essenziali e proporzionate. Non potete creare balconi dove non ce ne sono, per motivi di pianificazione urbana.
• Porte: Modificate liberamente, ma le porte a battente sono preferibili alle porte scorrevoli, sia per considerazioni di costo che di funzionalità.
• Muri e Porta d'Ingresso: Avete l'autorizzazione per spostare muri e la porta d'ingresso, ma rispettate i vincoli normativi e considerate la planimetria generale.
Istruzioni Aggiuntive:
• Camere da Letto:
• Un appartamento con due camere da letto deve necessariamente avere almeno una camera da letto principale con almeno 14 mq di spazio utile e una piccola camera da letto con un minimo di 9 mq di spazio utile. Proponete soluzioni che tengano conto del comfort di vita, rispettando i valori minimi.
Aree Tecniche: Considerate la creazione di passaggi tecnici per gli scarichi della cucina e del bagno. Il cantiere è attualmente in corso, quindi possono essere spostati secondo necessità. Contemplate anche l'istituzione di un'area tecnica sul balcone (area tratteggiata arancione). Dovrebbe ospitare la pompa di calore che fornirà riscaldamento e raffreddamento, ma può anche accogliere un collegamento per la lavatrice, ecc., se abbastanza spaziosa."
Profilo del Cliente: Il residente tipico di questo appartamento è una giovane coppia, possibilmente appena sposata, che potrebbe avere un bambino e non vuole cambiare immediatamente appartamento se arriva un secondo figlio. Le coppie moderne adorano gli spazi funzionali che si adattano al loro stile di vita.
Materiali: Per il pavimento, utilizzate gres porcellanato, evitando il parquet. Alcune pareti possono essere realizzate con pannelli murali 3D o pannelli di rivestimento in legno.
Colori: Nel render, utilizzate colori che mettano in evidenza la modernità degli spazi: colori chiari e arredi moderni, soluzioni giovani. Vi sfidiamo a superare le aspettative, dimostrando che i progetti veramente eccezionali possono sempre essere migliorati.
Partecipate attivamente alle discussioni sulla piattaforma GoPillar e sentitevi liberi di condividere idee e domande. Grazie per la vostra partecipazione e in bocca al lupo!
ESPANOL:
Bienvenidos a nuestro concurso profesional de diseño en GoPillar, enfocado en un desafío de diseño altamente pragmático. Somos constructores dedicados a crear un edificio en Italia con 24 apartamentos y 4 espacios comerciales. En el centro de nuestra atención hay un espacio específico: el apartamento bruto de 80 metros cuadrados.
Cuando discutí la idea de un concurso con mi socio, su creencia era que la disposición interior actual era la mejor posible. Sin embargo, creo que con un enfoque profesional y creativo, podemos optimizar estos espacios manteniendo la comodidad y funcionalidad que esperan nuestros futuros residentes.
No buscamos extravagancia, sino proyectos que demuestren ingenio en la optimización del espacio. Queremos mantener un entorno cómodo y funcional, pero con un toque creativo que lo haga único. En otras palabras, buscamos soluciones pragmáticas que satisfagan las necesidades diarias sin sacrificar estilo e innovación.
Al participar en este concurso, tienes la oportunidad de contribuir a definir nuevos estándares de eficiencia en el diseño de espacios pequeños. Estás llamado a demostrar que la comodidad y la creatividad pueden coexistir armoniosamente.
Te invitamos a aportar tu profesionalismo y talento a este proyecto, ayudando a crear una distribución de espacio cómoda, funcional y sorprendentemente innovadora.
Gracias por participar en este desafío de diseño profesional. Esperamos tus propuestas y les deseamos buena suerte a todos los participantes.
Guía para los Participantes del Concurso: "Reimagina la Eficiencia en el Apartamento de 80 metros cuadrados"
Bienvenidos a nuestro concurso de diseño, donde los desafiamos a mirar de manera fresca los espacios en nuestro apartamento de 80 metros cuadrados. Nuestros arquitectos internos ya han creado una disposición que parece funcional, pero creemos en superar límites y buscar la excelencia. Aquí es donde entran ustedes.
Desafío Arquitectónico: ¡Supera lo Mejor de Nosotros! Mientras que nuestros arquitectos han creado una disposición funcional, los desafiamos a superar sus esfuerzos. Liberen su espíritu innovador, demuestren que pueden hacerlo mejor y presenten diseños que redefinan verdaderamente la vida moderna.
Lo que Pueden Hacer:
Optimización del Espacio:
• Explora soluciones que maximicen el uso del espacio garantizando comodidad y funcionalidad. Las parejas jóvenes, posiblemente recién casadas con un hijo, son nuestros clientes típicos, y aprecian espacios que faciliten la vida cotidiana.
Creatividad con Sustancia:
• Integra elementos creativos que hagan el apartamento único sin comprometer la practicidad. Define espacios mediante disposiciones innovadoras de muebles, empujando los límites del diseño convencional.
Mantener la Comodidad:
• Diseña soluciones que satisfagan las necesidades diarias de los residentes. Considera las solicitudes específicas de baños accesibles y la importancia de la iluminación, ventilación y otros aspectos cruciales para un entorno de vida cómodo.
Lo que no Estamos Buscando:
Soluciones Excesivamente Complejas:
• Eviten diseños demasiado complicados que puedan sacrificar la funcionalidad por la estética.
Extravagancia sin Sentido:
• No estamos buscando soluciones excéntricas sin una razón práctica. La creatividad debería mejorar la experiencia de vida.
Ignorar el Contexto:
• Consideren el contexto en el que se encuentra el apartamento y adhiéranse a cualquier restricción arquitectónica o normativa local.
Modificaciones Permitidas:
Siéntanse libres de explorar soluciones innovadoras, pero consideren la siguiente información:
• Ventanas: Modifiquen aperturas y posiciones respetando el mínimo del 1/8 del área útil de la habitación. Preferimos ventanas esenciales y proporcionadas. No pueden crear balcones donde no los haya por razones de planificación urbana.
• Puertas: Modifiquen libremente, pero las puertas batientes son preferibles a las correderas, tanto por consideraciones de costo como de funcionalidad.
• Paredes y Puerta de Entrada: Tienen autorización para mover paredes y la puerta de entrada, pero cumplan con las restricciones normativas y consideren el plano general.
Instrucciones Adicionales:
• Dormitorios:
• Un apartamento con dos dormitorios debe tener necesariamente al menos un dormitorio principal con al menos 14 metros cuadrados de espacio útil y un dormitorio pequeño con un mínimo de 9 metros cuadrados de espacio útil. Propongan soluciones que consideren la comodidad de vida, respetando los valores mínimos.
Áreas Técnicas: Consideren la creación de pasajes técnicos para desagües de cocina y baño. La obra está actualmente en curso, por lo que pueden moverse según sea necesario. También contemplen establecer un área técnica en el balcón (área punteada en naranja). Debería albergar la bomba de calor que suministrará calefacción y refrigeración, pero también puede acomodar una conexión para la lavadora, etc., si es lo suficientemente espaciosa."
Perfil del Cliente: El residente típico de este apartamento es una pareja joven, posiblemente recién casada, que podría tener un hijo y no quiere cambiar de apartamento inmediatamente si llega un segundo hijo. A las parejas modernas les encantan los espacios funcionales que se adaptan a su estilo de vida.
Materiales: Para el suelo, utilicen gres porcelánico, evitando el parqué. Algunas paredes pueden crearse con paneles de pared 3D o paneles de revestimiento de madera.
Colores: En la representación visual, utilicen colores que resalten la modernidad de los espacios: colores claros y mobiliario moderno, soluciones juveniles. Les desafiamos a ir más allá, demostrando que los diseños realmente notables siempre pueden mejorarse.
Participen activamente en las discusiones en la plataforma GoPillar y siéntanse libres de compartir ideas y preguntas. Gracias por su participación y ¡buena suerte!
FRANCAIS:
Bienvenue à notre concours de design professionnel sur GoPillar, axé sur un défi de conception hautement pragmatique ! Nous sommes des constructeurs dédiés à la création d'un immeuble en Italie, comprenant 24 appartements et 4 espaces commerciaux. Au cœur de notre attention se trouve un espace spécifique : l'appartement brut de 80 mètres carrés.
Lorsque j'ai discuté de l'idée d'un concours avec mon partenaire, sa conviction était que la disposition intérieure actuelle était la meilleure possible. Cependant, je crois qu'avec une approche professionnelle et créative, nous pouvons optimiser ces espaces tout en maintenant le confort et la fonctionnalité que nos futurs résidents attendent.
Nous ne cherchons pas l'extravagance, mais plutôt des projets qui démontrent de l'ingéniosité dans l'optimisation de l'espace. Nous voulons maintenir un environnement confortable et fonctionnel, mais avec une touche créative qui le rend unique. En d'autres termes, nous recherchons des solutions pragmatiques qui répondent aux besoins quotidiens sans sacrifier le style et l'innovation.
En participant à ce concours, vous avez l'opportunité de contribuer à définir de nouvelles normes d'efficacité dans la conception d'espaces restreints. Vous êtes appelés à démontrer que le confort et la créativité peuvent coexister harmonieusement.
Nous vous invitons à apporter votre professionnalisme et votre talent à ce projet, en contribuant à créer une distribution d'espace confortable, fonctionnelle et étonnamment novatrice.
Merci de participer à ce défi de design professionnel. Nous attendons vos propositions avec impatience et souhaitons bonne chance à tous les participants.
Guide pour les Participants au Concours : "Repenser l'efficacité dans l'appartement de 80 mètres carrés"
Bienvenue à notre concours de design, où nous vous mettons au défi de regarder de manière nouvelle les espaces de notre appartement de 80 mètres carrés. Nos architectes internes ont déjà élaboré une disposition qui semble fonctionnelle, mais nous croyons à repousser les limites et à viser l'excellence. C'est là que vous intervenez.
Défi Architectural : Surpassez notre meilleur ! Alors que nos architectes ont élaboré une disposition fonctionnelle, nous vous mettons au défi de surpasser leurs efforts. Libérez votre esprit innovant, prouvez que vous pouvez faire mieux et présentez des conceptions qui redéfinissent vraiment la vie moderne.
Ce que vous pouvez faire :
Optimisation de l'espace :
• Explorez des solutions qui maximisent l'utilisation de l'espace tout en assurant confort et fonctionnalité. Les jeunes couples, éventuellement des jeunes mariés avec un enfant, sont nos clients typiques, et ils apprécient des espaces facilitant la vie quotidienne.
Créativité avec substance :
• Intégrez des éléments créatifs qui rendent l'appartement unique sans compromettre la praticité. Définissez les espaces grâce à des agencements innovants de meubles, repoussant les limites du design conventionnel.
Maintien du confort :
• Concevez des solutions qui répondent aux besoins quotidiens des résidents. Tenez compte des demandes spécifiques pour des salles de bains accessibles et de l'importance de l'éclairage, de la ventilation et d'autres aspects cruciaux pour un environnement de vie confortable.
Ce que nous ne recherchons pas :
Solutions excessivement complexes :
• Évitez les conceptions trop compliquées qui pourraient sacrifier la fonctionnalité pour l'esthétique.
Extravagance inutile :
• Nous ne recherchons pas des solutions excentriques sans raison pratique. La créativité devrait améliorer l'expérience de vie.
Ignorer le contexte :
• Tenez compte du contexte dans lequel se trouve l'appartement et respectez les contraintes architecturales ou réglementaires locales.
Modifications autorisées :
N'hésitez pas à explorer des solutions innovantes, mais prenez en compte les informations suivantes :
• Fenêtres : Modifiez les ouvertures et positions en respectant au minimum 1/8 de la surface utile de la pièce. Nous préférons des fenêtres essentielles et proportionnées. Vous ne pouvez pas créer de balcons s'il n'y en a pas, pour des raisons d'urbanisme.
• Portes : Modifiez librement, mais les portes battantes sont préférables aux portes coulissantes, tant pour des considérations de coût que de fonctionnalité.
• Murs et porte d'entrée : Vous êtes autorisés à déplacer les murs et la porte d'entrée, mais respectez les contraintes réglementaires et tenez compte du plan d'ensemble.
Instructions supplémentaires :
• Chambres à coucher :
• Un appartement avec deux chambres à coucher doit nécessairement avoir au moins une chambre principale avec au moins 14 mètres carrés d'espace utile et une petite chambre avec un minimum de 9 mètres carrés d'espace utile. Proposez des solutions qui tiennent compte du confort de vie, en respectant les valeurs minimales.
Aires techniques : Considérez la création de passages techniques pour les évacuations de la cuisine et de la salle de bains. Le chantier est actuellement en cours, ils peuvent donc être déplacés selon les besoins. Envisagez également d'établir une zone technique sur le balcon (zone hachurée en orange). Elle devrait abriter la pompe à chaleur qui fournira le chauffage et la climatisation, mais elle peut également accueillir une connexion pour la machine à laver, etc., si elle est suffisamment spacieuse.
Profil du client : Le résident typique de cet appartement est un jeune couple, éventuellement des jeunes mariés, qui pourrait avoir un enfant et ne souhaite pas changer d'appartement immédiatement si un deuxième enfant arrive. Les couples modernes adorent les espaces fonctionnels qui répondent à leur mode de vie.
Matériaux : Pour le revêtement de sol, utilisez du grès cérame, en évitant le parquet. Certaines parois peuvent être créées avec des panneaux muraux 3D ou des panneaux de revêtement en bois.
Couleurs : Dans la représentation visuelle, utilisez des couleurs qui mettent en valeur la modernité des espaces : des couleurs claires et un mobilier moderne, des solutions jeunes. Nous vous mettons au défi d'aller au-delà, démontrant que des designs vraiment remarquables peuvent toujours être améliorés.
Participez activement aux discussions sur la plateforme GoPillar et n'hésitez pas à partager des idées et des questions. Merci de votre participation et bonne chance !