Briefing
ENG
Dear designers,
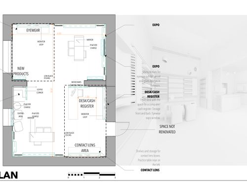
I’d like my shop to be both functional and peculiar, comfortable and trendy. I need desk, cash register plus two counters for the vendors. Each of them needs to have a place to sit for the client and a mirror. I’d also like the counters to have sockets for iPhone chargers. I also need to place a coffee machine for clients and monitors where to play video in loop.
I remain at your disposal for any further question.
Thank you!
----------------
ITA
NEGOZIO FUNZIONALE PRATICO PARTICOLARE E ACCOGLIENTE E TRENDY, il contesto deve avere desk,cassa,2 postazione vendita assistita con banco e relative sedute,specchi,tavolo pseudo conviviale con prese per ricarica cellulare e iPad e macchina caffe’ per i clienti,monitor per video a loop,LA PARTE DA PROGETTARE E' SOLO QUELLA ANTERIORE CHE SULLA PIANTINA HA IL COLORE DI BASE NERO
Grazie per la collaborazione