
Turin, Metropolitan City of Turin, Italy
Commercial - Office
Briefing
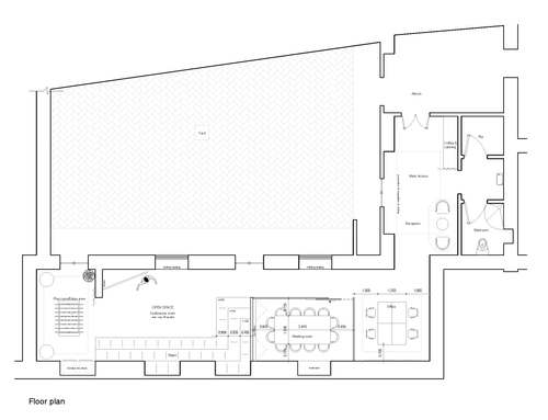
Mi piace lo stile minimal e industriale. Molto tecnico che trasmetta senso di creatività. Importante che non sia banale. Importante luce. Gli spazi che immagino divisi da pareti in vetro devono prevedere ufficio con due postazioni comode, area relax con divani, sala riunioni e spazio per conferenze per 25/30 posti non necessariamente fissi. In aggiunta un paio di postazioni lavoro basic. Mi servirebbe una sala riunioni riservata per incontri fino a una dozzina di persone mac e vorrei che ci fosse la possibilità di attrezzare facilmente uno spazio open per conferenze e presentazioni per 25/30 posti. Dimenticavo di scrivere che non è escluso che lo spazio open possa anche esser usato anche per mostre d’arte. Grazie e buon lavoro.
I like minimal and industrial style. High tech style that inspirate creative sensation. It’s very important to obtain not a banal working space. Spaces should be divided by glass wall. I need a comfortable Office with two working places, relax area with sofas, meeting room and an open space for conferences for 25/30 people not necessaraly fixed places. In addiction two more basic working places.