
70056 Molfetta, Metropolitan City of Bari, Italy
Residential - Apartment
Briefing
CIAO SONO UNA RAGAZZA DI 26 ANNI, HO APPENA COMPRATO CASA E VORREI DELLE IDEE PER QUANTO RIGURADA LA DIVISIONE E L 'ARREDO DELLA STESSA.
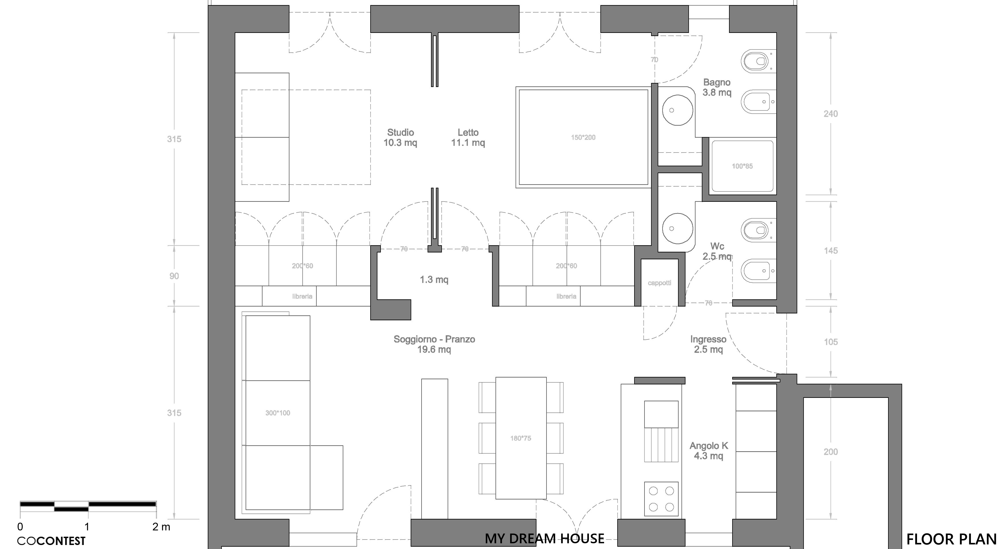
MI PIACEREBBE CHE FOSSE DIVISA IN ZONA GIORNO E ZONA NOTTE.
ZONA GIORNO: SOGGIORNO+CUCINA, MI PIACEREBBE UN OPEN SPACE, CHE PERO ALL'OCCORRENZA LA CUCINA SI POTESSE CHIUDERE/DIVIDERE DALLA ZONA GIORNO. UNA CUCINA ABBASTANZA VIVIBILE, INCORPORANDO UNA PENISOLA/O ISOLA DOVE POTER FAR COLAZIONE/PRANZO VELOCE.
ZONA GIORNO: TAVOLO DA PRANZO, DIVANO E PARETE ATTREZZATA
ZONA NOTTE: DUE STANZE DA LETTO, DI CUI UNA MATRIMONIALE (CON ARMADIO O CON CABINA ARMADIO) E UNA STANZA OSPITI + 1 BAGNO (CON DOCCIA) POSSIBILMENTE NO LUNGO E STRETTO.
QUALORA FOSSE POSSIBILE, IN BASE ALLO SPAZIO, MI PIACEREBBE AVERE UN 2° BAGNO (ANCHE DI SERVIZIO) PICCOLINO.
UNO STILE MODERNO, ABBASTANZA LINEARE, PER UNA RAGAZZA GIOVANE COME ME.
I COLORI CHE UTILIZZEREI BIANO, LEGNO CHIARO, GRIGIO CHIARO...UNA CASA LUMINOSA
LA CASA E IN FASE DI COSTRUZIONE
VI ALLEGO PIANTA SENZA MURI + PROTOTIPO RILASCIATO DAL COSTRUTTORE.
L'APPARTAMENTO COMPRENDE RISCALDAMENTO A PAVIMENTO, PORTE SCORREVOLI E PAVIMENTO GRSS PORCELLANATO.
GRAZIE ;)
P.S. : VI COMUNICO CHE LA DISPOSIZIONE DELLE FINIESTRE PUO' ESSERE MODIFICATA, PERO' IL BAGNO DEVE VENIRE SEMPRE IN QUEL PUNTO.