
00048 Nettuno, Metropolitan City of Rome Capital, Italy
Residential - Apartment
Briefing
ENG:
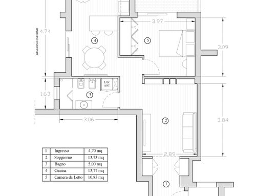
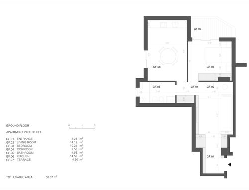
Hello everyone, I have an apartment in Nettuno of about 50m2. I would like to reverse the current bedroom where the kitchen currently is.
I currently have a garden near the bedroom and for this reason I would also like to move the bedroom to the current kitchen area.
I have to replace the bathtub in the shower and the bathroom fixtures.
SPA:
Hola a todos, tengo un piso en Nettuno de unos 50m2. Me gustaría revertir el dormitorio actual donde actualmente se encuentra la cocina.
Actualmente tengo un jardín cerca del dormitorio y por este motivo también me gustaría trasladar el dormitorio al área actual de la cocina.
Tengo que sustituir la bañera de la ducha y los sanitarios del baño.
ITA:
Salve a tutti, ho un appartamento a Nettuno di circa 50mq. Vorrei invertire l'attuale camera da letto dove attualmente è la cucina.
Ho il giardino attualmente vicino la camera da letto e vorrei spostare anche per questo la camera nella zona dell'attuale cucina.
Devo sostituire la vasca da bagno in doccia e i sanitari per il bagno.