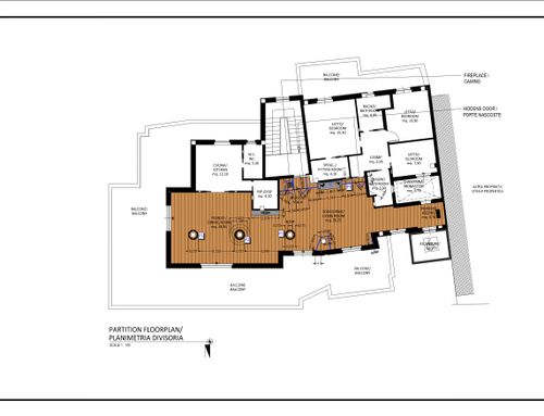
Briefing
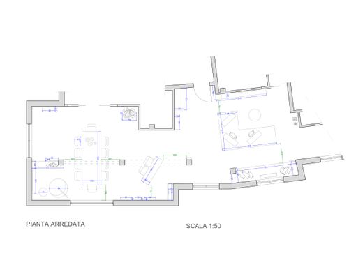
Nella zona giorno , ci sono 4 pilastri( riportati sulla pianta in celeste), che vorrei nascondere quanto più possibile con l'arredamento.
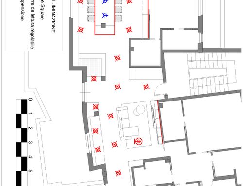
Nella zona giorno , molto ampia e luminosa , si accede direttamente o dall'ascensore o dalle scale. Ho predisposto diversi punti luce ed attacchi per la Tv. Sostanzialmente avrei bisogno di un tavolo ( magari apribile) per il pranzo , 8/10 persone, e spazi a sedere (divani e poltrone ), più mobili contenitori ( credenze e/o altro). Da due porte finestre della zona giorno si accede ad un ampio terrazzo che circonda l'attico per 180 gradi.
ENG
In the living area, there are 4 pillars (shown on the plan in light blue), which I would like to hide as much as possible with the furniture.
The living area, very large and bright, can be accessed directly from the lift or from the stairs. I have set up various light points and connections for the TV. Basically I would need a table (perhaps that can be opened) for lunch, 8/10 people, and seating spaces (sofas and armchairs), more storage furniture (sideboards and/or other) . Two French windows in the living area lead to a large terrace that surrounds the attic for 180 degrees.
SPA
En la zona de estar, hay 4 pilares (mostrados en el plano en azul claro), que me gustaría ocultar lo máximo posible con los muebles.
El salón, muy amplio y luminoso, tiene acceso directo desde el ascensor o desde las escaleras. He instalado varios puntos de luz y conexiones de televisión. Fundamentalmente necesitaría una mesa (quizás que se pueda abrir) para comer, 8/10 personas, y asientos (sofás y sillones), además de muebles de almacenaje (aparadores y/u otros). Dos ventanas francesas en la zona de estar dan acceso a una gran terraza que rodea el ático en 180 grados.