Bologna, Metropolitan City of Bologna, Italy
Residential - Apartment
Briefing
++++++++++++++++++++++++++++++++++++++++++++++++++++++++++++++++++++++++++++++++
I designer dei lavori migliori e per chi vorrà c'è la possibilità/opportunità di realizzare in seguito tavole di finiture, arredi e
collaborazione in fase di esecuzione lavori.
++++++++++++++++++++++++++++++++++++++++++++++++++++++++++++++++++++++++++++++++
DESCRIZIONE APPARTAMENTO
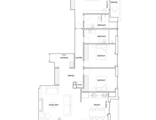
L’appartamento di circa 150 mq si trova a Bologna in viale Carducci.
È stato costruito nel 1967 e non è mai stato ristrutturato.
Edificio in cemento armato.
Altezza interna della casa: 3m.
Piano: 4 di 4.
Riscaldamento: centralizzato.
Scarichi. Sono nell’intercapedine tra il bagno ed il balcone dell’attuale camera da letto padronale. In aggiunta nel piccolo ripostiglio presente in cucina c'è un vecchio scarico per il wc, non utilizzato nella attuale disposizione dell’appartamento (vedi foto)
Esposizione: Sud-est Sud ed Ovest. (vedi foto aere esposizione).
La casa è attualmente vuota, senza arredamento.
Persone che abiteranno la casa: famiglia di 4 persone: due adulti e due bambine.
IMPIANTI.
Impianti elettrico, da rifare.
Impianto di Climatizzazione: da realizzare di tipo canalizzato in tutte le stanze no bagni e ripostiglio). Prevedere nella controsoffittatura feritoie e bocchette per la loro diffusione.
Impianto Termico: vedi attuali posizioni dei termoconvettori, da sostituire. Impianto centralizzato a colonne verticali. (cercare di non spostare troppo le posizioni attuali per non lievitare i costi)
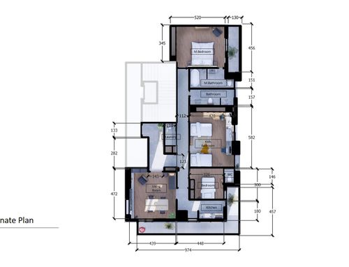
CASA CHE VORREMMO:
Vorremmo riorganizzare gli spazi, sfruttandoli al meglio, possibilmente limitando le demolizioni
Stile: moderno, con linee pulite, minimal.
Colori: preferiamo il bianco o colori chiari, no parati.
Pavimentazione: parquet ovunque (no nei bagni).
L’appartamento dovrà essere composto da:
• ingresso, prevendendo un eventuale armadio guardaroba etc…
• n.1 area living ampia, comprendente soggiorno e sala pranzo. E ’la parta della casa che viviamo di più ed a cui vorremmo dedicare il maggior spazio.
• n.1 cucina o cucinotto che non sia visibile dalla zona living.
Come arredo prevedere: frigorifero tipo americano (90x70), piastre ad induzione, pensili a tutta altezza.
• n.2 bagni, di cui n.1 con accesso alla camera padronale.
Entrambi con la doccia (docce in muratura, preferibilmente senza il piatto doccia standard a vista e possibilmente di larghezza 90cm). No vasca.
• n.1 lavanderia (prevedere asciugatrice e lavatrice e piccolo lavatoio per panni)
• n.1 ripostiglio : prevedere almeno una dispensa, una scarpiera (considerato che ci sono 3 donne in casa!!!),e alloggiamento per impianto di videosorveglianza etc….
• n.3 camere da letto:
o n.1 camera padronale (prevedere letto king size, dimensioni larghezza cm 180) con balcone e come detto prima possibilmente con bagno annesso.
o n.1 camera doppia;
o n.1 camera singola;
(l’idea è che le bimbe tra qualche anno abbiano la possibilità di studiare e dormire in due camere separate).
Balconi: vorremmo realizzare una specie di area verde con giardino verticale (es. con piante aromatiche), una zona per posizionare il barbecue, un piccolo lavandino e un’area con seduta. Valutare anche un frangisole o altra soluzione per privacy (angolo sud ovest vds foto).
ILLUMINAZIONE: molto importante. Casa molto luminosa. Ci piacerebbe avere delle tavole dove siano visibili le varie illuminazioni a seconda del tipo di luce attive nei vari ambienti (dirette ed indirette)
CONTROSOFFITTATURA: limitata ad alcune aree quali ad es. i corridoi, i bagni e l’ingresso. Da evitare nelle camere da letto e nella zona living (almeno non in tutta);
CAMINO: è funzionante, vogliamo rinnovarlo in linea con lo stile della casa.
TAPPARELLE:
-prevedere domotica;
-Cassonetti non a vista (vedi foto). Valutare anche la possibilità di nasconderli in una controsoffittatura perimetrale.
GARAGE: 20mq: parcheggio auto e creare una zona stoccaggio per materiale ingombrante e parcheggio bici
CANTINA: prevedere posizionamento di un congelatore a pozzetto per alimenti, dispensa per cibo e deposito vini.
++++++++++++
Sarà dato particolare valore ai progetti che: ottimizzeranno gli spazi, senza molte lavori edili, abbinando un ottimo studio studio dell'illuminazione. Graditi anche suggerimenti per potenziali arredi (premio extra verrà dato).*****
++++++++++++
VIDEO TOUR DELLA CASA:
https://drive.google.com/file/d/14-jYAQf3a6NOOW1LtURmDEmizOGZkBSe/view?usp=sharing
---------------------------------------------------------------------------------------------------------------------------------------------------------------------------------------
++++++++++++++++++++++++++++++++++++++++++++++++++++++++++++++++++++++++++++++++
The designers of the best works and for those who want there is the possibility/opportunity to realize at the end of the contest layouts of furniture, colors, finishes, etc... and collaboration during the execution phase of the renovation works.
++++++++++++++++++++++++++++++++++++++++++++++++++++++++++++++++++++++++++++++++
APARTMENT DESCRIPTION
The apartment is about 150 square meters and it is located in Bologna, in Viale Carducci.
It was built in 1967 and it has never been refurbished.
Reinforced concrete building.
Internal height of the apartment: 3m.
Floor: 4 of 4.
Centralized warming.
Drains: They are in the cavity between the bathroom and the balcony of the current master bedroom. In addition, in the small closet in the kitchen there is an old drain for the toilet, not used in the current layout of the apartment (see photo attached)
Exposure: South-East South and West. (see photo).
The house is currently empty, with no furniture.
People who will live in the house: family of 4: two adults and two kids.
INSTALLATIONS.
Electrical systems: to be rewired.
Air conditioning installation: ducted system to be done in all rooms, (no bathrooms and closet). Provide air diffusers in the false ceiling for their diffusion.
Heating system: see current positions of the convectors, to be replaced. Centralized system with vertical columns.
HOUSE WE WOULD LIKE.
We would like to reorganize the spaces, making the most of them, possibly limiting demolitions
Style: modern, with clean, minimal lines.
Colors: we prefer white or light colors, no wallpaper.
Flooring: parquet everywhere (not in the bathrooms).
The apartment must consist of:
• entrance, eventually with a wardrobe etc ...
• 1 large open space, including living room and dining room. This is the part of the house that we live the most and we would like to dedicate the most space.
• 1 kitchen or kitchenette that is not visible from the living area.
Furnishings include: American-style refrigerator (90x70cm), induction plates, full-height wall units.
• 2 bathrooms, 1 of which with access to the master bedroom.
Both with showers (showers in masonry, preferably without the standard shower tray and possibly 90cm wide). No bathtub.
• 1 laundry room (include dryer and washing machine and a small sink for clothes)
• n.1 closet: provide at least a pantry, a shoe cabinet (considering that there are 3 women in the house !!!), and an area for housing a video surveillance system.
• 3 bedrooms:
o 1 master bedroom (with king size bed, width 180 cm) with balcony and as mentioned before possibly with attached bathroom.
o 1 double room;
o 1 single room;
(the idea is that in a few years the girls will have the opportunity to study and sleep in two separate rooms).
Balconies: we would like to create a green area with a vertical garden (e.g. with aromatic plants), an area for the barbecue, a small sink and an area with seats. Also consider a sunscreen or other solution for privacy (south west corner see photo).
LIGHTING: very important. Very bright house. We would like to receive different tables in order to see different kinds of illuminations which show the type of active light in the various environments (direct and indirect)
FALSE CEILING: limited to some areas such as eg. the corridors, bathrooms and the entrance. To be avoided in the bedrooms and in the living area (at least not in all);
FIREPLACE: it is functional, we want to renovate it in line with the style of the house.
ROLLER SHUTTERS:
- provide home automation;
- Non-visible box of ruller shutter(see photo). Also consider the possibility of hiding them in a perimeter false ceiling.
GARAGE: 20sqm: car park and create a storage area for bulky material and bike parking
CELLAR: provide for the positioning of a chest freezer for food, pantry for food and wine storage.
++++++++++++
Particular value will be given to projects that: will optimize spaces, without many building works, combining an excellent study of lighting. Suggestions for potential furnishings are also welcome (extra rewards WILL BE ADDED).
++++++++++++
VIDEO TOUR OF THE HOUSE:
https://drive.google.com/file/d/14-jYAQf3a6NOOW1LtURmDEmizOGZkBSe/view?usp=sharing