
Catania, CT, Italia
Residential - Apartment
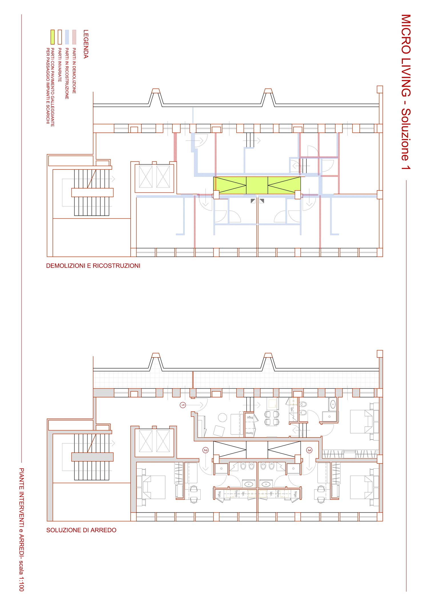
Le tre soluzioni progettuali di seguito esposte prevedono interventi poco invasivi salvaguardando il più possibile le parti esistenti limitando i lavori di demolizione al fine di dare un assetto distributivo funzionale. Per far fronte alle necessarie dotazioni impiantistiche dei nuovi WC, lontani dalle colonne di scarico esistenti, per ovviare alla soluzione di sanitari tipo “sanitrit” si è pensato di creare zone con pavimentazione rialzata per permettere il passaggio delle tubature e collegarle agli scarichi esistenti.
SOLUZIONE 1 (Monolocali): Il progetto prevede la realizzazione di n° 2 monolocali pressoché identici, in luogo delle stanze poste sul lato destro del piano, dotati di spazio soggiorno pranzo, cucina, letto e wc con antibagno. Si prevede altresì di ricavare un appartamento bilocale sugli spazi posti a sinistra del piano comunicanti con l’adiacente balcone; lo stesso sarà dotato di ingresso soggiorno, spazio cucina-pranzo, camera matrimoniale e bagno.
SOLUZIONE 2 (Affittacamere): La proposta progettuale prevede la realizzazione di n° 4 camere matrimoniali dotate di bagno con finestra ( la n° 4 attrezzabile anche per diversamente abili) con il locale rimanente, affacciante sul balcone, destinato a spazi comuni, nella fattispecie cucina-pranzo od in alternativa anche area relax. La zona di accesso all’unità immobiliare sarà destinata a zona reception per meglio espletare le funzioni di accoglienza della struttura.
SOLUZIONE 2 bis (Affittacamere): La proposta progettuale è una variazione sul tema di quella precedente e prevede la realizzazione di ulteriore camera singola in luogo del locale comune.