
Savona, SV, Italia
Residential - Apartment
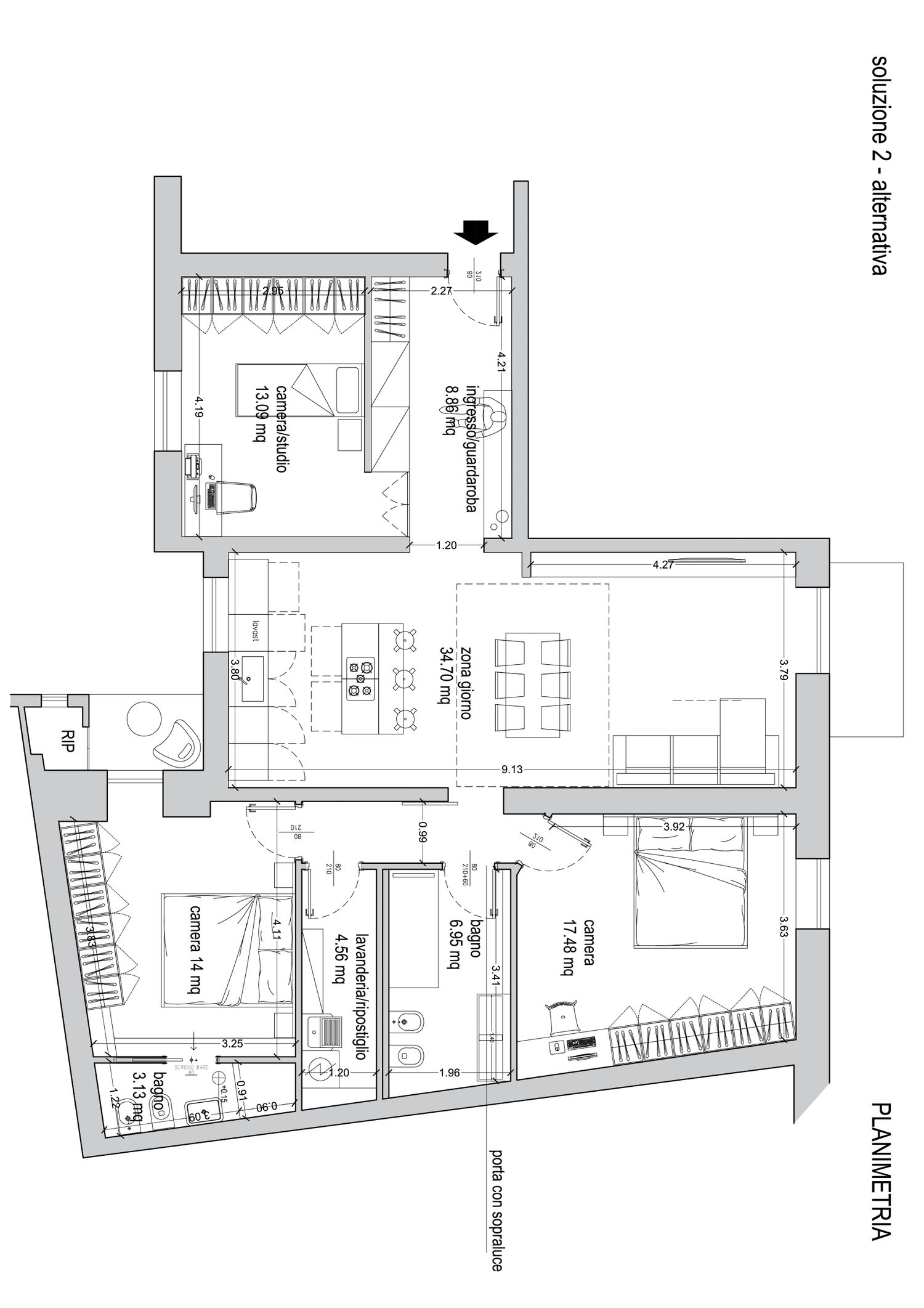
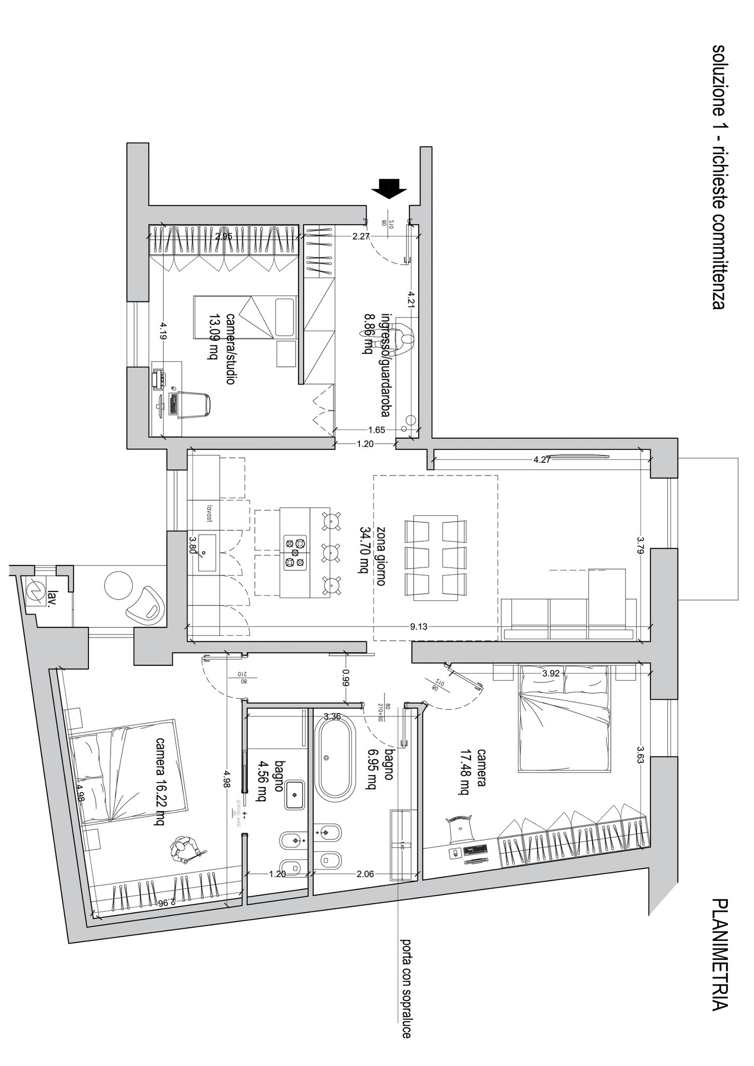
Per la progettazione del vostro immobile sito a Savona siamo a proporre due soluzioni diverse.
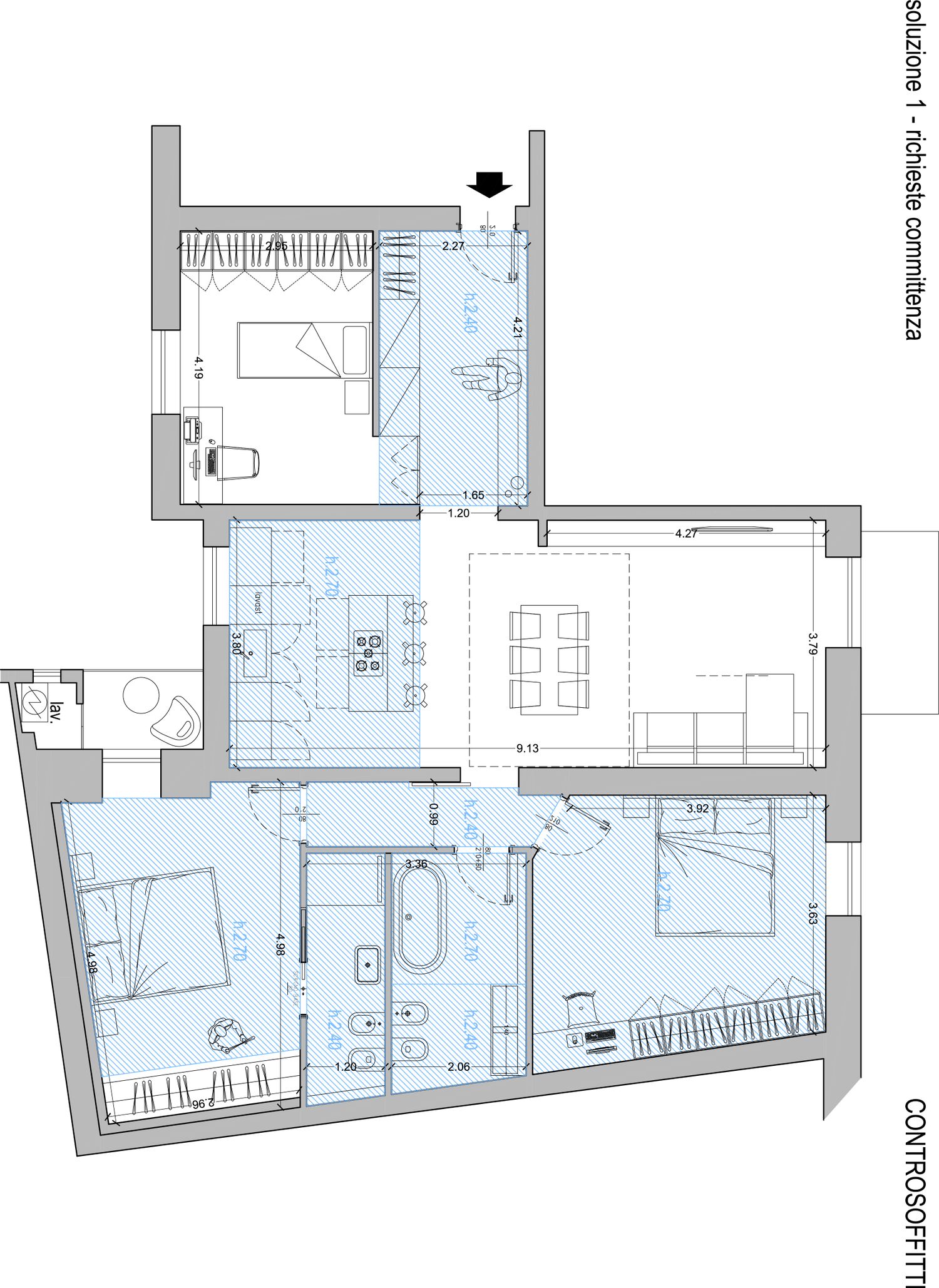
Nella prima soluzione, come da suggerimenti della committenza, si divide il locale centrale della zona notte in due per ottenere un bagno ensuite per la camera matrimoniale e un altro bagno più grande a servizio di tutto l'appartamento, un piccolo locale lavanderia si troverà sul balcone della camera da letto padronale. Verrà realizzata una controparete su due lati della camera da letto per il passaggio degli scarichi.
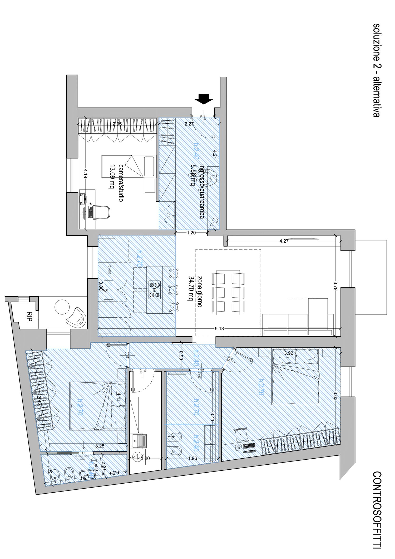
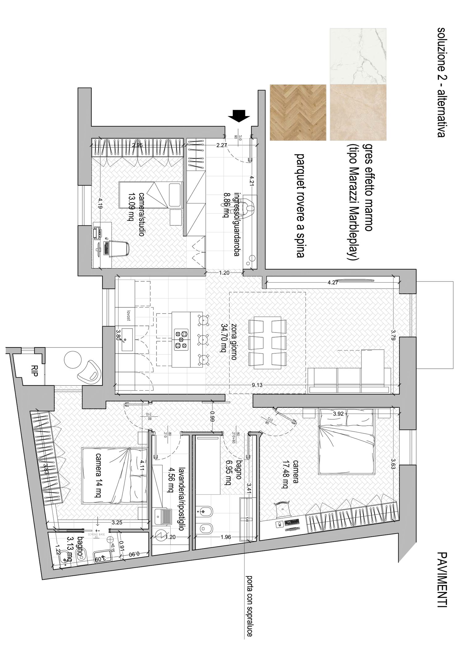
Nella seconda soluzione il locale centrale della zona notte si divide in un bagno principale e una lavanderia ripostiglio capiente, un secondo bagno ensuite viene realizzato in un angolo della camera permettendo di dare alla stanza una forma più regolare. Il nuovo bagno avrà un pavimento rialzato per permettere il passaggio degli scarichi.
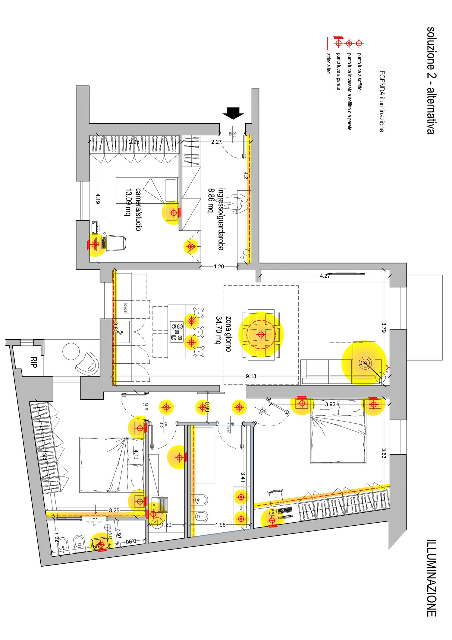
Per quanto riguarda la zona giorno, in entrambe le soluzioni è previsto un ingresso con un grande armadio a muro che ospita il guardaroba e la scarpiera e nasconde la porta della camera/studio, una lunga panca completa la stanza di ingresso. Il grande living avrà una cucina con isola e una zona tv dal lato del balcone.