
Milan, Metropolitan City of Milan, Italy
Residential - Living/Sleeping Area
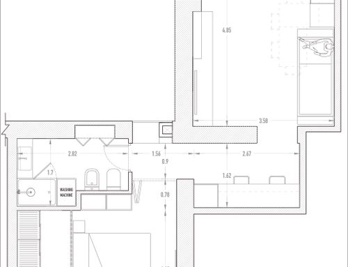
Briefing
We prefer a modern style, we would like light colors and bright spaces. We would like to demolish the kitchen's wall to create an open space in the living room area. We would like to enhance the kitchen / living room and we should use the corridor like a small studio. For this reason we would like if possible a render view of the kitchen/living room with the corridor. We would like very tall furniture so that we can take advantage of the flat's heights. in the kitchen we would like to have an extendable table, which allows us to host friends for dinner! We would like a sofa that can become a bed if needed. The kitchen should be equipped with a dishwasher. We would like to have a light colored wooden floor. In the living area, behind of furniture positioned in front of the sofa there should be a fireplace that we would like to be able to use (to verify its existence and to consider that in Milan the flues cannot be used). In the bedroom there is a walk-in closet behind the head of the bed that we would like to remain so. In the apartment there are two entrance doors. The main door is in the kitchen, the second door is in the corridor (between bathroom and corridor). The latter door is partly covered by a plasterboard inside which passes the chimney of the condominium (please see the photo). We would like to cover this second entrance door and be able to make the best use of the interior space (e.g. plasterboard with bookcase). The furniture in the kitchen, hallway/study and bedroom should be changed.
Amiamo uno stile moderno, vorremmo colori chiari e spazi luminosi. Vorremmo demolire il muro della cucina per creare un unico ambiente aperto. Vorremmo valorizzare lo spazio cucina/soggiorno e prevedere la possibilità di sfruttare al meglio il corridoio con un piccolo studio. Proprio per questo motivo, vorremmo se possibile una vista render della cucina/soggiorno con il corridoio. Vorremmo dei mobili molto alti così da poter sfruttare le altezze. In cucina ci piacerebbe avere un tavolo allungabile, che ci permetta di ospitare amici a cena! Vorremo un divano che possa diventare letto all'occorrenza. Sarebbe opportuno che la cucina fosse dotata di lavastoviglie. Ci piacerebbe avere un pavimento in legno dai colori chiari. Nella zona living, dietro al mobile posizionato di fronte al divano dovrebbe esserci un camino già predisposto che vorremmo poter utilizzare (da verificarne l'esistenza e da considerare che a Milano le canne fumarie non possono essere utilizzate). In camera da letto è presente una cabina armadio dietro la testata del letto che vorremmo rimanesse tale. Nell'appartamento sono presenti due porte d'ingresso. La porta principale si trova in cucina, la seconda porta si trova nel disimpegno. Quest'ultima porta è in parte coperta da una veletta in cartongesso all'interno della quale passa la canna fumaria del condominio. Vorremmo coprire questa seconda porta di ingresso e poter sfruttare lo spazio interno al meglio (es. muro di cartongesso con libreria). I mobili presenti in cucina, nel corridoio/studio e in camera da letto li dovremmo cambiare.