Rome, Metropolitan City of Rome, Italy
Residential - Apartment
Briefing
Vitruvius in De Architectura I.III 2 dictates the three rules firmitas, utilitas, venustas:
"All these [public and private buildings] must meet the criteria of robustness, utility and beauty.
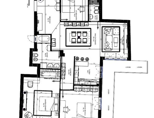
l'obiettivo e' aumentare la superficie del bagno principale, mantenendo sempre un secondo bagno e creare una cabina armadio, riducendo gli spazi oggi adibiti a corridoi.
info:1)Tra il bagno, la sala da pranzo ed il disimpegno abbiamo un grosso pilastro che condiziona la divisione degli spazi. 2)Le finestre in corrispondenza della dispensa, dell'entrata e del bagno principale affacciano su una chiostrina. 3)dobbiamo cercare di ricavare due bagni ed una camera armadio.4) La cameretta dovrebbe avere una dimensione di 14 mq almeno. 5)Nella camera matrimoniale intendiamo montare un armadio ad L di dimensioni 2,6mx2,6m.
6)Le finestre esposte a Sud ed Ovest affacciano in chiostrina
the goal is to increase the surface of the main bathroom while maintaining a second bathroom and create a walk-in closet, reducing the space now used as corridors.
info:1)Between the bathroom, the dining room we have a large pillar that affects the division of spaces.2) The windows in correspondence of the Pantry, the entrance and the big bathroom overlook a small cloister.3) We need to obtain two bathrooms and a walk-in closet.4) The second bedroom should have a size of at least 14 square meters. 5)In the big bedroom we intend to install an L-shaped closet of size 2.6mx2.6m.6)The windows facing south and west overlook the cloister
el objetivo es aumentar la superficie del baño principal, manteniendo siempre un segundo baño y crear un vestidor, reduciendo los espacios ahora utilizados como pasillos.
info: 1) Entre el baño, el comedor y el pasillo tenemos un gran pilar que condiciona la división de espacios. 2) Las ventanas en correspondencia con la despensa, la entrada y el baño principal dan a un pequeño claustro. 3) Debemos intentar conseguir dos baños y un vestuario 4) El dormitorio debe tener un tamaño mínimo de 14 metros cuadrados. 5) En el dormitorio principal pretendemos montar un armario en forma de L de 2,6mx2,6m.
6) Las ventanas orientadas al sur y al oeste dan al claustro