
Civitanova Marche, MC, Italia
Residential - Apartment
Briefing
ENG:
Dear Architects,
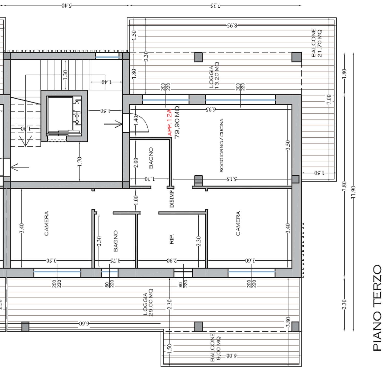
We are a young couple with a one and a half year old baby. We have decided to buy an apartment of which we attach the dimensioned floor plan, currently to be built with delivery scheduled for the end of 2026.
The apartment will be on the third floor of a 4-storey building. From the living area it will be possible to see the sea. The project includes the possibility of closing one of the two loggias present in the floor plan with frames (either the east side of the living room/kitchen or the west side of the sleeping area). We attach the floor plan and the rendering of the project.
The only constraints present are the load-bearing columns of the building.
The style we prefer is contemporary, not extremely minimal, linear and characterized by natural materials. We consider inserting marble in one bathroom, travertine in the other and oak parquet, slightly darker than the natural tone, in the rest of the house.
Contest Details:
Objective: Design an apartment that meets the following needs, optimizing space to the maximum and creating a functional and welcoming environment:
1) Three bedrooms, one of which is a double bedroom;
2) 2 bathrooms, both with shower;
3) Study area with PC station;
4) Large bookcase;
5) Laundry area with sink, dryer and washing machine;
6) Large kitchen with peninsula/island, complete with all appliances (dishwasher, oven, microwave oven, induction hob and fridge)
7) Closure of one of the loggias.
8) Presence of large storage spaces
We are excited to see your proposals and discover how you can turn ideas into reality. Do not hesitate to contact us for further information.
Thank you for your attention and participation!
Best regards,
Marco and Paola
SPA:
Estimados arquitectos:
Somos una pareja joven con una niña de un año y medio. Hemos decidido adquirir un apartamento del cual adjuntamos el plano dimensionado, actualmente en construcción con entrega prevista para finales de 2026.
El apartamento estará en el tercer piso de un edificio de 4 plantas. Desde el salón se podrá ver el mar. El proyecto incluye la posibilidad de cerrar con ventanas una de las dos logias de la planta (ya sea el lado este del salón/cocina o el lado oeste de la zona de dormir). Adjuntamos el plano y el render del proyecto.
Las únicas limitaciones presentes son las columnas portantes del edificio.
El estilo que preferimos es contemporáneo, no extremadamente minimalista, lineal y caracterizado por materiales naturales. Considere utilizar mármol en un baño, travertino en el otro y parquet de roble, ligeramente más oscuro que el tono natural, en el resto de la casa.
Detalles del concurso:
Objetivo: Diseñar un apartamento que cubra las siguientes necesidades, optimizando al máximo el espacio y creando un ambiente funcional y acogedor:
1) Tres dormitorios, uno de ellos doble;
2) 2 baños ambos con ducha;
3) Área de estudio con estación de PC;
4) Gran biblioteca;
5) Área de lavado con fregadero, secadora y lavadora;
6) Amplia cocina con península/isla, completa con todos los electrodomésticos (lavavajillas, horno, microondas, placa de inducción y frigorífico)
7) Cierre de una de las logias.
8) Presencia de amplios compartimentos de almacenamiento.
Estamos entusiasmados por ver vuestras propuestas y descubrir cómo podéis convertir vuestras ideas en realidad. No dude en contactarnos para más información.
¡Gracias por su atención y participación!
Atentamente,
Marcos y Paola
ITA:
Gentili Architetti,
siamo una giovane coppia con una bimba di un anno e mezzo. Abbiamo deciso di acquistare un appartamento di cui alleghiamo la planimetria quotata, ad oggi da costruire con consegna prevista per fine 2026.
L'appartamento sarà al terzo piano di una palazzina di 4 piani. Dalla zona giorno sarà possibile vedere il mare. Il progetto prevede la possibilità di chiudere con infissi una delle due logge presenti nella planimetria (o il lato est del soggiorno/cucina o il lato ovest della zona notte). Alleghiamo la planimetria e il render del progetto.
Gli unici vincoli presenti sono le colonne portanti della palazzina.
Lo stile che prediligiamo è contemporaneo, non estremamente minimale, lineare e caratterizzato da materiali naturali. Consideriamo di inserire il marmo in un bagno, il travertino nell’altro e parquet di rovere, leggermente più scuro del tono naturale, in tutto il resto della casa.
Dettagli del Contest:
Obiettivo: Progettare un appartamento che risponda alle seguenti esigenze, ottimizzando al massimo gli spazi e creando un ambiente funzionale e accogliente:
1) Tre camere da letto di cui una matrimoniale;
2) 2 bagni entrambi con doccia;
3) Zona studio con postazione PC;
4) Grande libreria;
5) Zona lavanderia con lavandino, asciugatrice e lavatrice;
6) Ampia cucina con penisola/isola, completa di tutti gli elettrodomestici (lavastoviglie, forno, forno a microonde, piano cottura a induzione e frigo)
7) Chiusura di una delle logge.
8) Presenza di ampi vani contenitivi
Siamo entusiasti di vedere le vostre proposte e di scoprire come potete trasformare le idee in realtà. Non esitate a contattarci per ulteriori informazioni.
Grazie per la vostra attenzione e partecipazione!
Cordiali saluti,
Marco e Paola