
Rome, Metropolitan City of Rome, Italy
Residential - Apartment
Briefing
IT
Cerco un progetto che renda la mia casa d’impatto, accogliente, ariosa, con linee “pulite” e allo stesso tempo funzionale.
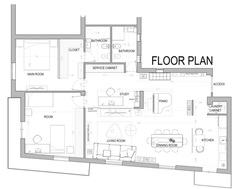
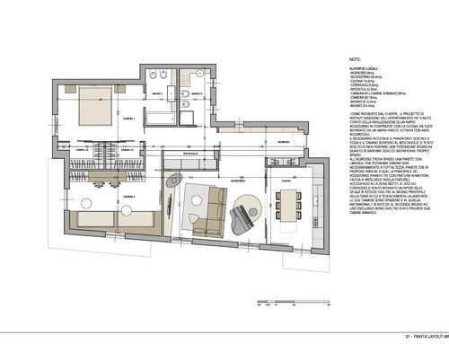
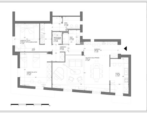
SPAZI: Mi piacciono gli ampi spazi nella zono giorno (soggiorno e salotto insieme), con molta luce. Una cucina funzionale, magari con un piccolo tavolo o una consolle. Due camere da letto (1 matrimoniale e 1 doppia), di dimensioni funzionali, se possibile una con il bagno in camera. Un secondo bagno oltre a quello nella camera da letto. Vorrei ricavare uno studiolo se non si sacrifica troppo la zona giorno, altrimenti un angolo studio o niente. Tenuto conto che l’appartamento non è servito da cantina vorrei ricavare uno sgabuzzino.
STILE: Mi piacerebbe uno stile che sia una via di mezzo tra nordico e “industrial/newyorkese” (non un industrial “pesante”), con tocchi d'arredo vintage.
DETTAGLI E COLORI:
nella zona giorno mi piacerebbe: i) separare la zona giorno dalla cucina con una vetrata (vetrate con montanti a quadrettoni), in modo da dare profondità e in modo che dal salotto/soggiorno oltre alle due finestre sii veda anche il balconcino (l’obiettivo è anche quello di avere tanta luce nella zona giorno); ii) sviluppare una parete in mattoncini (non troppo rossi ma piuttosto con sfumature di bianco); iii) trovare uno spazio per una libreria e un pianoforte digitale a coda (una coda piccola 😊); iv) installare delle piante verdi (magari un giardino verticale), ma non è indispensabile. v) valutare la possibilità di installare un camino a bioetanolo. Colori: prevalentemente bianco e legno, con alcuni dettagli d’arredo con colori e stile vintage.
Nella zona notte, ed in particolare nella camera da letto matrimoniale mi piacerebbe, se possibile, ricavare una cabina armadio (magari alle spalle del letto)
pavimento parquet
finestre bianche
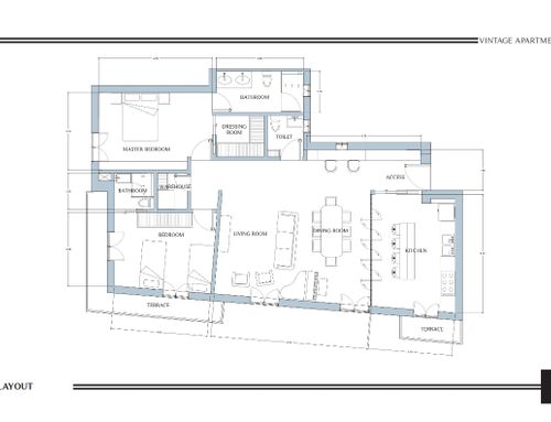
NOTE: come si vede dalla piantina, un muro perimetrale della casa è fuori squadro. Questa caratteristica immagino sia funzionalmente negativa, non so se si può pensare a qualcosa (magari addirittura esaltandola)
ENG
I'm looking for a project that makes my home impactful, welcoming, airy, with "clean" lines and functional at the same time.
SPACES: I like the large spaces in the living area (living room and lounge together), with lots of light. A functional kitchen, perhaps with a small table or console. Two bedrooms (1 double and 1 twin), functional in size, if possible one with an ensuite bathroom. A second bathroom in addition to the one in the bedroom. I would like to create a study if you don't sacrifice too much the living area, otherwise a study corner or nothing. Taking into account that the apartment is not served as a cellar, I would like to create a closet.
STYLE: I would like a style that is a cross between Nordic and "industrial / New York" (not a "heavy" industrial), with touches of vintage furniture.
DETAILS AND COLORS:
in the living area I would like to: i) separate the living area from the kitchen with a window (windows with squared uprights), so as to give depth and so that from the living room / living room in addition to the two windows you can also see the balcony (the the goal is also to have lots of light in the living area); ii) develop a brick wall (not too red but rather with shades of white); iii) find a space for a bookcase and a digital grand piano (a small coda 😊); iv) install green plants (perhaps a vertical garden), but it is not essential. v) evaluate the possibility of installing a bioethanol fireplace. Colors: mainly white and wood, with some furnishing details with vintage colors and style.
In the sleeping area, and in particular in the double bedroom, I would like, if possible, to create a walk-in closet (perhaps behind the bed)
parquet floor
white windows
NOTES: as you can see from the map, a perimeter wall of the house is out of square. I guess this feature is functionally negative, I don't know if you can think of something (maybe even exalting it)
SPA
Estoy buscando un proyecto que haga que mi hogar sea impactante, acogedor, aireado, con líneas "limpias" y funcional al mismo tiempo.
ESPACIOS: Me gustan los grandes espacios de la zona de estar (sala y comedor juntos), con mucha luz. Una cocina funcional, quizás con una pequeña mesa o consola. Dos dormitorios (1 matrimonial y 1 doble), de tamaño funcional, si es posible uno con baño privado. Un segundo baño adicional al del dormitorio. Me gustaría crear un estudio si no sacrificas demasiado la zona de estar, de lo contrario un rincón de estudio o nada. Teniendo en cuenta que el apartamento no tiene sótano, me gustaría crear un armario.
ESTILO: Me gustaría un estilo que sea un cruce entre nórdico e "industrial / New York" (no un industrial "pesado"), con toques de muebles vintage.
DETALLES Y COLORES:
En la sala de estar me gustaría: i) separar la sala de estar de la cocina con una ventana de vidrio (ventanas con montantes cuadriculados), para dar profundidad y para que desde la sala de estar, además de las dos ventanas, también se pueda ver el balcón (el El objetivo es también tener mucha luz en la sala de estar); ii) desarrollar una pared de ladrillos (no demasiado roja sino con tonos de blanco); iii) encontrar un espacio para una biblioteca y un piano de cola digital (una pequeña coda); iv) instalar plantas verdes (quizás un jardín vertical), pero no es imprescindible. v) evaluar la posibilidad de instalar una chimenea de bioetanol. Colores: principalmente blanco y madera, con algunos detalles de decoración con colores y estilo vintage.
En el área de dormir, y en particular en el dormitorio doble, me gustaría, si es posible, crear un vestidor (quizás detrás de la cama)
suelo de parquet
ventanas blancas
NOTAS: como puede ver en el plano, un muro perimetral de la casa no está encuadrado. Supongo que esta característica es funcionalmente negativa, no sé si puedes pensar en algo (tal vez incluso exaltarlo)