
Rome, Metropolitan City of Rome Capital, Italy
Residential - Apartment
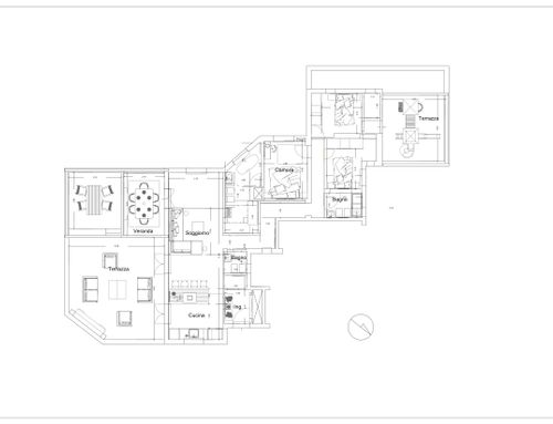
Briefing
ENG:
Hi, I'm Elio and I have decided to renovate the property where I live with my wife and my two children aged 2 and 4. The property is located in Rome and covers a surface area of approximately 180 m2 including a veranda. The area where today we find the living area and the veranda with the bedrooms is the area facing south, certainly worth enhancing as it is the area that also has a view of the city. In the new design layout I am open to any proposal, however trying to include three bedrooms, the master bedroom with en-suite bathroom and a walk-in closet for my wife and me; a shared bathroom for the other two rooms for the two sons therefore a new bedroom must be inserted so that both boys can have their own room.; a guest bathroom, a living area with a grand piano; ; kitchen possibly also open space. The property today has parquet that I would like to preserve as much as possible. As for the stylistic choice, I don't like industrial or shabby, I prefer proposals that are close to a classic/minimal style. Thank you all. Good work.
SPA:
Hola a todos, soy Elio y he decidido reformar la propiedad donde vivo con mi mujer y mis dos hijos de 2 y 4 años. La propiedad está ubicada en Roma y tiene una superficie de aproximadamente 180 m2, incluida una terraza. La zona donde hoy se encuentra la sala de estar y la terraza con los dormitorios es la zona orientada al sur, sin duda digna de realzar ya que es la zona que también tiene vista a la ciudad. En el nuevo diseño estoy abierto a cualquier propuesta, pero intentando incluir tres dormitorios, el dormitorio principal con baño en suite y vestidor para mi esposa y para mí; un baño compartido para las otras dos habitaciones para los dos hijos, por lo tanto se debe insertar un nuevo dormitorio para que ambos niños puedan tener su propia habitación.; un baño de visitas, una sala de estar con piano de cola; ; Cocina posiblemente también espacio abierto. La propiedad hoy tiene parquet que me gustaría conservar lo máximo posible. En cuanto a la elección estilística, no me gusta lo industrial o shabby, prefiero propuestas que se acerquen a un estilo clásico/minimal. Gracias a todos. Buen trabajo
ITA:
Ciao a tutta la community, sono Elio e ho deciso di ristrutturare l'immobile in cui vivo con mia moglie e i miei due bambini di 2 e 4 anni. L'immobile è sito in Roma e copre la superficie di 180 mq circa compresi di veranda. L'area dove oggi troviamo la zona living e la veranda con le camere da letto è la zona esposta a sud, sicuramente da valorizzare siccome è la zona che presenta anche una vista sulla città. Nella nuova disposizione progettuale sono aperto ad ogni proposta cercando però di inserire tre camere di cui la padronale con bagno in camera ed una cabina armadio per mia moglie e per me; un bagno condiviso per le altre due stanze per i due figli maschi quindi va inserita una nuova camera da letto in modo che entrambi i ragazzi possano avere una camera propria.; un bagno ospiti, una zona living con pianoforte a coda; ; cucina eventualmente anche open space. L'immobile oggi ha un parquet che vorrei custodire il più possibile. Per quanto riguarda la scelta stilistica non amo l'industrial o lo shabby preferisco delle proposte che si avvicinino ad uno stile classico/minimal . Grazie a tutti. Buon lavoro