
76125 Trani, Province of Barletta-Andria-Trani, Italy
Residential - Apartment
Briefing
ITA
Salve a tutti.
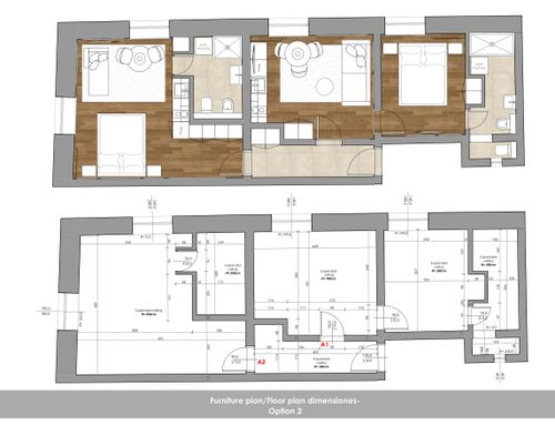
L'obiettivo del contest è la ristrutturazione e il frazionamento dell'attuale appartamento in due (o tre se è fattibile) unità immobiliari indipendenti, ciascuna abitabile da minimo due persone. L'appartamento è al secondo (e ultimo) piano di un edificio la cui costruzione risale presumibilmente ai primi del '900 e si trova a ridosso del porto turistico di Trani.
Lo scopo principale dell'operazione è la rivendita e, secondariamente, l'affitto per uso turistico. In tal senso, sono molto gradite soluzioni "smart", che permettano una ottima resa mantenendo i costi di realizzazione e gestione contenuti.
Il muro interno più sottile è un tramezzo e può essere demolito. Gli altri due muri interni sono portanti ed è possibile creare aperture previa cerchiatura, pertanto sarebbe preferibile ridurre al minimo indispensabile la realizzazione di aperture.
Eventuali soppalchi dovranno avere altezza minima di 2m e non superare i 10mq di superficie (la superficie comunque dovrà essere inferiore al 30% di quella dell'ambiente in cui sono ricavati).
I bagni possono essere ciechi e, per ciascun appartamento, dovranno includere i seguenti elementi: wc, bidet, doccia, lavabo, termoarredo, boiler e colonna lavatrice e asciugatrice.
Si predilige la presenza di una cabina armadio in luogo dei tradizionali armadi e la presenza di un ripostiglio per entrambe le unità immobiliari.
L'impianto idrico dovrà tassativamente essere a collettore. Per gli scarichi, sono presenti due montanti sfruttabili. La posizione è stata rappresentata nella planimetria in formato jpg con un cerchi di colore arancione.
L'impianto elettrico dovrà essere adeguato ai carichi, tenendo conto che l'energia elettrica sarà l'unica fonte di energia utilizzabile. Ne segue che l'impianto di climatizzazione dovrà essere adeguatamente dimensionato sia per il raffrescamento che per il riscaldamento degli ambienti.
Trattandosi di spazi piccoli, si preferisce l'utilizzo di colori e materiali oltre che di accorgimenti che "allarghino" gli ambienti.
Per l'arredamento, si richiede l'utilizzo in prevalenza di mobili IKEA.
ENG
Hi,
The aim of the contest is the renovation and splitting of the current apartment into two (or three if feasible) independent units, each habitable by at least two people. The apartment is on the second (and last) floor of a building whose construction presumably dates back to the early 1900s and is located close to the tourist port of Trani.
The main purpose of the operation is the resale and, secondarily, the rent for tourist use. In this sense, "smart" solutions are very welcome, which allow excellent performance while maintaining low construction and management costs.
The thinnest interior wall is a partition and can be demolished. The other two internal walls are load-bearing and it is possible to create openings after circling, therefore it would be preferable to reduce the creation of openings to a minimum.
Any mezzanines must have a minimum height of 2m and not exceed 10sqm of surface (the surface in any case must be less than 30% of that of the environment in which they are obtained).
The bathrooms can be blind and, for each apartment, must include the following elements: toilet, bidet, shower, sink, heated towel rail, boiler and washing machine and dryer column.
The presence of a walk-in closet is preferred instead of the traditional closets and the presence of a storage room for both real estate units.
The water system must strictly be a collector. For the exhausts, there are two usable uprights. The position has been represented on the floor plan in jpg format with an orange circle.
The electrical system must be suitable for the loads, taking into account that electricity will be the only usable energy source. It follows that the air conditioning system must be adequately sized for both cooling and heating of the rooms.
As these are small spaces, the use of colors and materials is preferred as well as devices that "enlarge" the rooms.
For the furniture, the use of IKEA furniture is required.
ESP
Hola a todos.
El objetivo del concurso es la reforma y el fraccionamiento del piso actual en dos (o tres si es factible) unidades independientes, cada una de ellas habitable por al menos dos personas. El piso está en la segunda (y última) planta de un edificio cuya construcción se remonta presumiblemente a principios del siglo XX y está situado cerca del puerto turístico de Trani.
El objetivo principal de la reforma es la reventa y, en segundo lugar, el alquiler para uso turístico. Por este motivo, son muy bienvenidas las soluciones "inteligentes", que permiten obtener un excelente rendimiento manteniendo bajos los costes de construcción y gestión.
La pared interior más fina es un tabique y puede ser demolida. Los otros dos muros interiores son portantes y se pueden crear aberturas después de dar vueltas, por lo que sería preferible reducir el número de aberturas al mínimo.
Las altillos deben tener una altura mínima de 2 metros y no superar los 10 metros cuadrados de superficie (en cualquier caso, la superficie debe ser inferior al 30% de la de la habitación en la que se crean).
Los cuartos de baño pueden ser ciegos y, para cada piso, deben incluir los siguientes elementos: inodoro, bidé, ducha, lavabo, toallero calentado, caldera y columna de lavadora y secadora.
Se prefiere la presencia de un vestidor en lugar de los tradicionales armarios y la presencia de un trastero para ambas unidades.
El sistema de agua debe ser absolutamente múltiple. Para los desagües, hay dos montantes explotables. La ubicación se ha representado en el plano en formato jpg con círculos naranjas.
El sistema eléctrico deberá adaptarse a las cargas, teniendo en cuenta que la electricidad será la única fuente de energía utilizable. El sistema de aire acondicionado tendrá que estar adecuadamente dimensionado tanto para enfriar como para calentar las habitaciones.
Al tratarse de espacios pequeños, es preferible utilizar colores y materiales, así como dispositivos que "amplíen" las habitaciones.
En cuanto al mobiliario, se pide que se utilicen principalmente muebles de IKEA.