
Milan, Metropolitan City of Milan, Italy
Residential - Sleaping Area
Briefing
ENG:
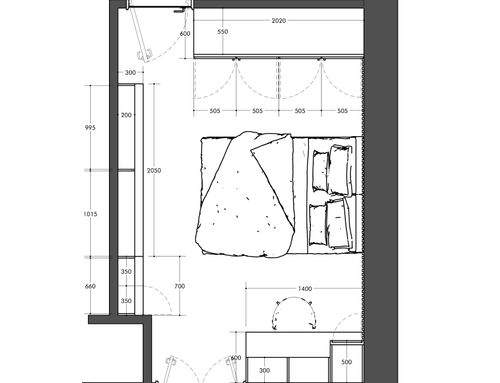
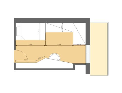
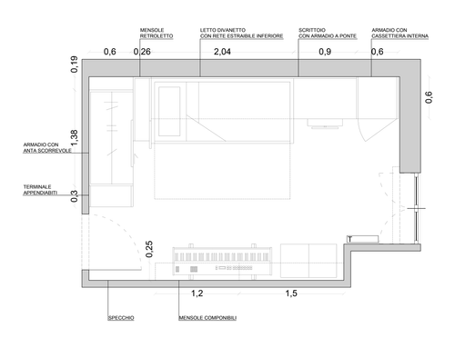
A room for a 9-year-old girl that will accompany her as she grows. Modern style. Predominantly white with colorful details if desired. A queen size bed or a pull-out bed to invite friends. Spacious wardrobes but also plenty of space for books and free space to play. A recess with spotlights has already been created on the radiator side.
ESP:
Une chambre pour une fille de 9 ans qui l'accompagnera dans sa croissance. Style moderne. Principalement blanc avec des détails colorés si souhaité. Un lit une place et demie ou un lit gigogne pour inviter les amies. Des armoires spacieuses, mais aussi beaucoup d'espace pour les livres et de l'espace libre pour jouer. Un enfoncement avec des projecteurs a déjà été aménagé du côté du radiateur.
Una habitación para una niña de 9 años que la acompañará en su crecimiento. Estilo moderno. Predominantemente blanco con detalles coloridos si se desea. Una cama individual y media o una cama nido para invitar a las amigas. Armarios espaciosos pero también mucho espacio para libros y espacio libre para jugar. Ya se ha realizado un rebaje en el lado del radiador con focos.
ITA:
Camera per una bambina di 9 anni che dovrà accompagnarla nella crescita. Stile moderno. Colore prevalente bianco con eventuali dettagli colorati. Letto a 1 piazza e mezza o con letto estraibile per invitare le amiche. Armadiature capienti ma anche tanto spazio ai libri e spazio libero per giocare. Sul lato del termosifone è già stato fatto un ribassamento con dei faretti.