
Teverola, CE, Italia
Commercial - Co-Working
Briefing
ITA
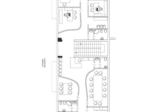
AL PRIMO PIANO DELL’INTERNO 1 (LATO SINISTRO DELLA PLANIMETRIA DELL’AREA DI INTERVENTO – AREA DI CIRCA 96 MQ), DI UN EDIFICIO INDUSTRILE, SONO GIA’ PRESENTI GLI UFFICI DELLA TIRRENA, UNA SOCIETA’ ITALIANA CHE SI OCCUPA DI COSTRUZIONI PUBBLICHE E PRIVATE, IMMOBILIARE, SERVIZI DI INGEGNERIA ED ARCHITETTURA, ED ATTIVITA’ ALL’ESTERO. LA SOCIETA’ TIRRENA, AVENDO AVUTO LA NECESSITA’ DI AMPLIARE I PROPRI UFFICI PRESENTI NEL COMUNE DI TEVEROLA, HA AQUISITO ANCHE GLI SPAZI DELL’INTERNO 2 (LATO DESTRO DELLA PLANIMETRIA DELL’AREA DI INTERVENTO – AREA DI CIRCA 113 MQ) DEL PRIMO PIANO DELL’EDEFICIO.
PERTANTO, LA NECESSIATA’ AZIENDALE È QUELLA DI AVERE UN UNICO GRANDE UFFICIO DI CIRCA 209 MQ. L’ATTENZIONE CHE SI CONSIGLIA AVERE AI FINI DELLA REDAZIONE DEL PROGETTO È LA SEGUENTE:
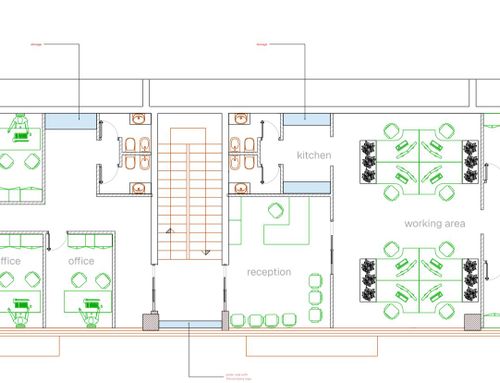
A) SUL LATO SINISTRO VORREMMO RICAVARE: NR.1 UFFICO PER L’AMMINISTRATORE DELEGATO (CON BAGNO PRIVATO), NR.1 UFFICIO DI DIREZIONE GENERALE, NR. 1 UFFICIO AMMINISTRAZIONE, NR. 1 UFFICIO LEGALE, NR. 1 UFFICIO CONTABILITA’, NR.1 WC DONNE, NR.1 WC UOMINI E UNA ZONA PER LE STAMPANTI;
B) SUL LATO DESTRO VORREMMO RICAVARE: LA RECEPTION CON ZONA D’ATTESA CLIENTI, POI DA NR.2 A MASSIMO 3 UFFICI DI DIREZIONE TECNICA, UN’AREA WORK, UNA SALA RIUNIONI E UNA PICCOLA MENSA, UN PICCOLO RIPOSTIGLIO, NR.1 WC DONNE, NR.1 WC UOMINI E UNA ZONA PER LE STAMPANTI.
C) OSSERVANDO LA PLANIMETRIA DELL’AREA DI INTERVENTO È CHIARO CHE L’AREA DELL’INTERNO 1 E L’AREA DELL’INTERNO 2 SONO DIVISE DA UNA SCALA CENTRALE CON RELATIVO PIANEROTTOLO E CON DUE ACCESSI SEPARATI. IN REALTA’ VORREMMO CHE I NOSTRI UFFICI NON DIANO UN SENSO DI SEPARAZIONE MA DI UNITA’.
INOLTRE, AI FINI DELLA REDAZIONE DEL POGETTO E DUNQUE PER LA DIVISIONE DEGLI SPAZI INTERNI, PREFERIBILMENTE VORREMMO L’ATTENZIONE SUL FATTO CHE ALCUNE ZONE RICHIESTE VENGANO DIMENSIONATE IN BASE AGLI DEGLI ARREDI GIA’ PRESENTI NEGLI UFFICI DELL’INTERNO 1 (VEDERE FILE PDF CHIAMATO “ARREDI ESISTENTI_TIRRENA” DOVE SONO PRESENTI NUMERO, DIMENSIONI E FOTO DEGLI ARREDI) OLTRE CHE DEGLI ARREDI IMPORTANTI PRESENTI ALL’INTERNO DI UN ALTRO UFFICIO DISTACCATO DELL’AZIONEDA CHE VERRA’ DISMESSO (VEDERE FILE DWG CHIAMATO “UFFICI_REGO” CON ARREDI QUOTATI IN SCALA 1:100).
SI PRECISA, CHE VORREMMO RECUPERARE ALMENO:
1)PER L’UFFICO DI DIREZIONE GENERLE, L’ARREDO PRESENTE NELLA SCHEDA DEL FILE PDF CHIAMATO “ARREDI ESISTENTI_TIRRENA” CHE CONSISTE IN UNA SCRIVANI CON SEDIE ROSSO POMPEANO, UN DIVANO ROSSO POMPEANO, UN ARMDIO DI COLORE ABBINATO ALLA SCRIVANIA ED IL MOBILE PORTASTAMPANTE;
2) PER L’UFFICIO DELL’AMMINISTRATORE DELEGATO, L’ARREDO PRESENTE NELL’UFFICIO DIREZIONE, PER LA SALA RIUNIONI IL GRANDE TAVOLO 12 POSTI PRESENTE NELLA SALA RIUNIONI E PER L’AREA WORK LA MAGGIOR PARTE DELLE SCRIVANIE COMBIANTE A QUATTRO SEDUTE PRESNTI NELLA ZONA SERVIZI TCNICI, FACENDO RIFERIMENTO AL FILE DWG CHIAMATO “UFFICI_REGO.
IN CONCLUSIONE, SI PRECISA CHE I BAGNI PRESENTI NELLA PLANIMETRIA AREA DI INTERVENTO POSSONO ESSERE TOTALMENTE ABOLITI PER RECUPERARE SPAZIO, OPPURE, PARZIALMENTE ABBOLITI PER RIMODULARLI AL LORO INTERNO IN VIRTU’ DI UNA EVENTUALE SCELATA PROGETTUALE DI DIVISIONE, IN CONSIDERAZIONE DEL FATTO CHE VENGONO RICHIESTI NR.1 WC UOMINI E NR.1 WC DONNE PER ZONA. MA I BAGNI NON POSSONO ESSERE SPOSTATI IN QUANTO SIAMO VINCOLATI DAI PUNTI DI SCARICO DELLE TUBAZIONI.
INFINE, SOLO A TITOLO INFORMATIVO, E’ POSSIBILE UTILIZZARE IL SOTTOSCALA POSTO AL PIANO TERRA PER ARCHIVIO E L’INSTALLAZIONE DEGLI ARMADI INFORMATICI DI RETE.
ENG
ON THE FIRST FLOOR OF INTERIOR 1 (LEFT SIDE OF THE PLAN OF THE INTERVENTION AREA – AREA OF APPROXIMATELY 96 MQ), OF AN INDUSTRIAL BUILDING, THERE ARE ALREADY THE OFFICES OF TIRRENA, AN ITALIAN COMPANY THAT DEALS WITH PUBLIC AND PRIVATE CONSTRUCTION, REAL ESTATE, ENGINEERING AND ARCHITECTURAL SERVICES, AND ACTIVITIES ABROAD. THE TIRRENA COMPANY, HAVING HAD THE NEED TO EXPAND ITS OFFICES PRESENT IN THE MUNICIPALITY OF TEVEROLA, HAS ALSO ACQUIRED THE SPACES OF INTERIOR 2 (RIGHT SIDE OF THE PLAN OF THE INTERVENTION AREA – AREA OF APPROXIMATELY 113 MQ) ON THE FIRST FLOOR OF THE BUILDING.
THEREFORE, THE COMPANY NEEDS TO HAVE A SINGLE LARGE OFFICE OF APPROXIMATELY 209 MQ. THE ATTENTION THAT IS RECOMMENDED TO HAVE FOR THE PURPOSE OF DRAFTING THE PROJECT IS THE FOLLOWING:
A) ON THE LEFT SIDE WE WOULD LIKE TO OBTAIN: 1 OFFICE FOR THE CHIEF EXECUTIVE OFFICE (WITH PRIVATE BATHROOM), 1 GENERAL MANAGEMENT OFFICE, 1 ADMINISTRATION OFFICE, 1 LEGAL OFFICE, 1 ACCOUNTING OFFICE, 1 WOMEN'S TOILET, 1 MEN'S TOILET AND AN AREA FOR PRINTERS;
B) ON THE RIGHT SIDE WE WOULD LIKE TO OBTAIN: THE RECEPTION WITH A CUSTOMER WAITING AREA, THEN FROM 2 TO MAXIMUM 3 TECHNICAL MANAGEMENT OFFICES, A WORK AREA, A MEETING ROOM AND A SMALL CANTEEN, A SMALL CLOSET, 1 WOMEN'S TOILET, 1 MEN'S TOILET AND AN AREA FOR PRINTERS.
C) LOOKING AT THE PLAN OF THE INTERVENTION AREA, IT IS CLEAR THAT THE INTERIOR AREA 1 AND THE INTERIOR AREA 2 ARE DIVIDED BY A CENTRAL STAIRCASE WITH A RELATIVE LANDING AND WITH TWO SEPARATE ACCESSES. IN REALITY, WE WOULD LIKE OUR OFFICES NOT TO GIVE A SENSE OF SEPARATION BUT OF UNITY.
FURTHERMORE, FOR THE PURPOSES OF DRAFTING THE PROJECT AND THEREFORE FOR THE DIVISION OF THE INTERNAL SPACES, WE WOULD PREFERABLY LIKE TO DRAW ATTENTION TO THE FACT THAT SOME OF THE REQUESTED AREAS ARE DIMENSIONS BASED ON THE FURNISHINGS ALREADY PRESENT IN THE OFFICES OF INTERIOR 1 (SEE PDF FILE CALLED “EXISTING FURNITURE_TIRRENA” WHERE THE NUMBER, DIMENSIONS AND PHOTOS OF THE FURNITURE ARE PRESENT) AS WELL AS THE IMPORTANT FURNITURE PRESENT INSIDE ANOTHER DETACHED OFFICE OF THE ACTION WHICH WILL BE DECOMMISSED (SEE DWG FILE CALLED “OFFICI_REGO” WITH FURNITURE DIMENSIONS AT A SCALE OF 1:100).
IT IS SPECIFIED THAT WE WOULD LIKE TO RECOVER AT LEAST:
1) FOR THE GENERAL MANAGEMENT OFFICE, THE FURNITURE PRESENT IN THE PDF FILE SHEET CALLED “EXISTING FURNITURE_TIRRENA” WHICH CONSISTS OF A DESK WITH POMPEANO RED CHAIRS, A POMPEANO RED SOFA, A WARDROBE IN A COLOR MATCHING WITH THE DESK AND THE PRINTER CABINET;
2) FOR THE CHIEF EXECUTIVE OFFICE, THE FURNITURE PRESENT IN THE MANAGEMENT OFFICE, FOR THE MEETING ROOM THE LARGE 12-SEATER TABLE PRESENT IN THE MEETING ROOM AND FOR THE WORK AREA MOST OF THE FOUR-SEAT COMBINATION DESKS PRESENT IN THE TECHNICAL SERVICES AREA, REFERRING TO THE DWG FILE CALLED “OFFICI_REGO.
IN CONCLUSION, IT IS SPECIFIED THAT THE BATHROOMS PRESENT IN THE PLAN OF THE INTERVENTION AREA CAN BE TOTALLY ABOLISHED TO RECOVER SPACE, OR PARTIALLY ABOLISHED TO REMODULATE THEM INTERNALLY BY VIRTUE OF A POSSIBLE DESIGN CHOICE OF DIVISION, TAKING INTO ACCOUNT THE FACT THAT 1 MEN'S TOILET AND 1 WOMEN'S TOILET ARE REQUIRED PER AREA. BUT THE BATHROOMS CANNOT BE MOVED AS WE ARE CONSTRAINTED BY THE DISCHARGE POINTS OF THE PIPES.
FINALLY, FOR INFORMATION PURPOSES ONLY, IT IS POSSIBLE TO USE THE SPACE UNDER THE STAIRS ON THE GROUND FLOOR FOR FILING AND INSTALLING COMPUTER NETWORK CABINETS.
ESP
EN EL PRIMER PISO DEL INTERIOR 1 (LADO IZQUIERDO DEL PLANO DEL ÁREA DE INTERVENCIÓN - SUPERFICIE DE UNOS 96 MQ), DE UN EDIFICIO INDUSTRIAL, YA SE ENCUENTRAN LAS OFICINAS DE TIRRENA, UNA EMPRESA ITALIANA QUE SE TRATA DE LA CONSTRUCCIÓN PÚBLICA Y PRIVADA, INMOBILIARIA, INGENIERÍA Y ARQUITECTURA Y ACTIVIDADES EN EL EXTRANJERO. LA EMPRESA TIRRENA, AL TENER LA NECESIDAD DE AMPLIAR SUS OFICINAS PRESENTES EN EL MUNICIPIO DE TEVEROLA, HA ADQUIRIDO TAMBIÉN LOS ESPACIOS DEL INTERIOR 2 (LADO DERECHO DEL PLANO DEL ÁREA DE INTERVENCIÓN - SUPERFICIE DE APROXIMADAMENTE 113 MQ) DEL PRIMER PISO DEL EDIFICIO.
POR LO TANTO, LA NECESIDAD DE LA EMPRESA ES TENER UNA ÚNICA OFICINA GRANDE DE UNOS 209 MQ. LA ATENCIÓN QUE SE RECOMIENDA TENER PARA EFECTOS DE REDACCIÓN DEL PROYECTO ES LA SIGUIENTE:
A) EN EL LADO IZQUIERDO QUERERÍAMOS OBTENER: NR.1 OFICINA DEL DIRECTOR GENERAL (con baño privado), NR.1 OFICINA DE GERENCIA GENERAL, NR. 1 OFICINA DE ADMINISTRACIÓN, NR. 1 OFICINA JURÍDICA, NO. 1 OFICINA DE CONTABILIDAD, 1 BAÑO DE MUJERES, 1 BAÑO DE HOMBRES Y ÁREA PARA IMPRESORAS;
B) EN EL LADO DERECHO QUERERÍAMOS LLEGAR: LA RECEPCIÓN CON ZONA DE ESPERA DE CLIENTES, LUEGO DE 2 A MÁXIMO 3 DESPACHOS DE DIRECCIÓN TÉCNICA, ZONA DE TRABAJO, SALA DE REUNIONES Y PEQUEÑO COMEDOR, PEQUEÑO TRASTERO, 1 BAÑO DE MUJERES, 1 BAÑO DE HOMBRES Y ZONA DE MUJERES. IMPRESORAS.
C) OBSERVANDO EL PLANTO DEL ÁREA DE INTERVENCIÓN SE CLARO QUE EL ÁREA INTERIOR 1 Y EL ÁREA INTERIOR 2 ESTÁN DIVIDIDOS POR UNA ESCALERA CENTRAL CON DESCANSO RELEVANTE Y CON DOS ACCESOS SEPARADOS. EN REALIDAD NOS GUSTARÍA QUE NUESTRAS OFICINAS DARÁN UN SENTIDO NO DE SEPARACIÓN SINO DE UNIDAD.
ADEMÁS, PARA LOS EFECTOS DE REDACCIÓN DEL PROYECTO Y POR TANTO PARA LA DIVISIÓN DE LOS ESPACIOS INTERIORES, PREFERIBLEMENTE TENGAMOS EN CUENTA QUE ALGUNAS ÁREAS SOLICITADAS ESTÁN DIMENSIONADAS EN BASE AL MOBILIARIO YA PRESENTE EN LAS OFICINAS DE INTERIOR 1 (VER ARCHIVO PDF DENOMINADO "MOBILIARIO"). ESISTENTI_TIRRENA” EN QUE SE ENCUENTRA EL NÚMERO, DIMENSIONES Y FOTOS DE LOS MUEBLES) ASÍ COMO MUEBLES IMPORTANTES PRESENTES DENTRO DE OTRA OFICINA SEPARADA DE LA ACCIÓN QUE SE ENCARGARÁ (VER ARCHIVO DWG LLAMADO “OFFICI_REGO” CON MUEBLES COTIZADOS A ESCALA 1:100).
TENGA EN CUENTA QUE NOS GUSTARÍA RECUPERAR AL MENOS:
1) PARA LA OFICINA DE LA GERENCIA GENERAL, EL MOBILIARIO PRESENTE EN LA HOJA PDF LLAMADA “MUEBLES EXISTENTES_TIRRENA” QUE CONSTA DE UN ESCRITORIO CON SILLAS ROJAS POMPEAN, UN SOFÁ ROJO POMPEAN, UN MUEBLE EN COLOR A JUEGO CON EL ESCRITORIO Y EL MUEBLE PARA IMPRESORA;
2) PARA LA OFICINA DEL DIRECTOR GENERAL, LOS MUEBLES PRESENTES EN LA OFICINA DE GERENCIA, PARA LA SALA DE JUNTAS LA MESA GRANDE DE 12 PUESTOS PRESENTE EN LA SALA DE JUNTAS Y PARA EL ÁREA DE TRABAJO LA MÁS COMBINACIÓN DE ESCRITORIOS DE CUATRO PUESTOS PRESENTES EN EL ÁREA DE SERVICIOS TÉCNICOS, REFERENCIA AL ARCHIVO DWG LLAMADO “UFFICI_REGO.
EN CONCLUSIÓN, SE ESPECIFICA QUE LOS BAÑOS PRESENTES EN EL PLAN DEL ÁREA DE INTERVENCIÓN PUEDEN SER SUPRIMIDOS TOTALMENTE PARA RECUPERAR ESPACIO, O PARCIALMENTE SUPRIMIDOS PARA REMODULARLOS INTERNAMENTE EN VIRTUD DE UNA POSIBLE ELECCIÓN DE PROYECTO DE DIVISIÓN, CONSIDERANDO QUE SON NR.1 WC DE HOMBRES Y NR.1 WC DE MUJERES POR ÁREA REQUERIDA. PERO LOS BAÑOS NO SE PUEDEN MOVER YA QUE ESTAMOS LIMITADOS POR LOS PUNTOS DE DRENAJE DE LAS TUBERÍAS.
FINALMENTE, A FINES INFORMATIVOS, ES POSIBLE UTILIZAR LAS ESCALERAS SITUADAS EN LA PLANTA BAJA PARA ARCHIVOS Y LA INSTALACIÓN DE ARMARIOS INFORMÁTICOS EN RED.