
Rome, Metropolitan City of Rome Capital, Italy
Residential - Apartment
Briefing
ENG:
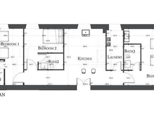
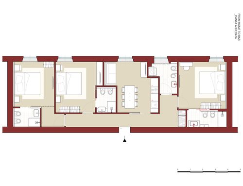
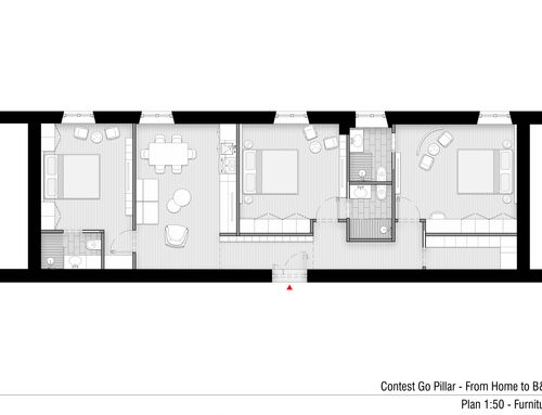
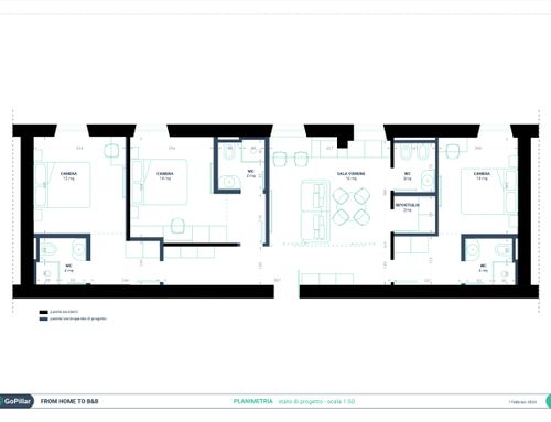
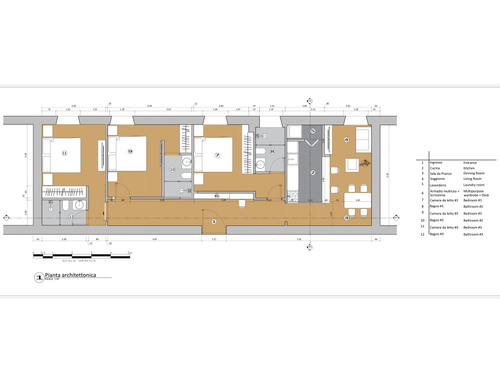
Hello everyone, I have a property of approximately 90m2. in the Flaminio area of Rome which I am living in but which I would like to use as a B&B or holiday home with the creation of 3 double rooms of at least 14m2 with 3 private bathrooms directly connected to each room and a common area for kitchen and breakfast use also of at least 14m2 .
I would also like to create a small closet for changing linen, tools and cleaning products, and a washing machine.
I would like a minimal and elegant modern style.
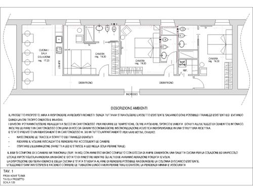
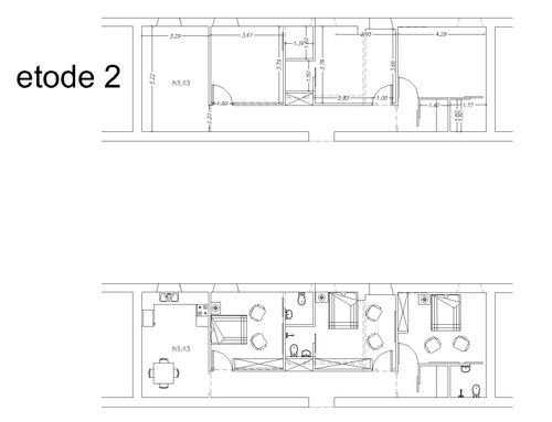
The current state plan with measurements will be uploaded in the next few days. At the moment I am providing the cadastral plan without measurements.
The kitchen is currently the room opposite the entrance.
SPA:
Hola a todos, tengo una propiedad de 90m2 aproximadamente. en la zona de Flaminio de Roma en la que vivo pero que me gustaría utilizar como B&B o casa de vacaciones con la creación de 3 habitaciones dobles de al menos 14 m2 con 3 baños privados conectados directamente a cada habitación y una zona común para uso de cocina y desayunador también de al menos 14m2.
También me gustaría crear un pequeño armario para cambiar ropa de cama, herramientas y productos de limpieza, y una lavadora.
Me gustaría un estilo moderno minimalista y elegante.
En los próximos días lo subiré el plano estatal actual con mediciones, de momento estoy entregando el plano catastral sin mediciones.
La cocina es actualmente la estancia situada frente a la entrada.
ITA:
Salve a tutti ho un immobile di 90mq c.a. a Roma zona Flaminio che sto abitando ma che vorrei adibire a b&b o casa vacanze con la realizzazione di 3 camere doppie di almeno 14mq con 3 bagni privati direttamente collegati con ogni camera e uno spazio comune ad uso cucina e colazione anch'esso di almeno 14mq.
Vorrei ricavare anche un piccolo ripostiglio per ricambio biancheria, attrezzi e prodotti pulizie, e lavatrice.
Vorrei uno stile moderno minimal ed elegante.
La planimetria dello stato attuale con le misure verrà caricata nei prossimi giorni al momento fornisco quella catastale senza misure.
La cucina attualmente è la camera di fronte all'ingresso.