
Rome, Metropolitan City of Rome Capital, Italy
Residential - Apartment
Briefing
ENG:
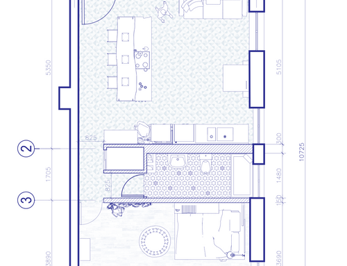
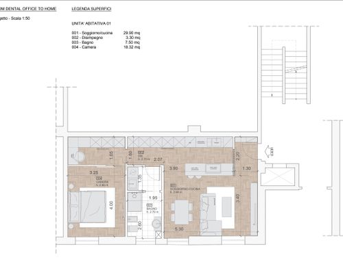
The aim of the project is to transform the apartment currently used as a dentist's office into a residential apartment that has a generous living room, a kitchenette or kitchenette, a bedroom and a walk-in closet and/or closet. The style could be modern with pop art design accessories.
Pay particular attention to lighting as it is an apartment on the ground floor.
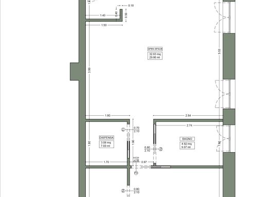
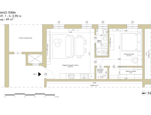
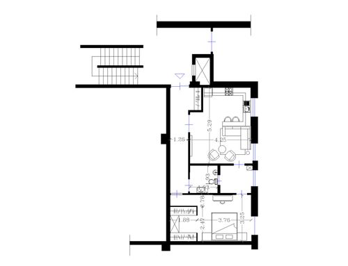
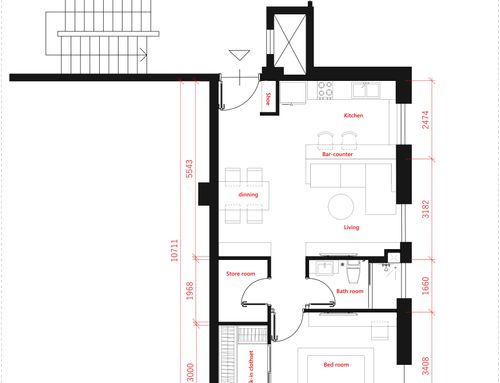
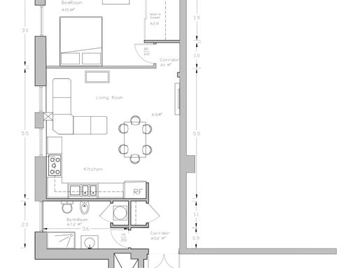
I have uploaded among the reference images a reference style in which I would like the new floor plan to be created.
I have also uploaded two renders as an example of the type of 3D views I expect to obtain. Write to us in the chat for any additional information.
ITA:
L'obbiettivo del progetto è quello di trasformare l'appartamento ad oggi utlizzato come studio dentistico ad una appartamento residenziale che abbia un soggiorno generoso, un cucinotto o angolo cottura, una camera da letto e una cabina armadio e/o ripostiglio. Lo stile potrebbe essere moderno con accessori di design pop art.
Ponete particolare attenzione all'illuminazione essendo lo stesso un appartamento al piano terra.
Ho caricato tra le immagini di riferimento uno stile di riferimento in cui vorrei che fosse realizzata la nuova planimetria.
Ho anche caricato due render come esempio come tipologia di viste 3d che mi spetto di ottenere. Scriveteci nella chat per qualsiasi eventuale info aggiuntive.
ESP:
El objetivo del proyecto es transformar el departamento actualmente utilizado como consultorio odontológico en un departamento residencial que cuenta con una generosa sala, cocineta o cocineta, un dormitorio y walk-in closet y/o closet. El estilo podría ser moderno con accesorios de diseño pop art.
Preste especial atención a la iluminación ya que es un apartamento en la planta baja.
He subido entre las imágenes de referencia un estilo de referencia en el que me gustaría que se creara el nuevo plano.
También he subido dos renders como ejemplo del tipo de vistas 3D que espero obtener. Escríbenos al chat para cualquier información adicional.