
Monza, Province of Monza and Brianza, Italy
Residential - split
Briefing
Frazionare in 2 il nostro nuovo appartamento
Stiamo comprando il nostro nuovo appartamento in Monza per avere piu spazio per me e mia moglia, mia figlia di 16 anni e il nostro cane.
L’appartamento e’ al terzo piano di 6 in un condominio di 12 appartamenti, situato a Monza, nelle vicinanze dell’omonimo parco.
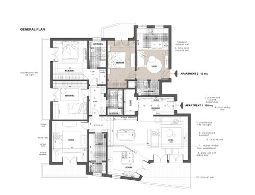
L’apprtamento attuale dovra’ essere ristrutturato e frazionato in 2: un appartamento principale di circa 170 mq, che sara’ abitato da noi. Questo appartamento dovra’ avere
2 camere da letto ( una per noi ed una per nostra figlia ) 1 studio ( anche per eventuali ospiti ) 2 bagni, 1 lavanderia che possa servire anche come bagno per ospiti, sala e cucina, che dovra’ avere una forma di divisione dal salone ( non vogliamo cucina “americana”). L’appartamento piu piccolo, 40 mq circa, potra’ essere monolocale o bilocale ( camera + sala con cucina e bagno), per 2 ospiti ( al max 4) che pensiamo di affittare probabilmente per brevi periodi.
Una delle sfide e’ ottenere la miglior divisione dei 2 appartamenti riducendo al minimo lo spostamento dei muri esistenti, mantenendo il marmo del salone e il parquet delle camere per l’appartamento principale. L’appartamento piu’ piccolo invece potrebbe essere ricostruito completamente.
Sicuramente non vogliamo uno stile classico: l’appartamento principale potrebbe essere retro moderno. Sia io che mia moglie abbiamo vissuto all’estero , ed il viaggio e’ un tema di interesse., ma non lo stile etnico. Mia moglie si lamenta sempre di non avere spazio sufficiente per gli abiti!
I 2 appartamenti potrebbero avere stili diversi. L’appartemento piu piccolo si puo prestare a piu libere proposte, mentre l’appartamento piu’ grande sara’ arredato con alcuni mobili disponibili, per la zona giorno , lo studio e la nostra camera da letto.
Ci piacerebbe l’idea di mescolare i nostri mobili d’epoca, ( inizio novecento ) con arredo moderno.
I mobili diponibili che possono essere visionati attraverso il link: https://www.dropbox.com/sh/pk0gtpiqizoay5z/AAB0eghbhOYbLqxuUs9-xC2ca?dl=0
Entrambi gli appartamenti dovrebbe essere luminosi.
Nell’appartamento piu grande, il bagno principale dovrebbe avere vasca e doccia, l’altro bagno la doccia. In entrambi non prevediamo i bidet, ma solo la predisposizione, per usare wc con bidet incorporato. La lavanderia dovra’ avere lavatrice, asciugatrice, wc a lavandino ( no doccia ).
Non ci aspettiamo qualcosa di “esclusivo”, ma di buon gusto e funzionale. Per l’appartamento piu piccolo dovra’ essere tenuto in considerazione l’aspetto “investimento”.
Un video della casa e’ disponibile attraverso il link:
https://www.dropbox.com/s/r2om0mf0lso98ag/VID-20171120-WA0000.mp4?dl=0
mentre la pianta dell’appartamento in formato .hd3d e’ disponibile qui:
https://www.dropbox.com/s/okbrfjalrxv7vax/Via%20ponchielli.hd3d?dl=0
Budget appartemanto principale:
per i bagni: piastrelle/rivestimenti circa 30 euro/mq, sanitari 1200 euro/bagno
cucina piastrelle/rivestimenti circa 30 euro/mq.
cucina mobili circa 6.000 euro, elettrodmestici 3000 euro
apprtamento secondario
pistrelle/rivestimenti circa 20 euro/mq
sanitari circa 600 euro
cucina con elettrodomestici 3000 euro
Dividing our new apartment in 2.
We just bought our new apartment in Monza to have the right living space for us ( me and my wife) ,our grown up daughter (16 years old ) and our dog. The apartment is one of 12 apartments of a 6 storey bulding of the late 60’s., located in Monza, close to its famous park, on the ouskirts of Milan.
The original apartment shall be renovated and divided in 2 , one main apartment ( around 170 sqm) where we will go living in, made up of 2 bedooms ( 1 main for me and my wife, and another for our daughter ) 1 studio, 2 bathrooms, 1 small laundry room that could be eventually used as a guest bathroom ), 1 living room and the kitchen, that should have some some sort of division from the living room. One smaller apart ( around 40 sqm) that can be either an open space or a 1 bedroom + 1 living room with the kitchen and 1 bathroom, that we think for short term rentings.
One of the challenges is get the best division minimizing tearing down and bulding up walls, possibly keeping the original marble fllooring for the living room ( for the kitchen also maybe ) and the parquet flooring for the bedroom of the main apartment, while having the small apartment brand new.
Definetively not a classic design: maybe retro modern for the main apartment. We both lived abroad for a while, making travelling an interesting subject, not so much for ethnic inspiration, and enjoy practicing sports. Keep in mind that my wife is always complaing that she is ruinning out of space for our cloths!
The 2 apartments can have different inspirations: the small one being open to wider ideas, while the main apartement will be partly furnished with some available furniture for the living room and the main bedroom.
We”d like the idea of mixing the design of our retro furniture with modern one
Both apartments should be bright.
The main bathroom of the main apartment should have the shower and the bathube, the small bathroom the shower only. For both we are thinking not having the bidet ( eventually the space for a future need ) but smart wcs. The laundry room should have space for the washing machine and drying machine, a wc and a small sink ( no shower).
We are not looking for something exclusive, but for good taste and functionality, with a particular attention to value for money for the small apartment.
You can have a look to the actual apartment browsing the following link:
https://www.dropbox.com/s/r2om0mf0lso98ag/VID-20171120-WA0000.mp4?dl=0
you can download actual apartment plan in .hd3d format from the following link:
https://www.dropbox.com/s/okbrfjalrxv7vax/Via%20ponchielli.hd3d?dl=0
Available furniture can ia avilable in:
https://www.dropbox.com/sh/pk0gtpiqizoay5z/AAB0eghbhOYbLqxuUs9-xC2ca?dl=0
Main apartemnt budget
bathrooms: tiles/flooring around 30 euro/sqm, sanitary items 1200 euro/bathroom
kitchchen tiles/covering arouns 30 euro/sqm
kitchen furniture around 6.000 euros, appliances 3000 euros
small flat
tiles/flooring/covering saround 20 euro/sqm
sanitary items circa 600 euro
kitchen furniture and appliances around 2500 euros