Madrid, Spain
entertainment - Restaurant
Briefing
El concepto de nuestro restaurante es una propuesta para un restaurante nuevo en la zona que va a combinar la carne ahumada (smokehouse) con una amplia carta de cervezas artesanales. Este va a ser el tercer restaurante del grupo, los otros dos se pueden observer en estos links (http://www.tripadvisor.com/Restaurant_Review-g187514-d1884794-Reviews-Mad_Cafe-Madrid.html and http://www.tripadvisor.com/Restaurant_Review-g187514-d4564351-Reviews-Mad_Grill-Madrid.html). En todos nuestros restaurantes consideramos que lo que tenemos que ofrecer una comida de calidad y fresca a un precio justo y con un trato cercano y relajada con conceptos ágiles y dinámicos. A diferencia de los dos restaurantes que ya tenemos, esté va a tener una comida que no existe en Madrid que son carnes ahumadas (en base a técnicas de preparación tradicionales de smokehouse Americana) y muchas cervezas en barril. Este local es nuevo y nunca ha sido un restaurante lo que nos permite mucha mas versatilidad a la hora de diseñar el local.
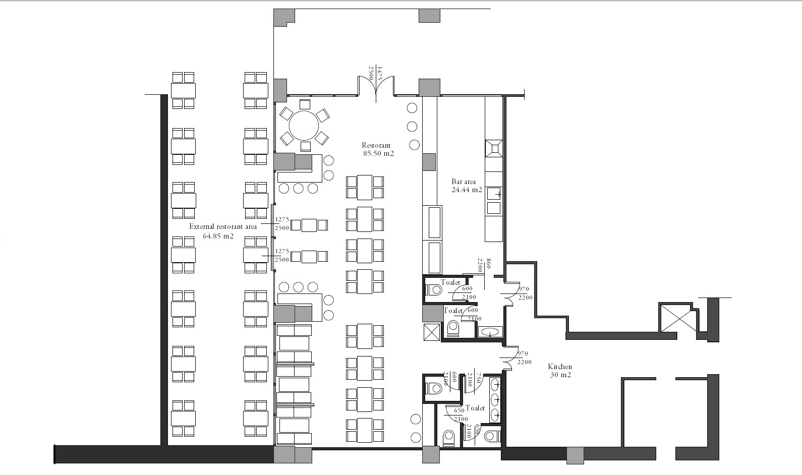
El local se compone de dos areas. Una interior y una exterior que es una terraza privada en el lado de unas dimensiones similares a la interior. Queremos un local que contraste luz exterior con muebles y decoración de madera mas oscura y acero cortén envejecido (tanto la madera como el acero) y jugar con un tercer elemento de contraste. Que no sea nada lujoso, ni delicado, ni blanco, ni estilo nórdico. Queremos que sea rudo y crudo así como que refleje lo artesanal, lo hecho con las manos ya que refleja también el tipo de cocina. Ésta gira entorno al humo, al fuego. Todos estos elementos queremos que se reflejen en la imagen, ya sea por los elementos a usar como por los elementos decorativos, tipo de luz, color o el mobiliario.
A parte del interior contamos con una terraza exterior de unas 20 mesas, que refleje la misma imagen que el interior.
Las dos zonas (interior e exterior) deben funcionar para todas las franjas horarias: desayunos, comidas, cenas y bar de cervezas craft.
Que la decoración y ambientación se pueda adaptar a todas las franjas y se aporten soluciones fáciles de adaptar a cada momento y ambiente.
La identidad se va a apoyar mucho en una imagen cuidada y potente que debe ensamblar con el espacio, pero no quedar abarrotado.
La idea del logo es una imagen tipo sello, ilustrada y cuyo elemento principal es un hueso.
Otra idea que nos gustaría desarrollar es el mostrador/ barra, que al final es de lo mas importante de cara al cliente. Os adjunto una foto orientativa de la idea que tenemos en mente. Nuestra barra es larga y iria en la pared de la izquierda según entras y queremos que tenga bastante protagonismo en la sala. Tendra unos 20 grifos de cerveza y nos gustaría diferenciar 2 partes, una sería para las bebidas y otra para la comida. La parte de la comida tendría una báscula tipo carnicería y tendría expositor con la carne y acompañamientos (sides) a la vista. La idea es que el cliente llegue al mostrador y vea las carnes ya cocinadas, pide y se saca la pieza entera. En una tabla de madera se corta y pesa lo que el cliente solicita. La idea es ser capaz de dejar al descubierto un poco de lo rudo de la cocina ahumada, pero con toques de cuidado y un poco hipsterizado.
El falso techo se va a tirar y quedará una altura de unos 4 metros ademas de la pared que divide la sala de forma de L (el primer plano refleja pilares e elementos estructurales de la sala).
Nos gustaría que hubiese un elemento decorativo principal.
Resources